Couldn't load pickup availability
Barndominium Plans
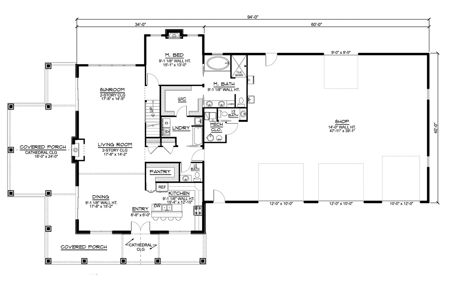
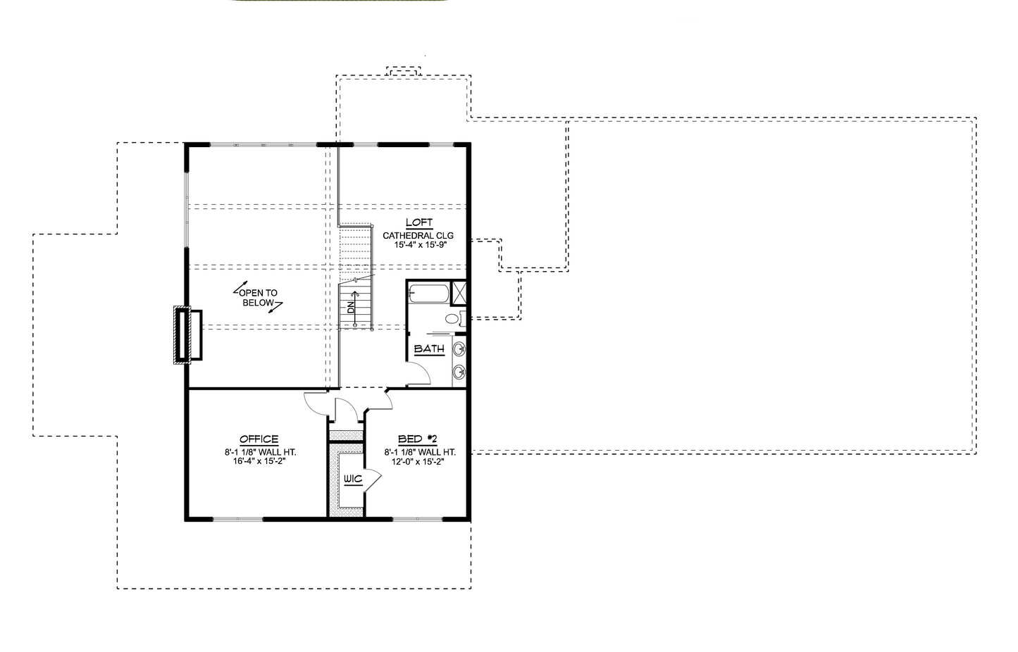
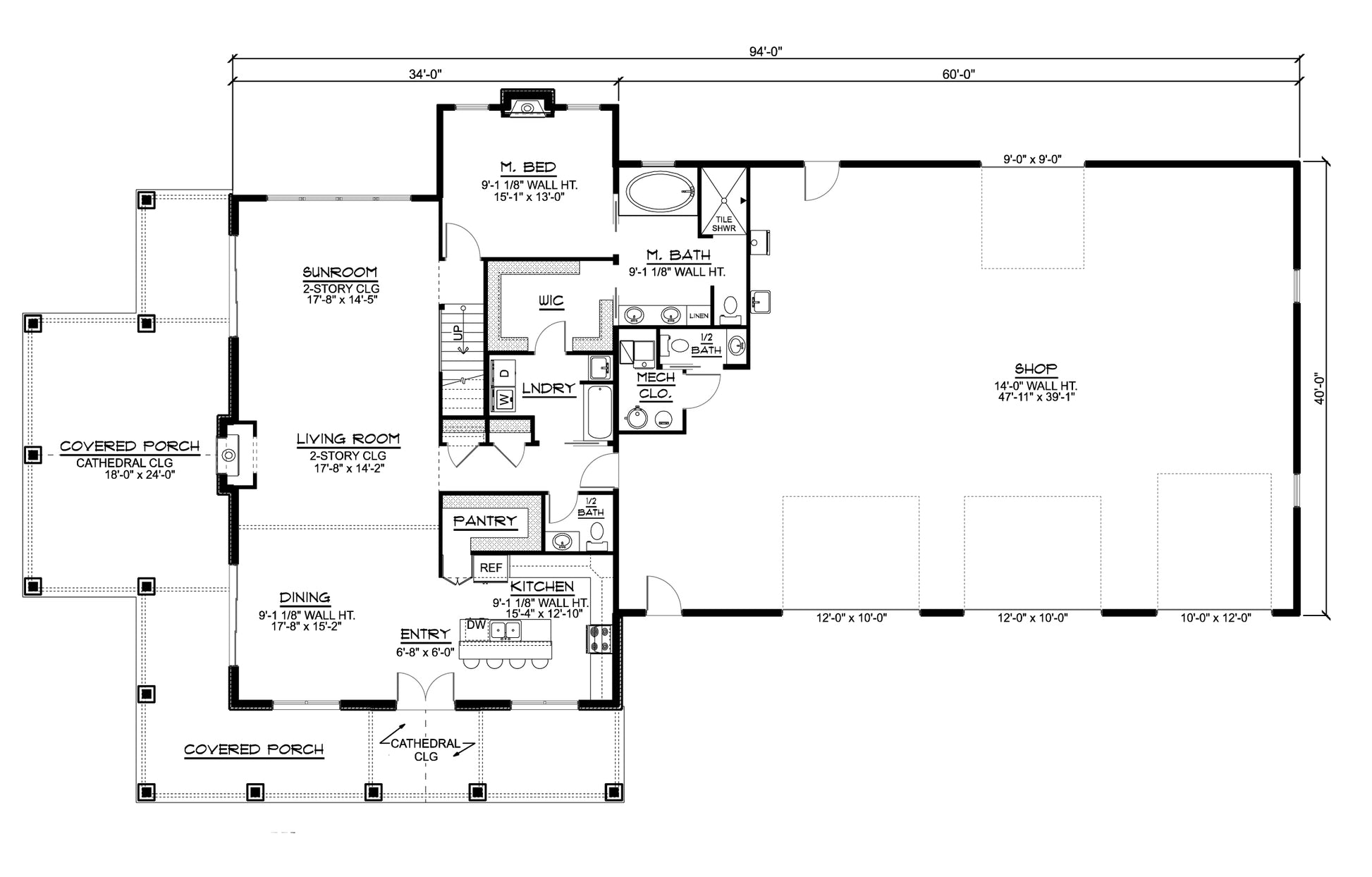
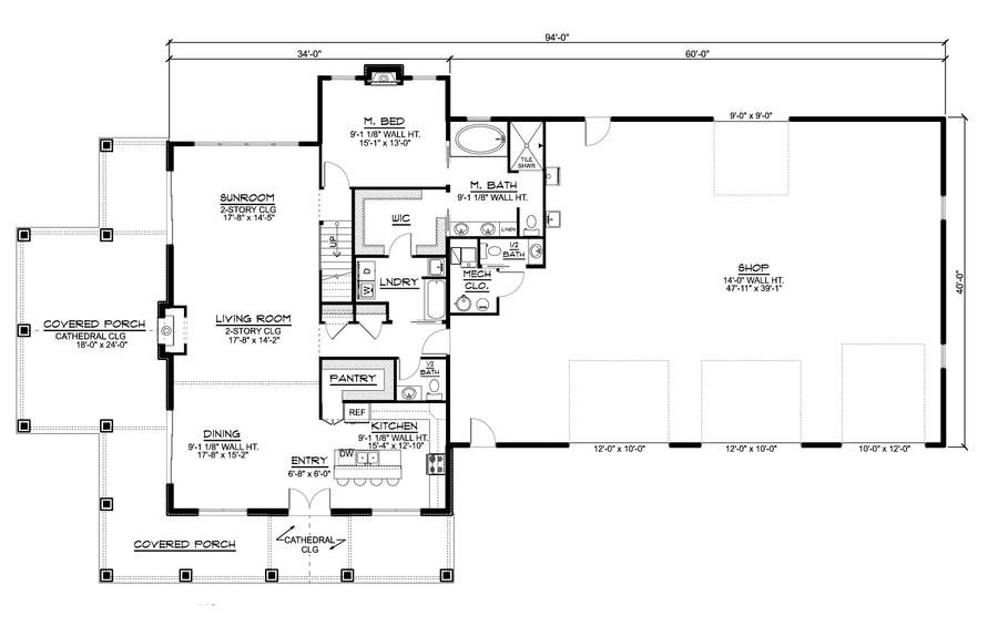
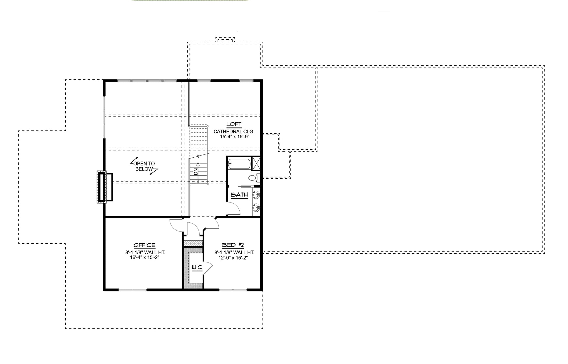
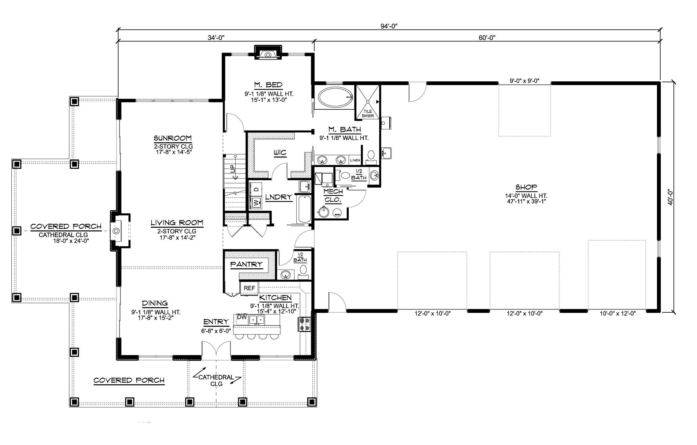
BG-20049 Kingswood Barndominium House Plan
DETAILS
HEATED SQ FT
First Floor:
1,827 SF
Second Floor:942 SF
Total Heated Sq Ft:2,769 SF
UNHEATED SQ FT
Garage 2,237 SF, Porch 927 SF = TOTAL 3,164 SF
Carport:None
2
2
2
2,237 SF
112'
61'
28'-8"
Concrete Slab
07:12
Stick Frame
CEILING HEIGHTS
9'
BG-20049 Kingswood Barndominium House Plan
About this barndominium house plan:
- 2,769 Heated Sq Ft
- 2 Bedroom
- 2.2 Bathrooms
- Two-Story
- Loft
- Open concept
- Sunroom
- Office
- Covered porch
- 2,237 Sq Ft Shop
- A refined layout offering 2,769 square feet of conditioned living—designed for comfort, clarity, and multi-zone flexibility.
- A light-filled retreat that invites calm and connection to the outdoors. Perfect for morning coffee, quiet reading, or year-round relaxation.
- A dedicated workspace tucked upstairs—offering quiet separation for focused tasks, creative projects, or remote work with a view.
- A wrap-style porch that extends from the front entry along one side of the home—creating a shaded outdoor corridor for breezy afternoons and relaxed entertaining.
- A generously sized shop with space for three vehicles, a mechanical closet, and a half bath—ideal for hobbyists, makers, or anyone needing serious workspace with built-in convenience.
What's included in BG-20049:
Cover Sheet
Four Elevations (Front, Back, Left Side, Right Side)
Roof Plan
Dimensioned Floor Plan
Foundation Plan
Wall Sections
Electrical Plans
For more barndominium floor plans, check out our complete collection of 2-bedroom barndominium floor plans.
Need to make changes? Submit a modification request using the button that says Modify This Plan . We will get you a free price quote within 72 hours
What's Typically Included
What's Typically Included
THE SPECIFC DETAILS OF WHAT'S INCLUDED ON THESE PLANS IS CONTAINED IN THE PRODUCT DESCRIPTION. PLEASE SCROLL UP AND YOU WILL FIND IT UNDER "WHAT'S INCLUDED"
Our house plan sets typically have the following details:
4 Elevations – Front, Back, Both Sides
Detailed Floor Plan Drawing
Electrical Plans with placements for HVAC
Plumbing Plans with Placements
Flooring Plan
Roof Plan
Foundation Plan
For more information on what's included and examples of what your plans will look like, go here -> https://barndominiumplans.com/pages/whats-included
Please Note: We work with many different draftspeople who work in many different ways. It should be noted that their plans may contain different details. THE SPECIFC DETAILS OF WHAT'S INCLUDED ON THESE PLANS IS CONTAINED IN THE PRODUCT DESCRIPTION. PLEASE SCROLL UP AND YOU WILL FIND IT UNDER "WHAT'S INCLUDED"
What's Not Included
What's Not Included
The following items are NOT included:
Architectural or Engineering Stamp. Our plans are engineering-ready! Can take them to a local engineer in your state.
Site Plan - We can provide this if needed for $300 additional.
Materials List - handled locally when required
Energy calculations - handled locally when required
Snow load calculations - handled locally when required
Delivery
Delivery
This plan is available as a digital product or printed + shipped.
If you select digital, the plan will be delivered to you via email as a PDF file, no matter what time it is.
If you select printed + shipped, your order will ship in 24x36 format within 1 business day of your order.
We ship from the midwest in order to serve the entire country within 3-5 business days!
Return policy
Return policy
All barndominium house plan purchases are FINAL. There are no exchanges or refunds due to the digital nature of the product. Please make sure that the plan you have selected is going to fit your needs.
PDF (Single Build) $1,450.00
DETAILS
HEATED SQ FT
First Floor:
1,827 SF
Second Floor:942 SF
Total Heated Sq Ft:2,769 SF
UNHEATED SQ FT
Garage 2,237 SF, Porch 927 SF = TOTAL 3,164 SF
Carport:None
2
2
2
2,237 SF
112'
61'
28'-8"
Concrete Slab
07:12
Stick Frame
CEILING HEIGHTS
9'
BG-20049 Kingswood Barndominium House Plan
About this barndominium house plan:
- 2,769 Heated Sq Ft
- 2 Bedroom
- 2.2 Bathrooms
- Two-Story
- Loft
- Open concept
- Sunroom
- Office
- Covered porch
- 2,237 Sq Ft Shop
- A refined layout offering 2,769 square feet of conditioned living—designed for comfort, clarity, and multi-zone flexibility.
- A light-filled retreat that invites calm and connection to the outdoors. Perfect for morning coffee, quiet reading, or year-round relaxation.
- A dedicated workspace tucked upstairs—offering quiet separation for focused tasks, creative projects, or remote work with a view.
- A wrap-style porch that extends from the front entry along one side of the home—creating a shaded outdoor corridor for breezy afternoons and relaxed entertaining.
- A generously sized shop with space for three vehicles, a mechanical closet, and a half bath—ideal for hobbyists, makers, or anyone needing serious workspace with built-in convenience.
What's included in BG-20049:
Cover Sheet
Four Elevations (Front, Back, Left Side, Right Side)
Roof Plan
Dimensioned Floor Plan
Foundation Plan
Wall Sections
Electrical Plans
For more barndominium floor plans, check out our complete collection of 2-bedroom barndominium floor plans.
Need to make changes? Submit a modification request using the button that says Modify This Plan . We will get you a free price quote within 72 hours
What's Typically Included
What's Typically Included
THE SPECIFC DETAILS OF WHAT'S INCLUDED ON THESE PLANS IS CONTAINED IN THE PRODUCT DESCRIPTION. PLEASE SCROLL UP AND YOU WILL FIND IT UNDER "WHAT'S INCLUDED"
Our house plan sets typically have the following details:
4 Elevations – Front, Back, Both Sides
Detailed Floor Plan Drawing
Electrical Plans with placements for HVAC
Plumbing Plans with Placements
Flooring Plan
Roof Plan
Foundation Plan
For more information on what's included and examples of what your plans will look like, go here -> https://barndominiumplans.com/pages/whats-included
Please Note: We work with many different draftspeople who work in many different ways. It should be noted that their plans may contain different details. THE SPECIFC DETAILS OF WHAT'S INCLUDED ON THESE PLANS IS CONTAINED IN THE PRODUCT DESCRIPTION. PLEASE SCROLL UP AND YOU WILL FIND IT UNDER "WHAT'S INCLUDED"
What's Not Included
What's Not Included
The following items are NOT included:
Architectural or Engineering Stamp. Our plans are engineering-ready! Can take them to a local engineer in your state.
Site Plan - We can provide this if needed for $300 additional.
Materials List - handled locally when required
Energy calculations - handled locally when required
Snow load calculations - handled locally when required
Delivery
Delivery
This plan is available as a digital product or printed + shipped.
If you select digital, the plan will be delivered to you via email as a PDF file, no matter what time it is.
If you select printed + shipped, your order will ship in 24x36 format within 1 business day of your order.
We ship from the midwest in order to serve the entire country within 3-5 business days!
Return policy
Return policy
All barndominium house plan purchases are FINAL. There are no exchanges or refunds due to the digital nature of the product. Please make sure that the plan you have selected is going to fit your needs.












Real Reviews, Real Experiences
How to Build Your Own Barndominium & 120+ House Plans

Just getting started on your build? Get the Barndominiums Made Easy Program.
- Choosing a selection results in a full page refresh.