Couldn't load pickup availability
Barndominium Plans
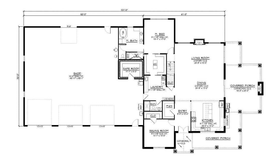
BG-20042 Prescott Barndominium House Plan
DETAILS
HEATED SQ FT
First Floor:
2,377 SF
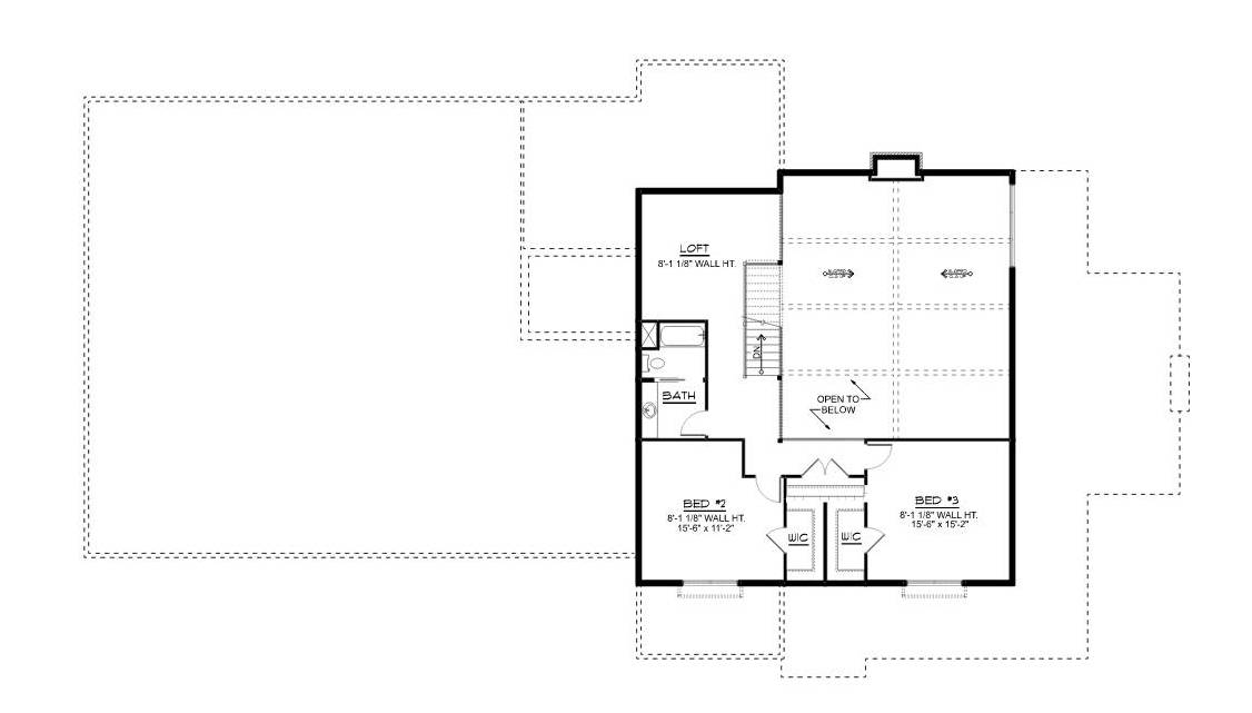
Second Floor:1,022 SF
Total Heated Sq Ft:3,399 SF
UNHEATED SQ FT
Garage 2,789 SF, Porch 857 SF = TOTAL 3,646 SF
Carport:None
3
3
2
2,789 SF
119'
67'
30'-8"
Concrete Slab, Basement Option Also Available
07:12
Stick Frame
CEILING HEIGHTS
9'
BG-20042 Prescott Barndominium House Plan
About this barndominium house plan:
- 3,399 Heated Sq Ft
- 3 Bedrooms
- 3 Bathrooms
- Two-Story
- Open concept
- Loft
- Sewing room
- Safe room
- Covered porch
- 2,789 Sq Ft Shop
- A spacious interior offering 3,399 square feet of conditioned living—designed for comfort, creativity, and everyday ease.
- Three well-placed bedrooms and three full baths provide privacy and practicality for families, guests, or multi-generational living.
- An open loft adds a flexible layer to the home—ideal for media, study, play, or quiet retreat. It’s a space that adapts to your rhythm.
- A dedicated creative zone for stitching, crafting, or quiet focus. Whether you're a hobbyist or a maker, this room is ready to inspire.
- Discreetly integrated into the shop, the safe room offers added security and peace of mind—designed for protection without compromising space.
- A shaded outdoor space that invites relaxation, conversation, and connection to the landscape—perfect for slow mornings or breezy evenings.
- A supersized shop offering 2,789 square feet of utility, workspace, and storage. Whether for vehicles, tools, or creative projects, it’s a multifunctional extension of the home.
What's included in BG-20042:
Cover Sheet
Four Elevations (Front, Back, Left Side, Right Side)
Roof Plan
Dimensioned Floor Plan
Foundation Plan
Wall Sections
Electrical Plans
For more barndominium floor plans, check out our complete collection of 3-bedroom barndominium floor plans.
Need to make changes? Submit a modification request using the button that says Modify This Plan (below the Add To Cart Button). We will get you a free price quote within 72 hours.
What's Typically Included
What's Typically Included
THE SPECIFC DETAILS OF WHAT'S INCLUDED ON THESE PLANS IS CONTAINED IN THE PRODUCT DESCRIPTION. PLEASE SCROLL UP AND YOU WILL FIND IT UNDER "WHAT'S INCLUDED"
Our house plan sets typically have the following details:
4 Elevations – Front, Back, Both Sides
Detailed Floor Plan Drawing
Electrical Plans with placements for HVAC
Plumbing Plans with Placements
Flooring Plan
Roof Plan
Foundation Plan
For more information on what's included and examples of what your plans will look like, go here -> https://barndominiumplans.com/pages/whats-included
Please Note: We work with many different draftspeople who work in many different ways. It should be noted that their plans may contain different details. THE SPECIFC DETAILS OF WHAT'S INCLUDED ON THESE PLANS IS CONTAINED IN THE PRODUCT DESCRIPTION. PLEASE SCROLL UP AND YOU WILL FIND IT UNDER "WHAT'S INCLUDED"
What's Not Included
What's Not Included
The following items are NOT included:
Architectural or Engineering Stamp. Our plans are engineering-ready! Can take them to a local engineer in your state.
Site Plan - We can provide this if needed for $300 additional.
Materials List - handled locally when required
Energy calculations - handled locally when required
Snow load calculations - handled locally when required
Delivery
Delivery
This plan is available as a digital product or printed + shipped.
If you select digital, the plan will be delivered to you via email as a PDF file, no matter what time it is.
If you select printed + shipped, your order will ship in 24x36 format within 1 business day of your order.
We ship from the midwest in order to serve the entire country within 3-5 business days!
Return policy
Return policy
All barndominium house plan purchases are FINAL. There are no exchanges or refunds due to the digital nature of the product. Please make sure that the plan you have selected is going to fit your needs.
PDF (Single Build) $1,450.00
DETAILS
HEATED SQ FT
First Floor:
2,377 SF
Second Floor:1,022 SF
Total Heated Sq Ft:3,399 SF
UNHEATED SQ FT
Garage 2,789 SF, Porch 857 SF = TOTAL 3,646 SF
Carport:None
3
3
2
2,789 SF
119'
67'
30'-8"
Concrete Slab, Basement Option Also Available
07:12
Stick Frame
CEILING HEIGHTS
9'
BG-20042 Prescott Barndominium House Plan
About this barndominium house plan:
- 3,399 Heated Sq Ft
- 3 Bedrooms
- 3 Bathrooms
- Two-Story
- Open concept
- Loft
- Sewing room
- Safe room
- Covered porch
- 2,789 Sq Ft Shop
- A spacious interior offering 3,399 square feet of conditioned living—designed for comfort, creativity, and everyday ease.
- Three well-placed bedrooms and three full baths provide privacy and practicality for families, guests, or multi-generational living.
- An open loft adds a flexible layer to the home—ideal for media, study, play, or quiet retreat. It’s a space that adapts to your rhythm.
- A dedicated creative zone for stitching, crafting, or quiet focus. Whether you're a hobbyist or a maker, this room is ready to inspire.
- Discreetly integrated into the shop, the safe room offers added security and peace of mind—designed for protection without compromising space.
- A shaded outdoor space that invites relaxation, conversation, and connection to the landscape—perfect for slow mornings or breezy evenings.
- A supersized shop offering 2,789 square feet of utility, workspace, and storage. Whether for vehicles, tools, or creative projects, it’s a multifunctional extension of the home.
What's included in BG-20042:
Cover Sheet
Four Elevations (Front, Back, Left Side, Right Side)
Roof Plan
Dimensioned Floor Plan
Foundation Plan
Wall Sections
Electrical Plans
For more barndominium floor plans, check out our complete collection of 3-bedroom barndominium floor plans.
Need to make changes? Submit a modification request using the button that says Modify This Plan (below the Add To Cart Button). We will get you a free price quote within 72 hours.
What's Typically Included
What's Typically Included
THE SPECIFC DETAILS OF WHAT'S INCLUDED ON THESE PLANS IS CONTAINED IN THE PRODUCT DESCRIPTION. PLEASE SCROLL UP AND YOU WILL FIND IT UNDER "WHAT'S INCLUDED"
Our house plan sets typically have the following details:
4 Elevations – Front, Back, Both Sides
Detailed Floor Plan Drawing
Electrical Plans with placements for HVAC
Plumbing Plans with Placements
Flooring Plan
Roof Plan
Foundation Plan
For more information on what's included and examples of what your plans will look like, go here -> https://barndominiumplans.com/pages/whats-included
Please Note: We work with many different draftspeople who work in many different ways. It should be noted that their plans may contain different details. THE SPECIFC DETAILS OF WHAT'S INCLUDED ON THESE PLANS IS CONTAINED IN THE PRODUCT DESCRIPTION. PLEASE SCROLL UP AND YOU WILL FIND IT UNDER "WHAT'S INCLUDED"
What's Not Included
What's Not Included
The following items are NOT included:
Architectural or Engineering Stamp. Our plans are engineering-ready! Can take them to a local engineer in your state.
Site Plan - We can provide this if needed for $300 additional.
Materials List - handled locally when required
Energy calculations - handled locally when required
Snow load calculations - handled locally when required
Delivery
Delivery
This plan is available as a digital product or printed + shipped.
If you select digital, the plan will be delivered to you via email as a PDF file, no matter what time it is.
If you select printed + shipped, your order will ship in 24x36 format within 1 business day of your order.
We ship from the midwest in order to serve the entire country within 3-5 business days!
Return policy
Return policy
All barndominium house plan purchases are FINAL. There are no exchanges or refunds due to the digital nature of the product. Please make sure that the plan you have selected is going to fit your needs.










Real Reviews, Real Experiences
How to Build Your Own Barndominium & 120+ House Plans

Just getting started on your build? Get the Barndominiums Made Easy Program.
- Choosing a selection results in a full page refresh.