Couldn't load pickup availability
Barndominium Plans
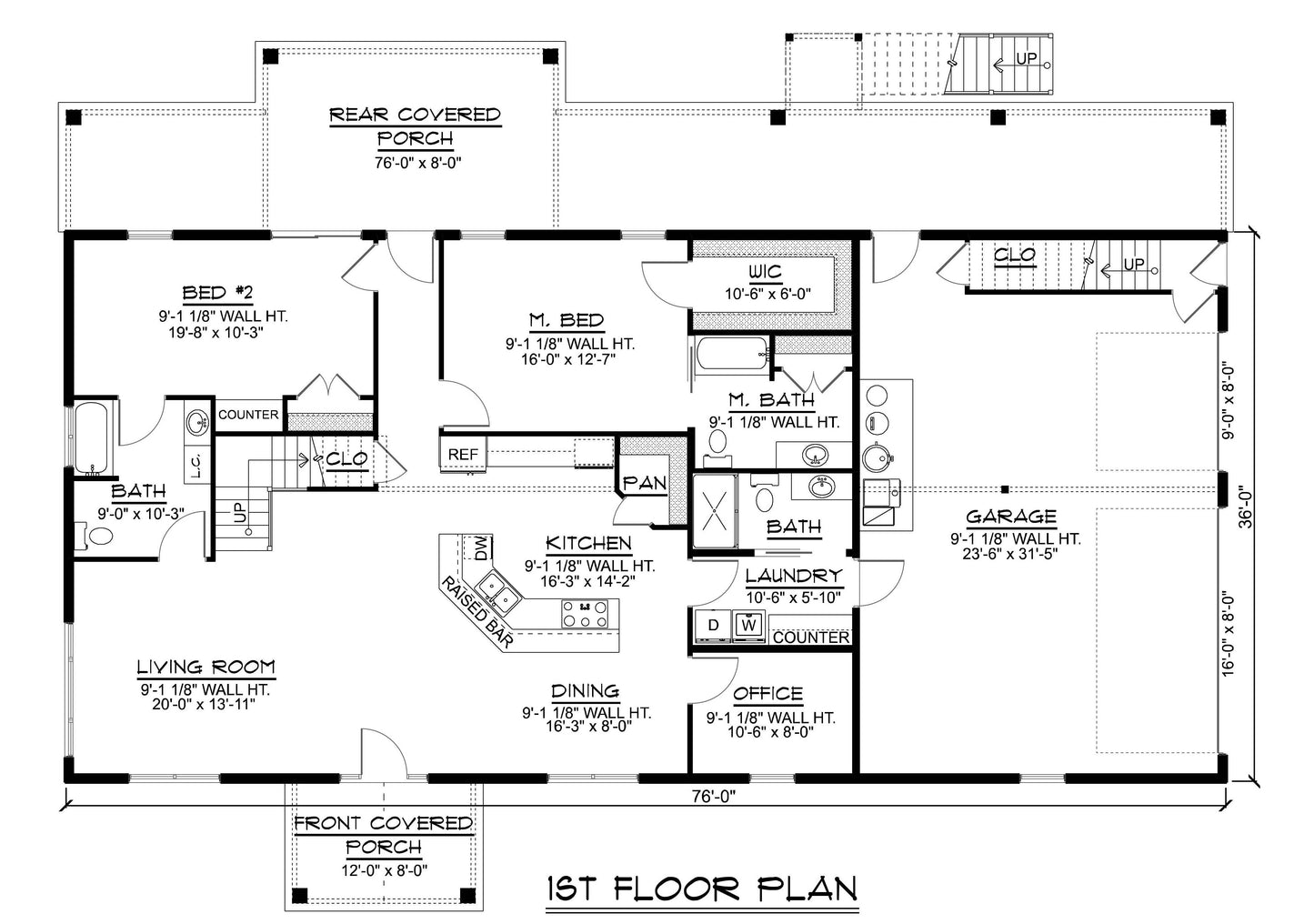
BG-20036 Linden Barndominium House Plan
DETAILS
HEATED SQ FT
First Floor:
1,872 SF
Second Floor:2,656 SF
Total Heated Sq Ft:4,528 SF
UNHEATED SQ FT
Garage 864 SF, Porch 781 SF, Deck 781 SF = TOTAL 2,426 SF
Carport:None
7
7
2
864 SF
76'
56'
29'-8"
Crawl Space
06:12
Stick Frame
CEILING HEIGHTS
9'
BG-20036 Linden Barndominium House Plan
About this barndominium house plan:
- 4,528 Heated Sq Ft
- 36x76 living space dimension
- Multi-generational living suitability
- 7 Bedrooms (including 2 master bedrooms & a master suite)
- 7 Bathrooms (including J&J bathroom)
- Loft
- Office
- Open concept
- 2 Kitchens
- 3 Laundry rooms
- Front & rear porch
- Front & rear deck
- 864 Sq Ft Garage
- Crawl Space Foundation
- A generous 4,528 square feet of heated living space offers ample room for multi-family comfort, connection, and independence.
- Spanning 36 by 76 feet, the main living area provides expansive proportions ideal for shared gatherings and individualized zones.
- Designed with multi-generational households in mind, this home balances privacy, accessibility, and shared living with ease.
- Seven bedrooms—including two master retreats and a private suite—offer flexible arrangements for extended family, guests, or live-in support.
- Seven bathrooms, including a Jack & Jill setup, ensure convenience and privacy across generations and living zones.
- The dedicated office provides a focused environment for remote work, study, or managing household affairs across generations.
- Dual kitchens support independent meal prep, cultural cooking styles, or separate routines—ideal for multi-family living.
- Three laundry rooms offer unmatched convenience, allowing each household unit to manage their own routines without overlap.
- Covered porches at both ends of the home invite outdoor relaxation and gathering, with space for everyone to enjoy.
- Dual decks extend the living space outdoors—perfect for hosting, dining, or quiet moments across generations.
- The 864-square-foot garage provides secure parking and storage, with room to accommodate multiple vehicles or shared tools.
What's included in BG-20036:
Cover Sheet
Four Elevations (Front, Back, Left Side, Right Side)
Roof Plan
Dimensioned Floor Plan
Foundation Plan
Wall Sections
Electrical Plans
For more barndominium floor plans, check out our complete collection of large barndominium floor plans.
Need to make changes? Submit a modification request using the button that says Modify This Plan (below the Add To Cart Button). We will get you a free price quote within 72 hours.
What's Typically Included
What's Typically Included
THE SPECIFC DETAILS OF WHAT'S INCLUDED ON THESE PLANS IS CONTAINED IN THE PRODUCT DESCRIPTION. PLEASE SCROLL UP AND YOU WILL FIND IT UNDER "WHAT'S INCLUDED"
Our house plan sets typically have the following details:
4 Elevations – Front, Back, Both Sides
Detailed Floor Plan Drawing
Electrical Plans with placements for HVAC
Plumbing Plans with Placements
Flooring Plan
Roof Plan
Foundation Plan
For more information on what's included and examples of what your plans will look like, go here -> https://barndominiumplans.com/pages/whats-included
Please Note: We work with many different draftspeople who work in many different ways. It should be noted that their plans may contain different details. THE SPECIFC DETAILS OF WHAT'S INCLUDED ON THESE PLANS IS CONTAINED IN THE PRODUCT DESCRIPTION. PLEASE SCROLL UP AND YOU WILL FIND IT UNDER "WHAT'S INCLUDED"
What's Not Included
What's Not Included
The following items are NOT included:
Architectural or Engineering Stamp. Our plans are engineering-ready! Can take them to a local engineer in your state.
Site Plan - We can provide this if needed for $300 additional.
Materials List - handled locally when required
Energy calculations - handled locally when required
Snow load calculations - handled locally when required
Delivery
Delivery
This plan is available as a digital product or printed + shipped.
If you select digital, the plan will be delivered to you via email as a PDF file, no matter what time it is.
If you select printed + shipped, your order will ship in 24x36 format within 1 business day of your order.
We ship from the midwest in order to serve the entire country within 3-5 business days!
Return policy
Return policy
All barndominium house plan purchases are FINAL. There are no exchanges or refunds due to the digital nature of the product. Please make sure that the plan you have selected is going to fit your needs.
PDF (Single Build) $1,450.00
DETAILS
HEATED SQ FT
First Floor:
1,872 SF
Second Floor:2,656 SF
Total Heated Sq Ft:4,528 SF
UNHEATED SQ FT
Garage 864 SF, Porch 781 SF, Deck 781 SF = TOTAL 2,426 SF
Carport:None
7
7
2
864 SF
76'
56'
29'-8"
Crawl Space
06:12
Stick Frame
CEILING HEIGHTS
9'
BG-20036 Linden Barndominium House Plan
About this barndominium house plan:
- 4,528 Heated Sq Ft
- 36x76 living space dimension
- Multi-generational living suitability
- 7 Bedrooms (including 2 master bedrooms & a master suite)
- 7 Bathrooms (including J&J bathroom)
- Loft
- Office
- Open concept
- 2 Kitchens
- 3 Laundry rooms
- Front & rear porch
- Front & rear deck
- 864 Sq Ft Garage
- Crawl Space Foundation
- A generous 4,528 square feet of heated living space offers ample room for multi-family comfort, connection, and independence.
- Spanning 36 by 76 feet, the main living area provides expansive proportions ideal for shared gatherings and individualized zones.
- Designed with multi-generational households in mind, this home balances privacy, accessibility, and shared living with ease.
- Seven bedrooms—including two master retreats and a private suite—offer flexible arrangements for extended family, guests, or live-in support.
- Seven bathrooms, including a Jack & Jill setup, ensure convenience and privacy across generations and living zones.
- The dedicated office provides a focused environment for remote work, study, or managing household affairs across generations.
- Dual kitchens support independent meal prep, cultural cooking styles, or separate routines—ideal for multi-family living.
- Three laundry rooms offer unmatched convenience, allowing each household unit to manage their own routines without overlap.
- Covered porches at both ends of the home invite outdoor relaxation and gathering, with space for everyone to enjoy.
- Dual decks extend the living space outdoors—perfect for hosting, dining, or quiet moments across generations.
- The 864-square-foot garage provides secure parking and storage, with room to accommodate multiple vehicles or shared tools.
What's included in BG-20036:
Cover Sheet
Four Elevations (Front, Back, Left Side, Right Side)
Roof Plan
Dimensioned Floor Plan
Foundation Plan
Wall Sections
Electrical Plans
For more barndominium floor plans, check out our complete collection of large barndominium floor plans.
Need to make changes? Submit a modification request using the button that says Modify This Plan (below the Add To Cart Button). We will get you a free price quote within 72 hours.
What's Typically Included
What's Typically Included
THE SPECIFC DETAILS OF WHAT'S INCLUDED ON THESE PLANS IS CONTAINED IN THE PRODUCT DESCRIPTION. PLEASE SCROLL UP AND YOU WILL FIND IT UNDER "WHAT'S INCLUDED"
Our house plan sets typically have the following details:
4 Elevations – Front, Back, Both Sides
Detailed Floor Plan Drawing
Electrical Plans with placements for HVAC
Plumbing Plans with Placements
Flooring Plan
Roof Plan
Foundation Plan
For more information on what's included and examples of what your plans will look like, go here -> https://barndominiumplans.com/pages/whats-included
Please Note: We work with many different draftspeople who work in many different ways. It should be noted that their plans may contain different details. THE SPECIFC DETAILS OF WHAT'S INCLUDED ON THESE PLANS IS CONTAINED IN THE PRODUCT DESCRIPTION. PLEASE SCROLL UP AND YOU WILL FIND IT UNDER "WHAT'S INCLUDED"
What's Not Included
What's Not Included
The following items are NOT included:
Architectural or Engineering Stamp. Our plans are engineering-ready! Can take them to a local engineer in your state.
Site Plan - We can provide this if needed for $300 additional.
Materials List - handled locally when required
Energy calculations - handled locally when required
Snow load calculations - handled locally when required
Delivery
Delivery
This plan is available as a digital product or printed + shipped.
If you select digital, the plan will be delivered to you via email as a PDF file, no matter what time it is.
If you select printed + shipped, your order will ship in 24x36 format within 1 business day of your order.
We ship from the midwest in order to serve the entire country within 3-5 business days!
Return policy
Return policy
All barndominium house plan purchases are FINAL. There are no exchanges or refunds due to the digital nature of the product. Please make sure that the plan you have selected is going to fit your needs.


























Real Reviews, Real Experiences
How to Build Your Own Barndominium & 120+ House Plans

Just getting started on your build? Get the Barndominiums Made Easy Program.
- Choosing a selection results in a full page refresh.