Couldn't load pickup availability
Barndominium Plans
BG-20035 Yorkdale Barndominium House Plan
DETAILS
HEATED SQ FT
First Floor:
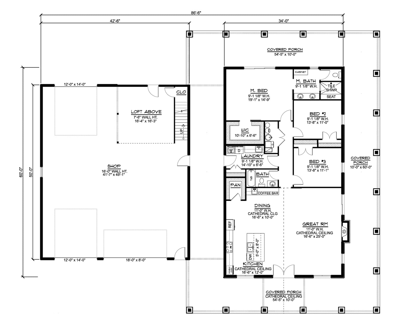
2,050 SF
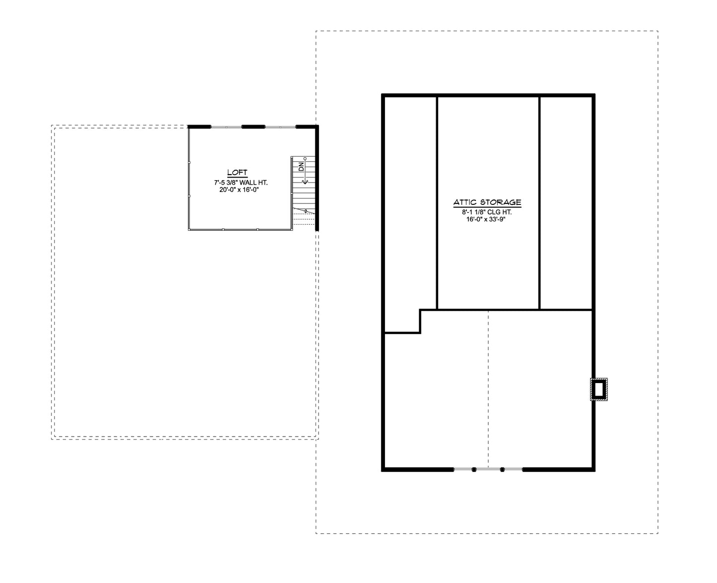
Second Floor:299 SF
Total Heated Sq Ft:2,050 SF
UNHEATED SQ FT
Second Floor 299 SF, Garage 2,125 SF, Porch 2,282 SF = TOTAL 4,706 SF
Carport:None
3
2
2
2,125 SF
96'-6"
80'
25'-8"
Concrete Slab, Basement Option Also Available
9:12
Stick Frame
CEILING HEIGHTS
9'
BG-20035 Yorkdale Barndominium House Plan
About this barndominium house plan:
- 2,050 Heated Sq Ft
- 3 Bedrooms
- 2 Bathrooms
- Loft
- Attic Storage
- Open concept
- Wraparound porch
- Breezeway
- 2,125 Sq Ft detached shop
- A well-proportioned 2,050 square feet of heated living space offers comfort, flow, and room to grow.
- Three inviting bedrooms provide restful retreats, each designed for privacy and personal expression.
- Two full bathrooms ensure convenience and ease for both daily living and guest accommodations.
- A bright loft adds flexible space for lounging, working, or creative pursuits.
The attic offers discreet overhead storage—ideal for seasonal items, keepsakes, or future expansion.
- The wraparound porch surrounds the home with charm and shaded outdoor living from every angle.
- A breezeway adds architectural character while linking indoor and outdoor spaces with ease and airflow.
- The expansive 2,125-square-foot shop is a dream space for makers, collectors, or entrepreneurs—ready to support bold ideas and big projects.
What's included in BG-20035:
Cover Sheet
Four Elevations (Front, Back, Left Side, Right Side)
Roof Plan
Dimensioned Floor Plan
Foundation Plan
Wall Sections
Electrical Plans
For more barndominium floor plans, check out our complete collection of 3-bedroom barndominium floor plans.
Need to make changes? Submit a modification request using the button that says Modify This Plan (below the Add To Cart Button). We will get you a free price quote within 72 hours.
Please note all square footage are estimates.
What's Included
What's Included
Our house plan sets typically have the following details:
4 Elevations – Front, Back, Both Sides
Detailed Floor Plan Drawing
Electrical Plans with placements for HVAC
Plumbing Plans with Placements
Flooring Plan
Roof Plan
Foundation Plan
For more information on what's included and examples of what your plans will look like, go here -> https://barndominiumplans.com/pages/whats-included
Please Note: We work with many different draftspeople who work in many different ways. It should be noted that their plans may contain different details.Â
What's Not Included
What's Not Included
The following items are NOT included:
Architectural or Engineering Stamp. Our plans are engineering-ready! Can take them to a local engineer in your state.
Site Plan - We can provide this if needed for $300 additional.
Materials List - handled locally when required
Energy calculations - handled locally when required
Snow load calculations - handled locally when required
Delivery
Delivery
This plan is available as a digital product or printed + shipped.
If you select digital, the plan will be delivered to you via email as a PDF file, no matter what time it is.
If you select printed + shipped, your order will ship in 24x36 format within 1 business day of your order.
We ship from the midwest in order to serve the entire country within 3-5 business days!
Return policy
Return policy
All barndominium house plan purchases are FINAL. There are no exchanges or refunds due to the digital nature of the product. Please make sure that the plan you have selected is going to fit your needs.
PDF (Single Build) $1,250.00
DETAILS
HEATED SQ FT
First Floor:
2,050 SF
Second Floor:299 SF
Total Heated Sq Ft:2,050 SF
UNHEATED SQ FT
Second Floor 299 SF, Garage 2,125 SF, Porch 2,282 SF = TOTAL 4,706 SF
Carport:None
3
2
2
2,125 SF
96'-6"
80'
25'-8"
Concrete Slab, Basement Option Also Available
9:12
Stick Frame
CEILING HEIGHTS
9'
BG-20035 Yorkdale Barndominium House Plan
About this barndominium house plan:
- 2,050 Heated Sq Ft
- 3 Bedrooms
- 2 Bathrooms
- Loft
- Attic Storage
- Open concept
- Wraparound porch
- Breezeway
- 2,125 Sq Ft detached shop
- A well-proportioned 2,050 square feet of heated living space offers comfort, flow, and room to grow.
- Three inviting bedrooms provide restful retreats, each designed for privacy and personal expression.
- Two full bathrooms ensure convenience and ease for both daily living and guest accommodations.
- A bright loft adds flexible space for lounging, working, or creative pursuits.
The attic offers discreet overhead storage—ideal for seasonal items, keepsakes, or future expansion.
- The wraparound porch surrounds the home with charm and shaded outdoor living from every angle.
- A breezeway adds architectural character while linking indoor and outdoor spaces with ease and airflow.
- The expansive 2,125-square-foot shop is a dream space for makers, collectors, or entrepreneurs—ready to support bold ideas and big projects.
What's included in BG-20035:
Cover Sheet
Four Elevations (Front, Back, Left Side, Right Side)
Roof Plan
Dimensioned Floor Plan
Foundation Plan
Wall Sections
Electrical Plans
For more barndominium floor plans, check out our complete collection of 3-bedroom barndominium floor plans.
Need to make changes? Submit a modification request using the button that says Modify This Plan (below the Add To Cart Button). We will get you a free price quote within 72 hours.
Please note all square footage are estimates.
What's Included
What's Included
Our house plan sets typically have the following details:
4 Elevations – Front, Back, Both Sides
Detailed Floor Plan Drawing
Electrical Plans with placements for HVAC
Plumbing Plans with Placements
Flooring Plan
Roof Plan
Foundation Plan
For more information on what's included and examples of what your plans will look like, go here -> https://barndominiumplans.com/pages/whats-included
Please Note: We work with many different draftspeople who work in many different ways. It should be noted that their plans may contain different details.Â
What's Not Included
What's Not Included
The following items are NOT included:
Architectural or Engineering Stamp. Our plans are engineering-ready! Can take them to a local engineer in your state.
Site Plan - We can provide this if needed for $300 additional.
Materials List - handled locally when required
Energy calculations - handled locally when required
Snow load calculations - handled locally when required
Delivery
Delivery
This plan is available as a digital product or printed + shipped.
If you select digital, the plan will be delivered to you via email as a PDF file, no matter what time it is.
If you select printed + shipped, your order will ship in 24x36 format within 1 business day of your order.
We ship from the midwest in order to serve the entire country within 3-5 business days!
Return policy
Return policy
All barndominium house plan purchases are FINAL. There are no exchanges or refunds due to the digital nature of the product. Please make sure that the plan you have selected is going to fit your needs.
















Real Reviews, Real Experiences
How to Build Your Own Barndominium & 120+ House Plans

Just getting started on your build? Get the Barndominiums Made Easy Program.
- Choosing a selection results in a full page refresh.