Couldn't load pickup availability
Barndominium Plans
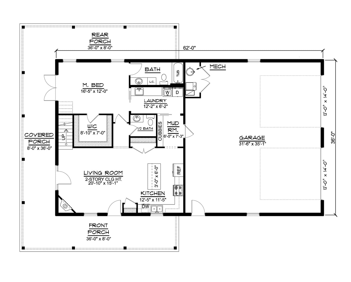
BG-20027 Hollis Barndominium House Plan
DETAILS
HEATED SQ FT
First Floor:
1,080 SF
Second Floor:569 SF
Total Heated Sq Ft:1,649 SF
UNHEATED SQ FT
Garage 1,152 SF, Porch 849 SF = TOTAL 2,001 SF
Carport:None
2
2
2
1,152 SF
62'
36'
23'-9"
Concrete Slab, Basement Option Also Available
04:12
Stick Frame
CEILING HEIGHTS
8'
BG-20027 Hollis Barndominium House Plan
About this barndominium house plan:
- 1649 Heated Sq Ft
- 30x36 Living space dimension
- 2 Bedrooms
- 2.1 Bathrooms
- Two story
- Open concept
- Wraparound porch
- Mechanical closet
- 1152 Sq Ft Garage
- Enjoy 1,649 square feet of climate-controlled comfort, thoughtfully designed for everyday living and effortless style.
- The expansive 30x36 living area offers generous proportions for entertaining, relaxing, and customizing your lifestyle.
- Two bedrooms, including a main-floor master suite, provide privacy and flexibility across both levels.
- With two full baths and a convenient powder room, this layout ensures smooth mornings and easy hosting.
- A striking two-story design adds vertical elegance and smart separation of living spaces.
- A wraparound porch surrounds the home with charm and shaded outdoor living from every angle.
- A discreet mechanical closet in the garage keeps systems organized and out of sight for a clean, functional space.
- The 1,152-square-foot garage offers ample room for vehicles, storage, and workshop potential—all under one roof.
What's included in BG-20027:
Cover Sheet
Four Elevations (Front, Back, Left Side, Right Side)
Roof Plan
Dimensioned Floor Plan
Foundation Plan
Wall Sections
Electrical Plans
For more barndominium floor plans, check out our complete collection of 2-bedroom barndominium floor plans.
Need to make changes? Submit a modification request using the button that says Modify This Plan . We will get you a free price quote within 72 hours
What's Typically Included
What's Typically Included
THE SPECIFC DETAILS OF WHAT'S INCLUDED ON THESE PLANS IS CONTAINED IN THE PRODUCT DESCRIPTION. PLEASE SCROLL UP AND YOU WILL FIND IT UNDER "WHAT'S INCLUDED"
Our house plan sets typically have the following details:
4 Elevations – Front, Back, Both Sides
Detailed Floor Plan Drawing
Electrical Plans with placements for HVAC
Plumbing Plans with Placements
Flooring Plan
Roof Plan
Foundation Plan
For more information on what's included and examples of what your plans will look like, go here -> https://barndominiumplans.com/pages/whats-included
Please Note: We work with many different draftspeople who work in many different ways. It should be noted that their plans may contain different details. THE SPECIFC DETAILS OF WHAT'S INCLUDED ON THESE PLANS IS CONTAINED IN THE PRODUCT DESCRIPTION. PLEASE SCROLL UP AND YOU WILL FIND IT UNDER "WHAT'S INCLUDED"
What's Not Included
What's Not Included
The following items are NOT included:
Architectural or Engineering Stamp. Our plans are engineering-ready! Can take them to a local engineer in your state.
Site Plan - We can provide this if needed for $300 additional.
Materials List - handled locally when required
Energy calculations - handled locally when required
Snow load calculations - handled locally when required
Delivery
Delivery
This plan is available as a digital product or printed + shipped.
If you select digital, the plan will be delivered to you via email as a PDF file, no matter what time it is.
If you select printed + shipped, your order will ship in 24x36 format within 1 business day of your order.
We ship from the midwest in order to serve the entire country within 3-5 business days!
Return policy
Return policy
All barndominium house plan purchases are FINAL. There are no exchanges or refunds due to the digital nature of the product. Please make sure that the plan you have selected is going to fit your needs.
PDF (Single Build) $1,250.00
DETAILS
HEATED SQ FT
First Floor:
1,080 SF
Second Floor:569 SF
Total Heated Sq Ft:1,649 SF
UNHEATED SQ FT
Garage 1,152 SF, Porch 849 SF = TOTAL 2,001 SF
Carport:None
2
2
2
1,152 SF
62'
36'
23'-9"
Concrete Slab, Basement Option Also Available
04:12
Stick Frame
CEILING HEIGHTS
8'
BG-20027 Hollis Barndominium House Plan
About this barndominium house plan:
- 1649 Heated Sq Ft
- 30x36 Living space dimension
- 2 Bedrooms
- 2.1 Bathrooms
- Two story
- Open concept
- Wraparound porch
- Mechanical closet
- 1152 Sq Ft Garage
- Enjoy 1,649 square feet of climate-controlled comfort, thoughtfully designed for everyday living and effortless style.
- The expansive 30x36 living area offers generous proportions for entertaining, relaxing, and customizing your lifestyle.
- Two bedrooms, including a main-floor master suite, provide privacy and flexibility across both levels.
- With two full baths and a convenient powder room, this layout ensures smooth mornings and easy hosting.
- A striking two-story design adds vertical elegance and smart separation of living spaces.
- A wraparound porch surrounds the home with charm and shaded outdoor living from every angle.
- A discreet mechanical closet in the garage keeps systems organized and out of sight for a clean, functional space.
- The 1,152-square-foot garage offers ample room for vehicles, storage, and workshop potential—all under one roof.
What's included in BG-20027:
Cover Sheet
Four Elevations (Front, Back, Left Side, Right Side)
Roof Plan
Dimensioned Floor Plan
Foundation Plan
Wall Sections
Electrical Plans
For more barndominium floor plans, check out our complete collection of 2-bedroom barndominium floor plans.
Need to make changes? Submit a modification request using the button that says Modify This Plan . We will get you a free price quote within 72 hours
What's Typically Included
What's Typically Included
THE SPECIFC DETAILS OF WHAT'S INCLUDED ON THESE PLANS IS CONTAINED IN THE PRODUCT DESCRIPTION. PLEASE SCROLL UP AND YOU WILL FIND IT UNDER "WHAT'S INCLUDED"
Our house plan sets typically have the following details:
4 Elevations – Front, Back, Both Sides
Detailed Floor Plan Drawing
Electrical Plans with placements for HVAC
Plumbing Plans with Placements
Flooring Plan
Roof Plan
Foundation Plan
For more information on what's included and examples of what your plans will look like, go here -> https://barndominiumplans.com/pages/whats-included
Please Note: We work with many different draftspeople who work in many different ways. It should be noted that their plans may contain different details. THE SPECIFC DETAILS OF WHAT'S INCLUDED ON THESE PLANS IS CONTAINED IN THE PRODUCT DESCRIPTION. PLEASE SCROLL UP AND YOU WILL FIND IT UNDER "WHAT'S INCLUDED"
What's Not Included
What's Not Included
The following items are NOT included:
Architectural or Engineering Stamp. Our plans are engineering-ready! Can take them to a local engineer in your state.
Site Plan - We can provide this if needed for $300 additional.
Materials List - handled locally when required
Energy calculations - handled locally when required
Snow load calculations - handled locally when required
Delivery
Delivery
This plan is available as a digital product or printed + shipped.
If you select digital, the plan will be delivered to you via email as a PDF file, no matter what time it is.
If you select printed + shipped, your order will ship in 24x36 format within 1 business day of your order.
We ship from the midwest in order to serve the entire country within 3-5 business days!
Return policy
Return policy
All barndominium house plan purchases are FINAL. There are no exchanges or refunds due to the digital nature of the product. Please make sure that the plan you have selected is going to fit your needs.














Real Reviews, Real Experiences
How to Build Your Own Barndominium & 120+ House Plans

Just getting started on your build? Get the Barndominiums Made Easy Program.
- Choosing a selection results in a full page refresh.