Couldn't load pickup availability
Barndominium Plans
BCO-40132-M Barndominium House Plans
DETAILS
BCO-40132-M Barndominium House Plans
Â
About this barndominium house plan:
-
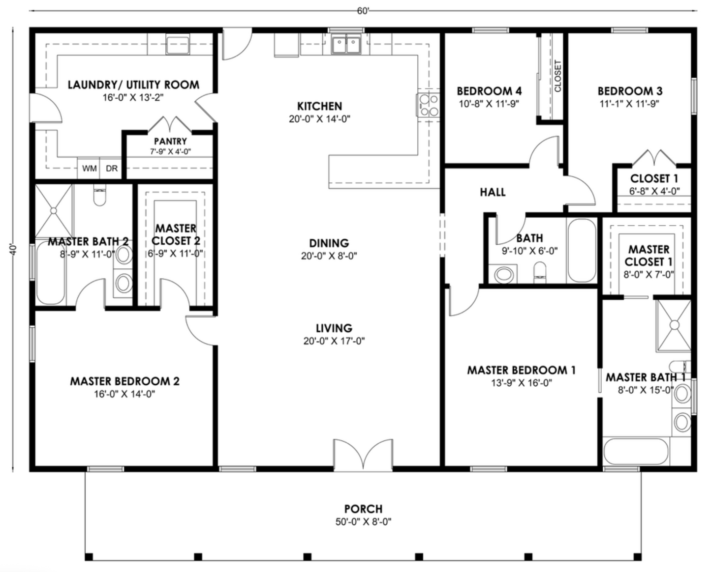
The home features a massive central open-concept core, combining a 20'-0" x 17'-0" living area, a dedicated dining space, and a large U-shaped kitchen.
-
Two primary suites anchor opposite sides of the home, with Master Bedroom 1 measuring 13'-9" x 16'-0" and Master Bedroom 2 measuring 16'-0" x 14'-0".
-
In addition to the dual master suites, the plan includes two secondary bedrooms (Bedroom 3 and Bedroom 4) situated on the right wing of the house.
-
The functional utility wing includes a generous 16'-0" x 13'-2" laundry and utility room, providing ample space for chores and storage.
-
Outdoor living is prioritized with a sprawling 50'-0" x 8'-0" front porch that stretches across nearly the entire face of the home.
Â
For more barndominium floor plans, check out our complete collection of 3-bedroom barndominium floor plans.
Â
Need to make changes? Submit a modification request using the button that says Modify This Plan . We will get you a free price quote within 72 hours
What's Included In These Plans
What's Included In These Plans
Our house plan sets have the following details:
4 Elevations – Front, Back, Both Sides
Detailed Floor Plan Drawing
Electrical Plans
Plumbing Plans
Wall Section
Roof Plan
Roof Framing Plan
Foundation Plan
For more information on what's included and examples of what your plans will look like, go here -> https://barndominiumplans.com/pages/whats-included
What's Not Included
What's Not Included
The following items are NOT included:
Architectural or Engineering Stamp - handled locally if required. We can help you find a structural engineer locally
Site Plan - handled locally when required
Energy calculations - handled locally when required
Snow load calculations - handled locally when required
Delivery
Delivery
This plan is available as a digital product or printed + shipped.
If you select digital, the plan will be delivered to you via email as a PDF file.
If you select printed + shipped, your order will ship in 24x36 format within 1 business day of your order.
We ship from the midwest in order to serve the entire country within 3-5 business days!
Return policy
Return policy
All barndominium house plan purchases are FINAL. There are no exchanges or refunds due to the digital nature of the product. Please make sure that the plan you have selected is going to fit your needs.
PDF (Single Build) $1,349.99
DETAILS
BCO-40132-M Barndominium House Plans
Â
About this barndominium house plan:
-
The home features a massive central open-concept core, combining a 20'-0" x 17'-0" living area, a dedicated dining space, and a large U-shaped kitchen.
-
Two primary suites anchor opposite sides of the home, with Master Bedroom 1 measuring 13'-9" x 16'-0" and Master Bedroom 2 measuring 16'-0" x 14'-0".
-
In addition to the dual master suites, the plan includes two secondary bedrooms (Bedroom 3 and Bedroom 4) situated on the right wing of the house.
-
The functional utility wing includes a generous 16'-0" x 13'-2" laundry and utility room, providing ample space for chores and storage.
-
Outdoor living is prioritized with a sprawling 50'-0" x 8'-0" front porch that stretches across nearly the entire face of the home.
Â
For more barndominium floor plans, check out our complete collection of 3-bedroom barndominium floor plans.
Â
Need to make changes? Submit a modification request using the button that says Modify This Plan . We will get you a free price quote within 72 hours
What's Included In These Plans
What's Included In These Plans
Our house plan sets have the following details:
4 Elevations – Front, Back, Both Sides
Detailed Floor Plan Drawing
Electrical Plans
Plumbing Plans
Wall Section
Roof Plan
Roof Framing Plan
Foundation Plan
For more information on what's included and examples of what your plans will look like, go here -> https://barndominiumplans.com/pages/whats-included
What's Not Included
What's Not Included
The following items are NOT included:
Architectural or Engineering Stamp - handled locally if required. We can help you find a structural engineer locally
Site Plan - handled locally when required
Energy calculations - handled locally when required
Snow load calculations - handled locally when required
Delivery
Delivery
This plan is available as a digital product or printed + shipped.
If you select digital, the plan will be delivered to you via email as a PDF file.
If you select printed + shipped, your order will ship in 24x36 format within 1 business day of your order.
We ship from the midwest in order to serve the entire country within 3-5 business days!
Return policy
Return policy
All barndominium house plan purchases are FINAL. There are no exchanges or refunds due to the digital nature of the product. Please make sure that the plan you have selected is going to fit your needs.

Real Reviews, Real Experiences
How to Build Your Own Barndominium & 120+ House Plans
Just getting started on your build? Get the Barndominiums Made Easy Program.
- Choosing a selection results in a full page refresh.



