Couldn't load pickup availability
Barndominium Plans
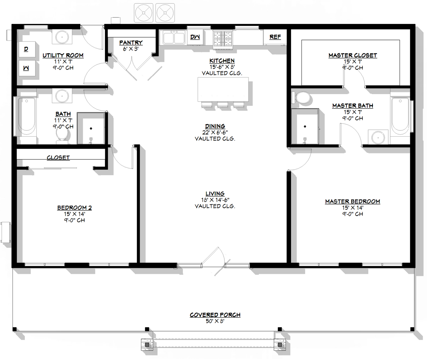
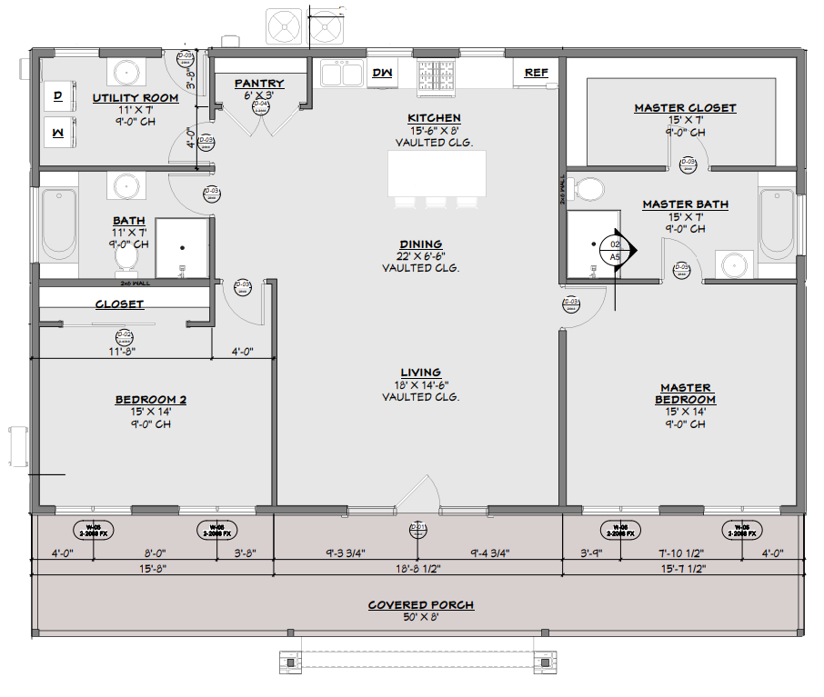
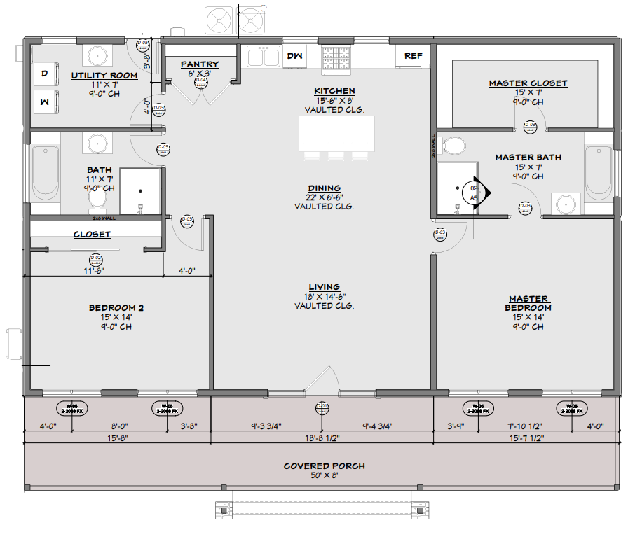
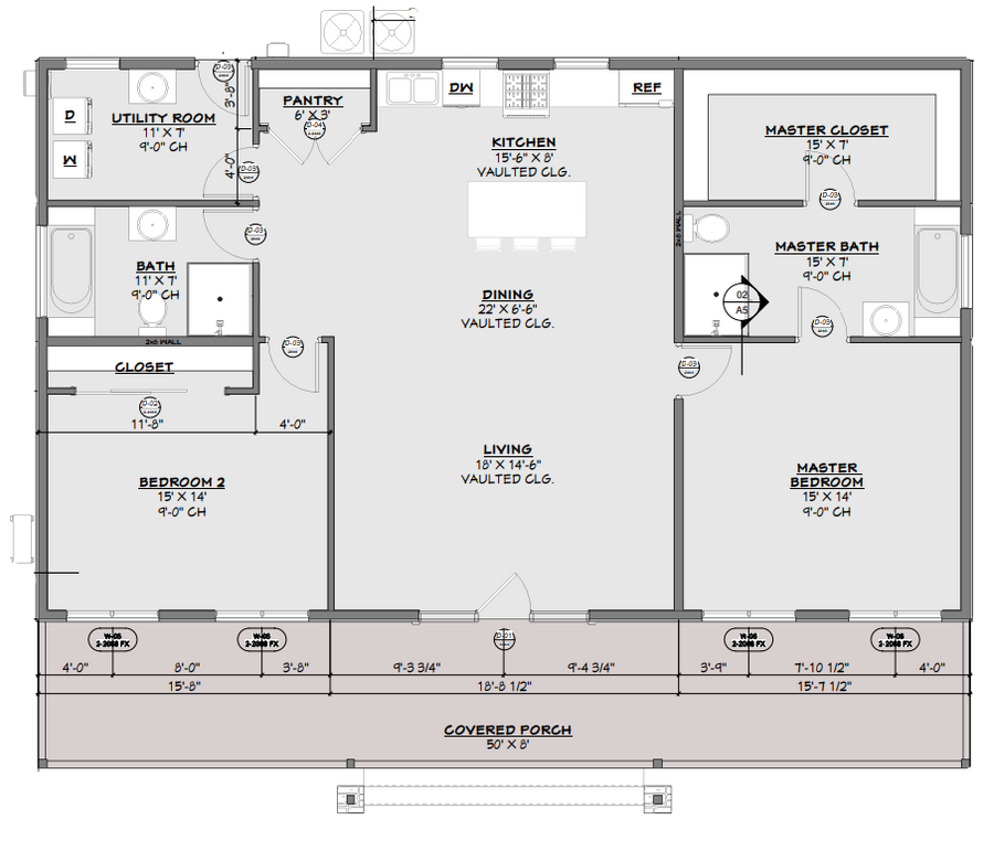
BCO-40122 Carl Barndominium House Plan
DETAILS
HEATED SQ FT
First Floor:
1,500 SF
Total Heated Sq Ft:
1,500 SF
UNHEATED SQ FT
400 SF
Carport:None
2
2
1
None
50'
38'
Eave height 10'
Concrete Slab
6:12
Post Frame
BCO-40122 Carl Barndominium House Plan
Â
About this barndominium house plan:
- 1,500 Heated Sq Ft
- 2 bedrooms
- 2 bathrooms
- Single Story
- Open Concept
- Utility room
- Front Porch
Â
- This efficient two-bedroom barndominium floor plan maximizes space while maintaining a comfortable and open feel.
- The open-concept living, dining, and kitchen areas form the heart of the home, perfect for both everyday living and hosting guests.
- The master suite is a private retreat, featuring a large bedroom, a spacious closet, and a luxurious en-suite bathroom.
- A second bedroom is located on the opposite side of the home for privacy, with a full bathroom and a dedicated utility room conveniently nearby.
- A full-length front porch extends the living space outdoors, providing a great area for relaxation.
Â
What's included in BCO-40122:
Cover Page
Floor Plan
Exterior Elevations
Building Sections
Wall Section and Attic Details
Foundation Plan
Foundation Detail
Basic Plumbing Plan and Details
Electrical Plan
Roof Framing Plan
Roof Plan
Â
For more barndominium floor plans, check out our complete collection of 2-bedroom barndominium floor plans.
Â
Need to make changes? Submit a modification request using the button that says Modify This Plan. We will get you a free price quote within 72 hours
What's Typically Included
What's Typically Included
THE SPECIFC DETAILS OF WHAT'S INCLUDED ON THESE PLANS IS CONTAINED IN THE PRODUCT DESCRIPTION. PLEASE SCROLL UP AND YOU WILL FIND IT UNDER "WHAT'S INCLUDED"
Our house plan sets typically have the following details:
4 Elevations – Front, Back, Both Sides
Detailed Floor Plan Drawing
Electrical Plans with placements for HVAC
Plumbing Plans with Placements
Flooring Plan
Roof Plan
Foundation Plan
For more information on what's included and examples of what your plans will look like, go here -> https://barndominiumplans.com/pages/whats-included
Please Note: We work with many different draftspeople who work in many different ways. It should be noted that their plans may contain different details. THE SPECIFC DETAILS OF WHAT'S INCLUDED ON THESE PLANS IS CONTAINED IN THE PRODUCT DESCRIPTION. PLEASE SCROLL UP AND YOU WILL FIND IT UNDER "WHAT'S INCLUDED"
What's Not Included
What's Not Included
The following items are NOT included:
Architectural or Engineering Stamp. Our plans are engineering-ready! Can take them to a local engineer in your state.
Site Plan - We can provide this if needed for $300 additional.
Materials List - handled locally when required
Energy calculations - handled locally when required
Snow load calculations - handled locally when required
Delivery
Delivery
This plan is available as a digital product or printed + shipped.
If you select digital, the plan will be delivered to you via email as a PDF file, no matter what time it is.
If you select printed + shipped, your order will ship in 24x36 format within 1 business day of your order.
We ship from the midwest in order to serve the entire country within 3-5 business days!
Return policy
Return policy
All barndominium house plan purchases are FINAL. There are no exchanges or refunds due to the digital nature of the product. Please make sure that the plan you have selected is going to fit your needs.
PDF (Single Build) $849.99
DETAILS
HEATED SQ FT
First Floor:
1,500 SF
Total Heated Sq Ft:
1,500 SF
UNHEATED SQ FT
400 SF
Carport:None
2
2
1
None
50'
38'
Eave height 10'
Concrete Slab
6:12
Post Frame
BCO-40122 Carl Barndominium House Plan
Â
About this barndominium house plan:
- 1,500 Heated Sq Ft
- 2 bedrooms
- 2 bathrooms
- Single Story
- Open Concept
- Utility room
- Front Porch
Â
- This efficient two-bedroom barndominium floor plan maximizes space while maintaining a comfortable and open feel.
- The open-concept living, dining, and kitchen areas form the heart of the home, perfect for both everyday living and hosting guests.
- The master suite is a private retreat, featuring a large bedroom, a spacious closet, and a luxurious en-suite bathroom.
- A second bedroom is located on the opposite side of the home for privacy, with a full bathroom and a dedicated utility room conveniently nearby.
- A full-length front porch extends the living space outdoors, providing a great area for relaxation.
Â
What's included in BCO-40122:
Cover Page
Floor Plan
Exterior Elevations
Building Sections
Wall Section and Attic Details
Foundation Plan
Foundation Detail
Basic Plumbing Plan and Details
Electrical Plan
Roof Framing Plan
Roof Plan
Â
For more barndominium floor plans, check out our complete collection of 2-bedroom barndominium floor plans.
Â
Need to make changes? Submit a modification request using the button that says Modify This Plan. We will get you a free price quote within 72 hours
What's Typically Included
What's Typically Included
THE SPECIFC DETAILS OF WHAT'S INCLUDED ON THESE PLANS IS CONTAINED IN THE PRODUCT DESCRIPTION. PLEASE SCROLL UP AND YOU WILL FIND IT UNDER "WHAT'S INCLUDED"
Our house plan sets typically have the following details:
4 Elevations – Front, Back, Both Sides
Detailed Floor Plan Drawing
Electrical Plans with placements for HVAC
Plumbing Plans with Placements
Flooring Plan
Roof Plan
Foundation Plan
For more information on what's included and examples of what your plans will look like, go here -> https://barndominiumplans.com/pages/whats-included
Please Note: We work with many different draftspeople who work in many different ways. It should be noted that their plans may contain different details. THE SPECIFC DETAILS OF WHAT'S INCLUDED ON THESE PLANS IS CONTAINED IN THE PRODUCT DESCRIPTION. PLEASE SCROLL UP AND YOU WILL FIND IT UNDER "WHAT'S INCLUDED"
What's Not Included
What's Not Included
The following items are NOT included:
Architectural or Engineering Stamp. Our plans are engineering-ready! Can take them to a local engineer in your state.
Site Plan - We can provide this if needed for $300 additional.
Materials List - handled locally when required
Energy calculations - handled locally when required
Snow load calculations - handled locally when required
Delivery
Delivery
This plan is available as a digital product or printed + shipped.
If you select digital, the plan will be delivered to you via email as a PDF file, no matter what time it is.
If you select printed + shipped, your order will ship in 24x36 format within 1 business day of your order.
We ship from the midwest in order to serve the entire country within 3-5 business days!
Return policy
Return policy
All barndominium house plan purchases are FINAL. There are no exchanges or refunds due to the digital nature of the product. Please make sure that the plan you have selected is going to fit your needs.

Real Reviews, Real Experiences
How to Build Your Own Barndominium & 120+ House Plans
Just getting started on your build? Get the Barndominiums Made Easy Program.
- Choosing a selection results in a full page refresh.



