Couldn't load pickup availability
Barndominium Plans
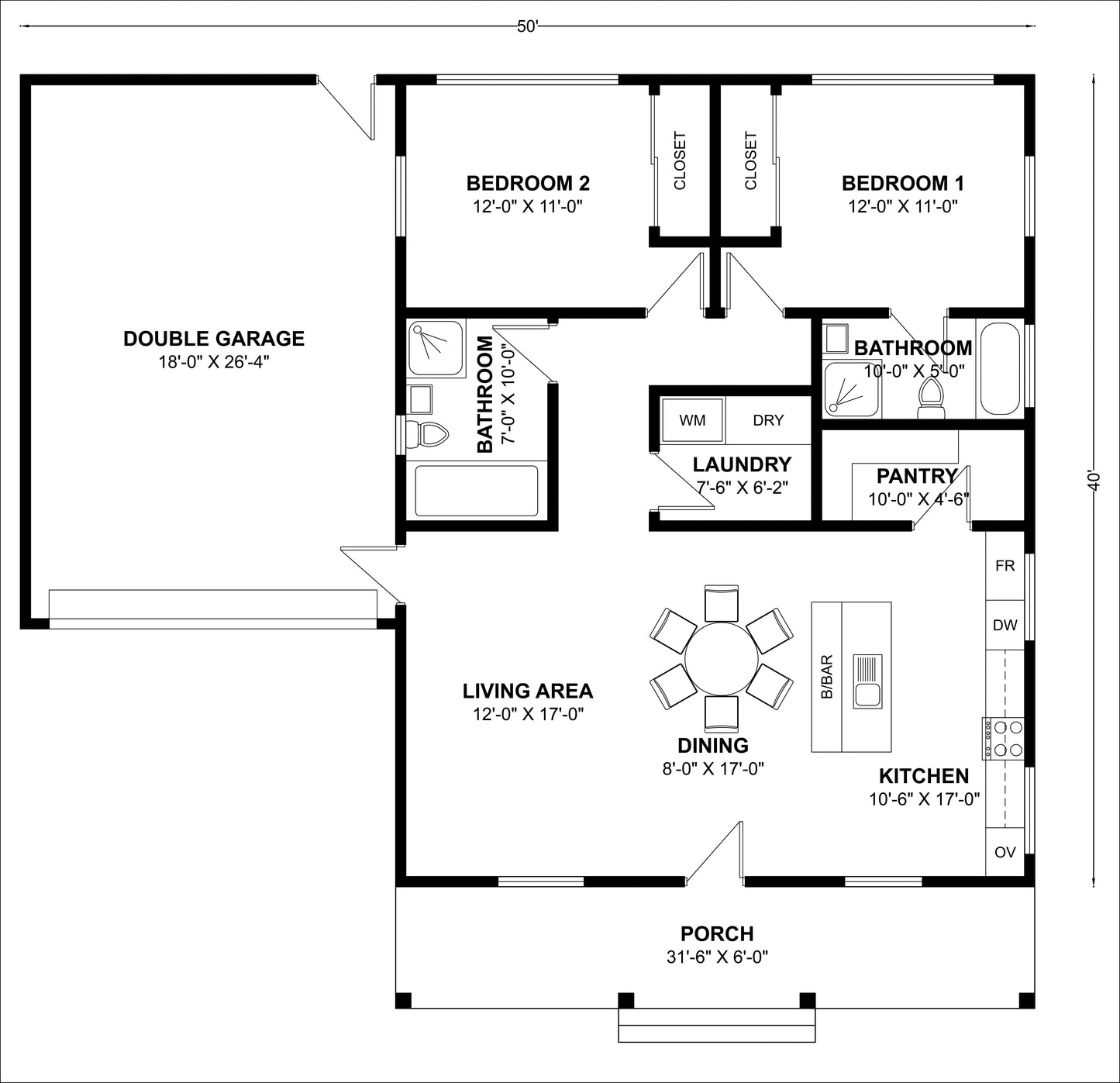
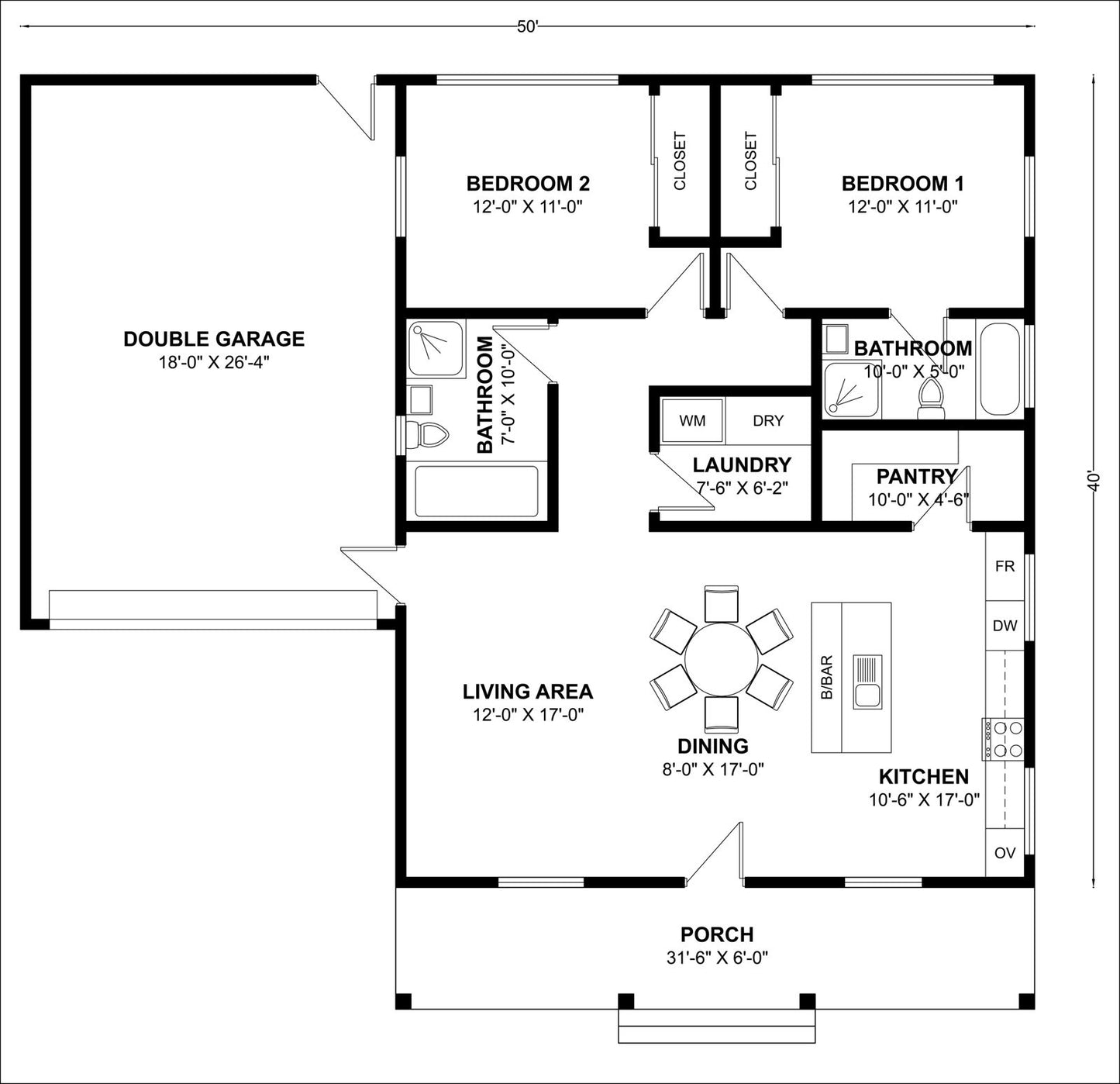
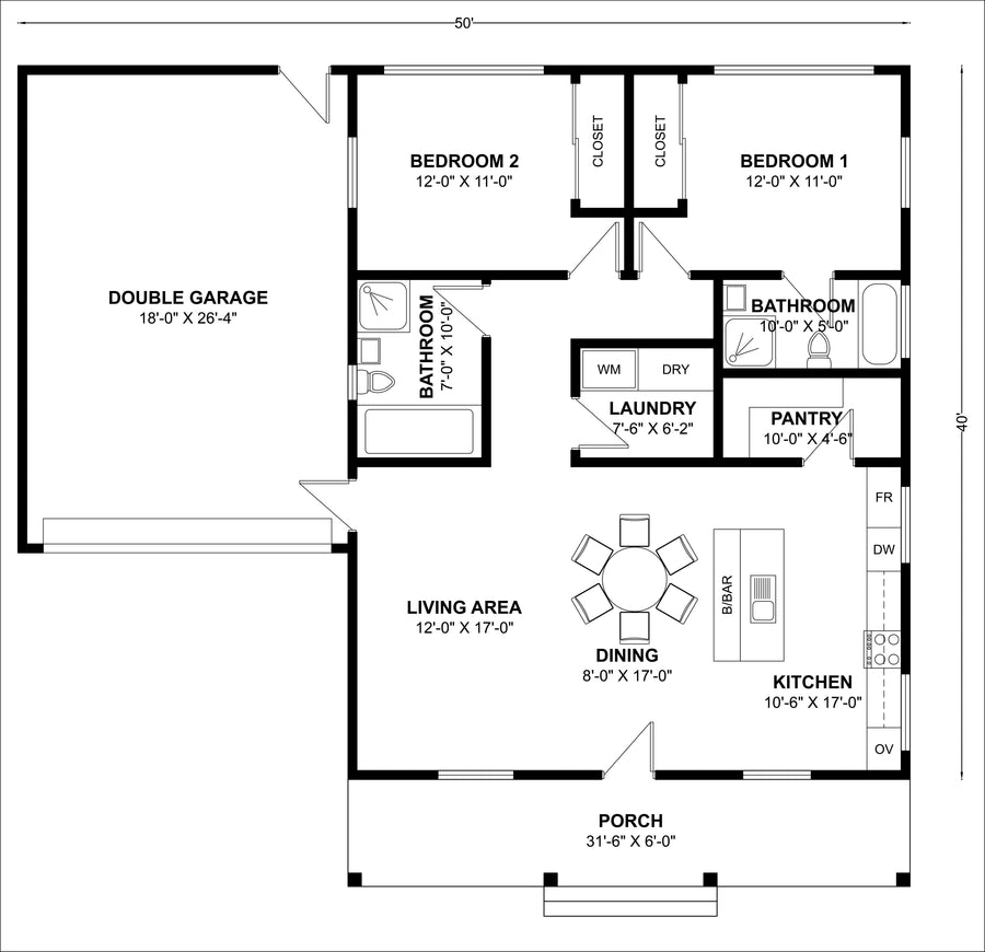
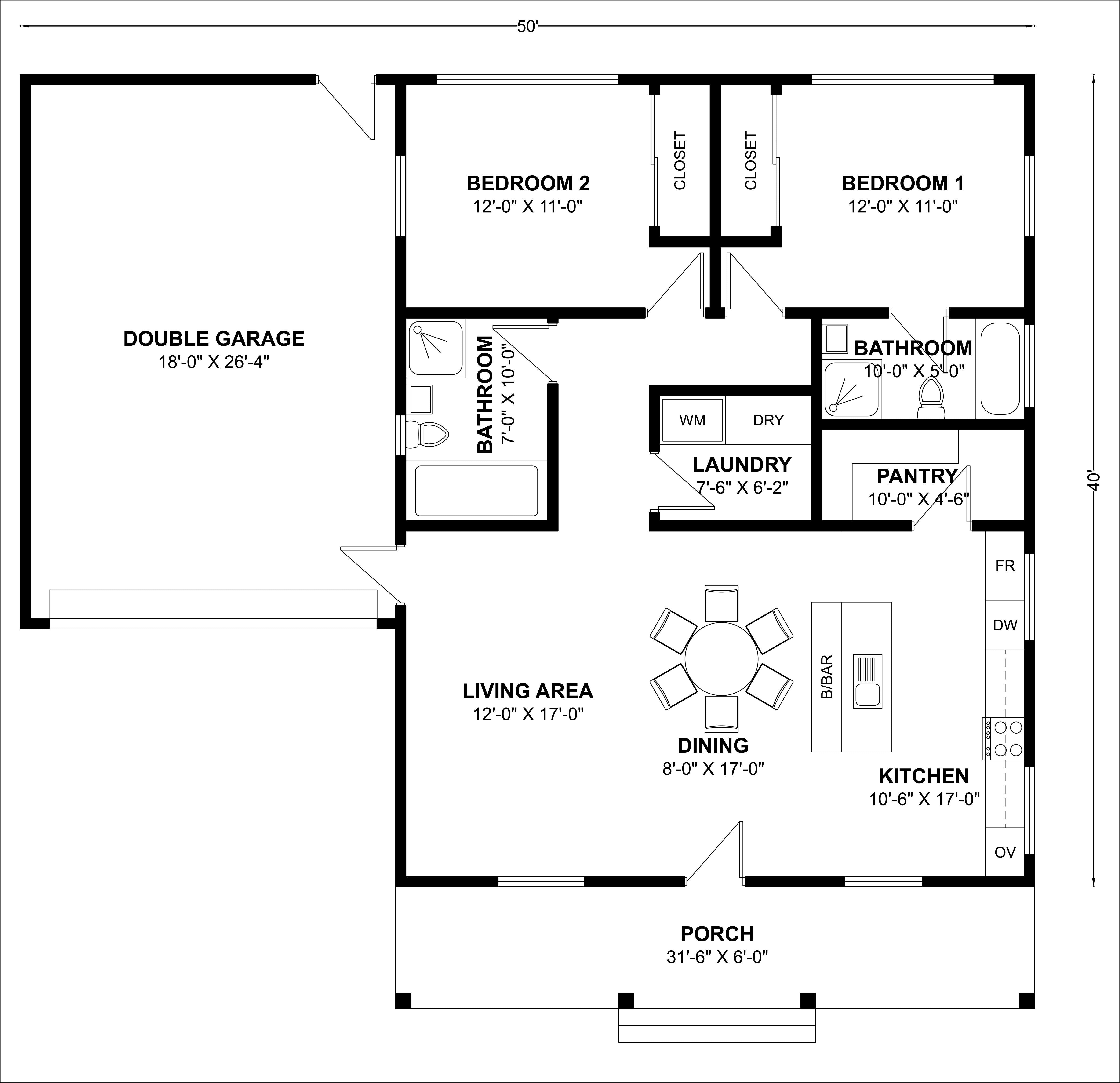
BCO-40086 Barndominium House Plan
DETAILS
BCO-40086 Barndominium House Plan
- This efficient single-story floor plan offers approximately 1,300 square feet of well-designed living space with two bedrooms, two full bathrooms, and an attached double garage.
- The home features a bright and open main living space where the 12'x17' living area flows into the dining space and a large 10'-6" x 17'-0" kitchen, complete with a breakfast bar and a generous walk-in pantry.
- Two identically sized 12'-0" x 11'-0" bedrooms are situated for privacy, separated by the central living areas and each with convenient access to a full bathroom.
- Practical features like a dedicated 7'-6" x 6'-2" laundry room and direct entry from the 18' x 26'-4" garage add to the home's everyday convenience.
- Fronted by a welcoming 31-foot wide porch, this charming plan is a fantastic option for a small family or those looking to downsize without sacrificing functionality.
For more barndominium floor plans, check out our complete collection of 2-bedroom barndominium floor plans.
Need to make changes? Submit a modification request using the button that says Modify This Plan . We will get you a free price quote within 72 hours
What's Included In These Plans
What's Included In These Plans
Our house plan sets have the following details:
4 Elevations – Front, Back, Both Sides
Detailed Floor Plan Drawing
Electrical Plans
Plumbing Plans
Wall Section
Roof Plan
Roof Framing Plan
Foundation Plan
For more information on what's included and examples of what your plans will look like, go here -> https://barndominiumplans.com/pages/whats-included
What's Not Included
What's Not Included
The following items are NOT included:
Architectural or Engineering Stamp - handled locally if required. We can help you find a structural engineer locally
Site Plan - handled locally when required
Energy calculations - handled locally when required
Snow load calculations - handled locally when required
Delivery
Delivery
This plan is available as a digital product or printed + shipped.
If you select digital, the plan will be delivered to you via email as a PDF file.
If you select printed + shipped, your order will ship in 24x36 format within 1 business day of your order.
We ship from the midwest in order to serve the entire country within 3-5 business days!
Return policy
Return policy
All barndominium house plan purchases are FINAL. There are no exchanges or refunds due to the digital nature of the product. Please make sure that the plan you have selected is going to fit your needs.
PDF (Single Build) $1,349.99
DETAILS
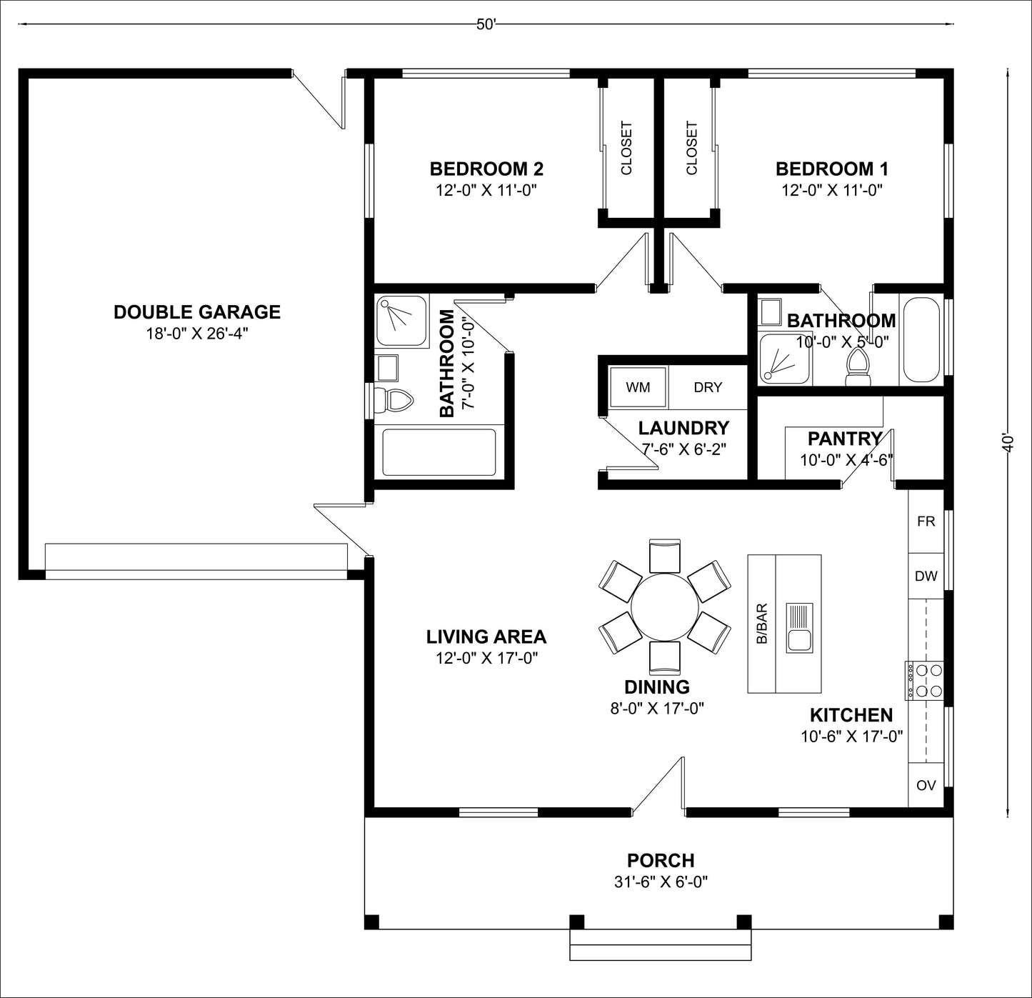
BCO-40086 Barndominium House Plan
- This efficient single-story floor plan offers approximately 1,300 square feet of well-designed living space with two bedrooms, two full bathrooms, and an attached double garage.
- The home features a bright and open main living space where the 12'x17' living area flows into the dining space and a large 10'-6" x 17'-0" kitchen, complete with a breakfast bar and a generous walk-in pantry.
- Two identically sized 12'-0" x 11'-0" bedrooms are situated for privacy, separated by the central living areas and each with convenient access to a full bathroom.
- Practical features like a dedicated 7'-6" x 6'-2" laundry room and direct entry from the 18' x 26'-4" garage add to the home's everyday convenience.
- Fronted by a welcoming 31-foot wide porch, this charming plan is a fantastic option for a small family or those looking to downsize without sacrificing functionality.
For more barndominium floor plans, check out our complete collection of 2-bedroom barndominium floor plans.
Need to make changes? Submit a modification request using the button that says Modify This Plan . We will get you a free price quote within 72 hours
What's Included In These Plans
What's Included In These Plans
Our house plan sets have the following details:
4 Elevations – Front, Back, Both Sides
Detailed Floor Plan Drawing
Electrical Plans
Plumbing Plans
Wall Section
Roof Plan
Roof Framing Plan
Foundation Plan
For more information on what's included and examples of what your plans will look like, go here -> https://barndominiumplans.com/pages/whats-included
What's Not Included
What's Not Included
The following items are NOT included:
Architectural or Engineering Stamp - handled locally if required. We can help you find a structural engineer locally
Site Plan - handled locally when required
Energy calculations - handled locally when required
Snow load calculations - handled locally when required
Delivery
Delivery
This plan is available as a digital product or printed + shipped.
If you select digital, the plan will be delivered to you via email as a PDF file.
If you select printed + shipped, your order will ship in 24x36 format within 1 business day of your order.
We ship from the midwest in order to serve the entire country within 3-5 business days!
Return policy
Return policy
All barndominium house plan purchases are FINAL. There are no exchanges or refunds due to the digital nature of the product. Please make sure that the plan you have selected is going to fit your needs.

Modify Plan - BCO-40086 Barndominium House Plan
Tell Us Your Changes
Use the form below to describe the changes you would like to make. You may also upload marked-up drawings along with your written request.
We Provide The Quote
We will review your modification request and provide a quote within 1-2 business days. The quote will have the modification price and the timeframe for making your changes.
Place Your Order
Once you place the order and submit payment, we will start the modification process.
Get Your Plans!
We deliver your modified plans! We're here to make sure that you get exactly what you ordered.
Example Of A GREAT Modification Request
- Extend the garage to create a three-car garage.
- Extend Bedroom 2 so it aligns with the rear of the home.
- Use extra space when widening bedroom 2 to jut into the laundry room
- Lengthen kitchen countertops from left side and move kitchen island 18"
Can also attach a screenshot of drawing or iPhone markup
Can I See The Modified Plans Before Paying?
Unfortunately, no. In order for our design team to open up the file and start making changes, we must have full payment made in advance.
Worried about getting back plans you don't like? No sweat. Many of our designers provide an initial floor plan for your review. We will provide the final plans in a timely fashion, and any "clarifying changes" or things that were lost in translation will get corrected ASAP.
Real Reviews, Real Experiences
How to Build Your Own Barndominium & 120+ House Plans
Just getting started on your build? Get the Barndominiums Made Easy Program.
- Choosing a selection results in a full page refresh.



