Couldn't load pickup availability
Barndominium Plans
BCO-40069 Jay Barndominium House Plan
DETAILS
HEATED SQ FT
First Floor:
1,750 SF
Second Floor:None
Total Heated Sq Ft:1,750 SF
UNHEATED SQ FT
480 SF
Carport:None
2
2
1
None
50'
35'
Eave Height 10'
Concrete Slab
06:12
Stick-Frame
CEILING HEIGHTS
9'
BCO-40069 Jay Barndominium House Plan
Â
About this barndominium house plan:
- 1750 Heated square feet
- 35x50 living space dimension
- 2 Bedrooms
- 2 Bathrooms
- Single Story
- Open concept
- Front porch
Â
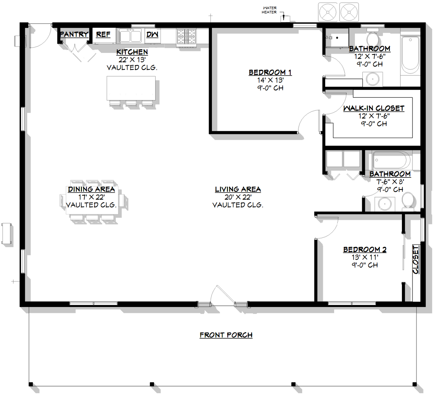
- This single-story home, BCO-40069, encompasses 1750 square feet, with overall dimensions of 50 feet in length and 35 feet in width.
- The floor plan features two bedrooms, including Bedroom 1 measuring 14' x 13'.
- It also provides two bathrooms, one specifically sized 12' x 7'6" and the other 7'6" x 8'.
- The central living area includes a living room of 20' x 22' and a dining room measuring 17' x 22', adjacent to a kitchen that is 24' x 13'.
- This design offers a well-appointed and functional living space suitable for a family, without an integrated garage.
Â
What's included in BCO-40069:
Cover Page
Floor Plan
Roof Plan
Front And Rear Elevation
Right And Left Elevation
Electrical Plan
Plumbing Plan
HVAC Plan
Roof Framing Plan
Foundation Plan
Foundation Detail
C-Typical Column Detail
Wall Section
Â
For more barndominium floor plans, check out our complete collection of 2-bedroom barndominium floor plans.
Need to make changes? Submit a modification request using the button that says Modify This Plan . We will get you a free price quote within 72 hours
What's Typically Included
What's Typically Included
THE SPECIFC DETAILS OF WHAT'S INCLUDED ON THESE PLANS IS CONTAINED IN THE PRODUCT DESCRIPTION. PLEASE SCROLL UP AND YOU WILL FIND IT UNDER "WHAT'S INCLUDED"
Our house plan sets typically have the following details:
4 Elevations – Front, Back, Both Sides
Detailed Floor Plan Drawing
Electrical Plans with placements for HVAC
Plumbing Plans with Placements
Flooring Plan
Roof Plan
Foundation Plan
For more information on what's included and examples of what your plans will look like, go here -> https://barndominiumplans.com/pages/whats-included
Please Note: We work with many different draftspeople who work in many different ways. It should be noted that their plans may contain different details. THE SPECIFC DETAILS OF WHAT'S INCLUDED ON THESE PLANS IS CONTAINED IN THE PRODUCT DESCRIPTION. PLEASE SCROLL UP AND YOU WILL FIND IT UNDER "WHAT'S INCLUDED"
What's Not Included
What's Not Included
The following items are NOT included:
Architectural or Engineering Stamp. Our plans are engineering-ready! Can take them to a local engineer in your state.
Site Plan - We can provide this if needed for $300 additional.
Materials List - handled locally when required
Energy calculations - handled locally when required
Snow load calculations - handled locally when required
Delivery
Delivery
This plan is available as a digital product or printed + shipped.
If you select digital, the plan will be delivered to you via email as a PDF file, no matter what time it is.
If you select printed + shipped, your order will ship in 24x36 format within 1 business day of your order.
We ship from the midwest in order to serve the entire country within 3-5 business days!
Return policy
Return policy
All barndominium house plan purchases are FINAL. There are no exchanges or refunds due to the digital nature of the product. Please make sure that the plan you have selected is going to fit your needs.
PDF (Single Build) $849.99
DETAILS
HEATED SQ FT
First Floor:
1,750 SF
Second Floor:None
Total Heated Sq Ft:1,750 SF
UNHEATED SQ FT
480 SF
Carport:None
2
2
1
None
50'
35'
Eave Height 10'
Concrete Slab
06:12
Stick-Frame
CEILING HEIGHTS
9'
BCO-40069 Jay Barndominium House Plan
Â
About this barndominium house plan:
- 1750 Heated square feet
- 35x50 living space dimension
- 2 Bedrooms
- 2 Bathrooms
- Single Story
- Open concept
- Front porch
Â
- This single-story home, BCO-40069, encompasses 1750 square feet, with overall dimensions of 50 feet in length and 35 feet in width.
- The floor plan features two bedrooms, including Bedroom 1 measuring 14' x 13'.
- It also provides two bathrooms, one specifically sized 12' x 7'6" and the other 7'6" x 8'.
- The central living area includes a living room of 20' x 22' and a dining room measuring 17' x 22', adjacent to a kitchen that is 24' x 13'.
- This design offers a well-appointed and functional living space suitable for a family, without an integrated garage.
Â
What's included in BCO-40069:
Cover Page
Floor Plan
Roof Plan
Front And Rear Elevation
Right And Left Elevation
Electrical Plan
Plumbing Plan
HVAC Plan
Roof Framing Plan
Foundation Plan
Foundation Detail
C-Typical Column Detail
Wall Section
Â
For more barndominium floor plans, check out our complete collection of 2-bedroom barndominium floor plans.
Need to make changes? Submit a modification request using the button that says Modify This Plan . We will get you a free price quote within 72 hours
What's Typically Included
What's Typically Included
THE SPECIFC DETAILS OF WHAT'S INCLUDED ON THESE PLANS IS CONTAINED IN THE PRODUCT DESCRIPTION. PLEASE SCROLL UP AND YOU WILL FIND IT UNDER "WHAT'S INCLUDED"
Our house plan sets typically have the following details:
4 Elevations – Front, Back, Both Sides
Detailed Floor Plan Drawing
Electrical Plans with placements for HVAC
Plumbing Plans with Placements
Flooring Plan
Roof Plan
Foundation Plan
For more information on what's included and examples of what your plans will look like, go here -> https://barndominiumplans.com/pages/whats-included
Please Note: We work with many different draftspeople who work in many different ways. It should be noted that their plans may contain different details. THE SPECIFC DETAILS OF WHAT'S INCLUDED ON THESE PLANS IS CONTAINED IN THE PRODUCT DESCRIPTION. PLEASE SCROLL UP AND YOU WILL FIND IT UNDER "WHAT'S INCLUDED"
What's Not Included
What's Not Included
The following items are NOT included:
Architectural or Engineering Stamp. Our plans are engineering-ready! Can take them to a local engineer in your state.
Site Plan - We can provide this if needed for $300 additional.
Materials List - handled locally when required
Energy calculations - handled locally when required
Snow load calculations - handled locally when required
Delivery
Delivery
This plan is available as a digital product or printed + shipped.
If you select digital, the plan will be delivered to you via email as a PDF file, no matter what time it is.
If you select printed + shipped, your order will ship in 24x36 format within 1 business day of your order.
We ship from the midwest in order to serve the entire country within 3-5 business days!
Return policy
Return policy
All barndominium house plan purchases are FINAL. There are no exchanges or refunds due to the digital nature of the product. Please make sure that the plan you have selected is going to fit your needs.

Real Reviews, Real Experiences
How to Build Your Own Barndominium & 120+ House Plans
Just getting started on your build? Get the Barndominiums Made Easy Program.
- Choosing a selection results in a full page refresh.



