Couldn't load pickup availability
Barndominium Plans
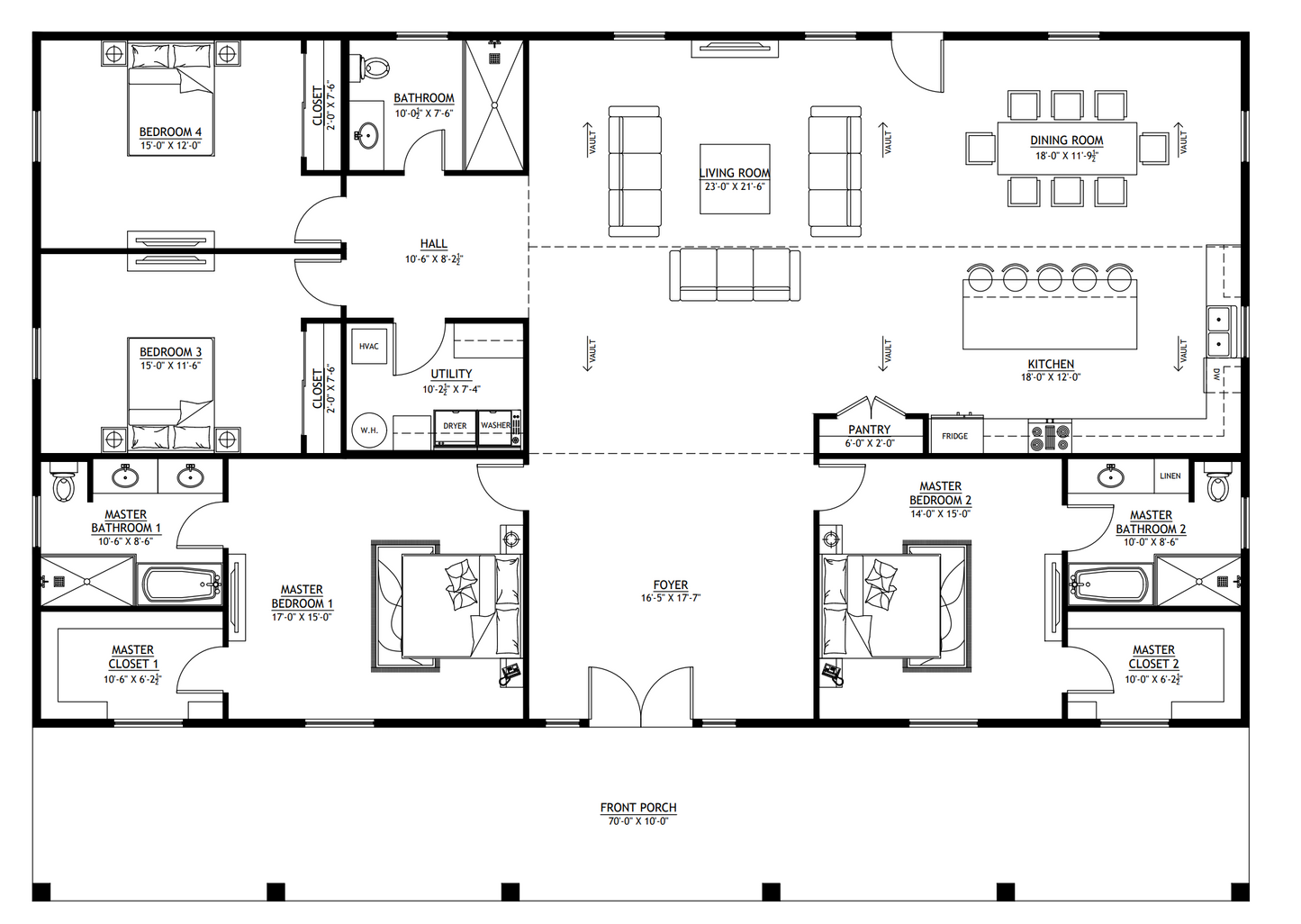
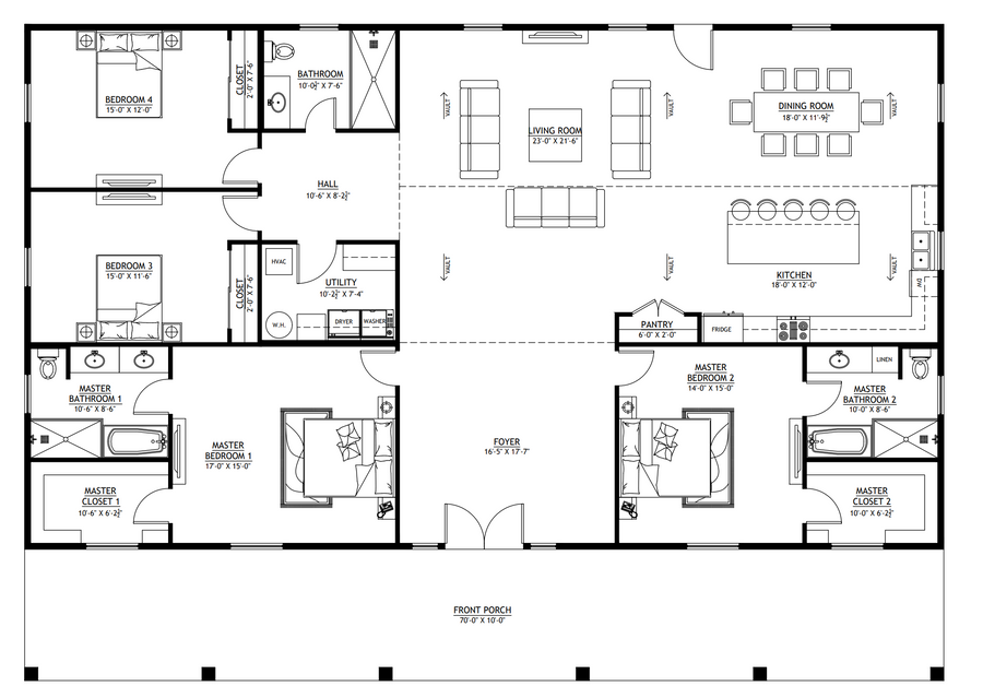
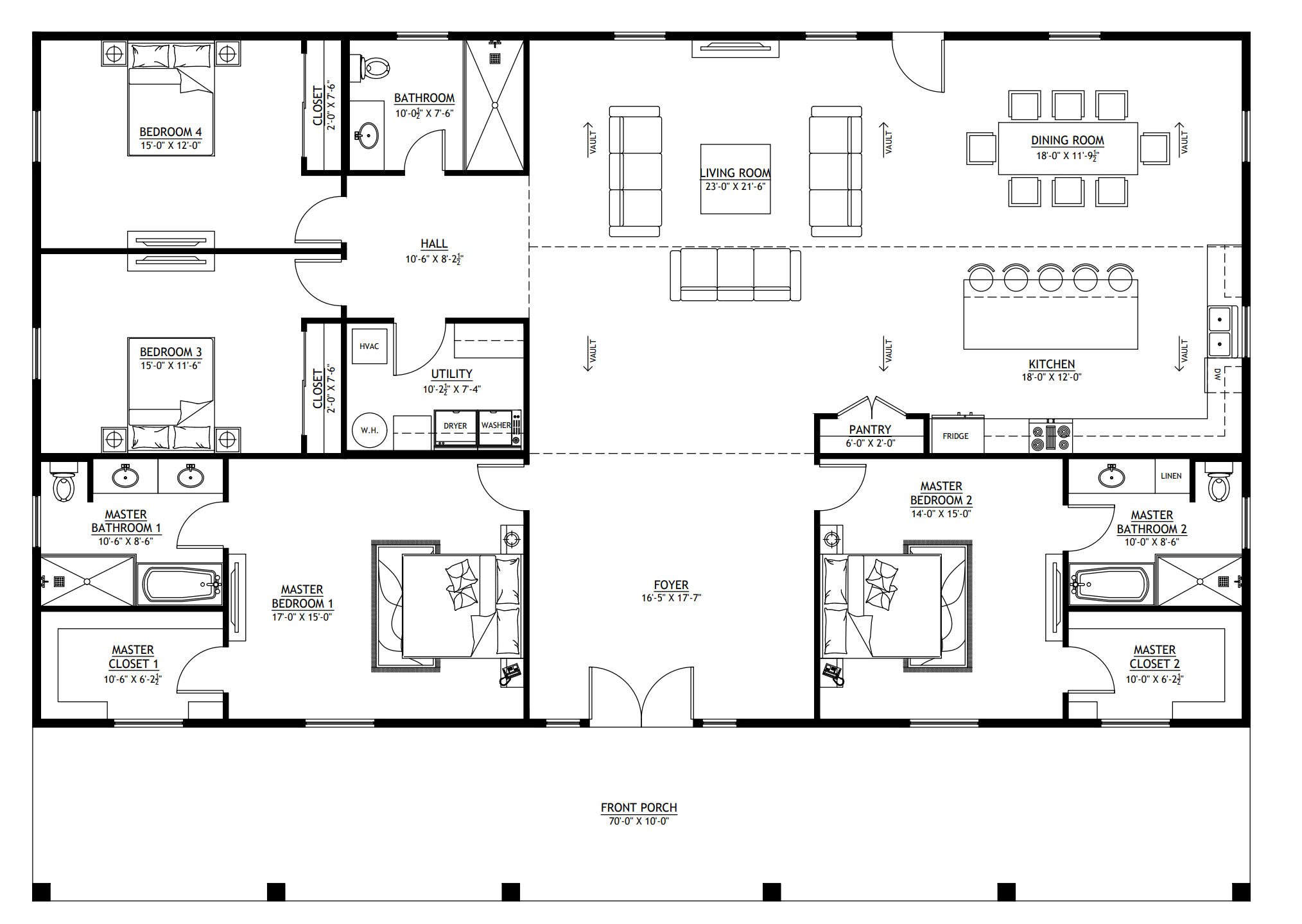
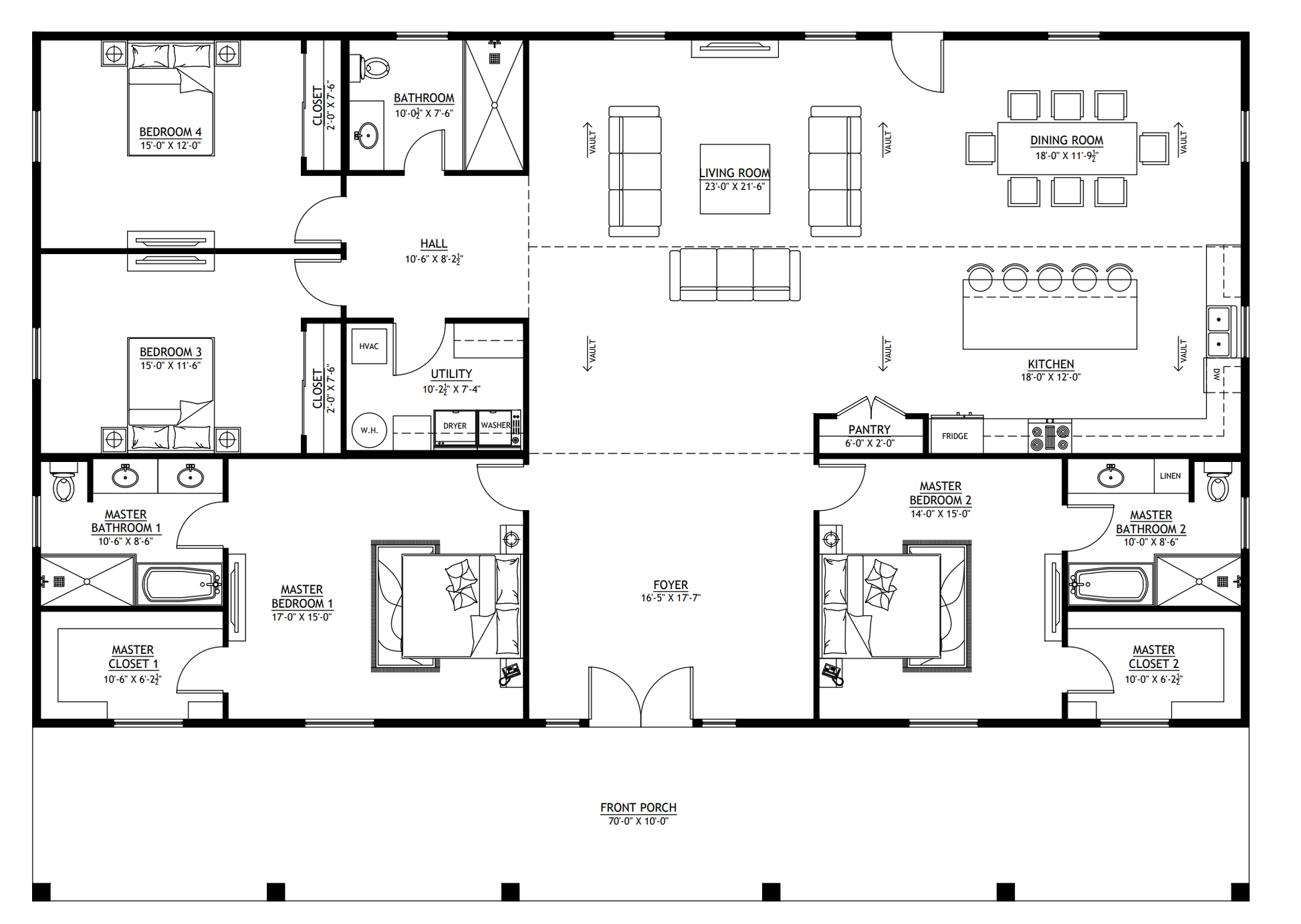
BCO-40066 Bullchase Barndominium House Plan
DETAILS
HEATED SQ FT
First Floor:
2,800 SF
Second Floor:None
Total Heated Sq Ft:2,800 SF
UNHEATED SQ FT
700 SF
Carport:None
4
3
1
None
70'
50'
26'-2 1/4"
Crawl Space
8:12
Stick Frame (Metal Shell also available at no add'l cost)
CEILING HEIGHTS
10'
BCO-40066 Bullchase Barndominium House Plan
Looking for a spacious layout with dual master suites? The Bullchase offers a unique multi-suite design perfect for multi-generational living or long-term guests.
About this barndominium house plan:
- 2800 heated square feet
- 70x40 layout with a large front porch running the full width of the home
- 4 bedrooms (including two full master suites)
- 3 bathrooms
- Single story
- Foyer
- Open-concept living, dining, and kitchen
- Vaulted ceilings throughout main living areas
- Spacious utility room with dedicated washer/dryer space
- Large front porch (700 sq ft) for outdoor living
- Ideal for families, shared living, or long-term guests
Â
- This single-story barndominium delivers wide-open living with a massive 23x21 living room anchored by vaulted ceilings and seamless flow into the kitchen and dining area. With 2800 sq ft of heated space, the Bullchase offers room to spread out without sacrificing charm or simplicity.
- What really sets this plan apart is the dual master suite layout, each with its own oversized bedroom, large walk-in closet, and full bathroom. Two additional bedrooms sit on the opposite wing of the home, making the layout extremely functional for extended family living.
- The full-width 70-foot front porch creates a welcoming outdoor space for entertaining or relaxing, while the interior includes a dedicated utility room, pantry, and large foyer for everyday convenience.
Â
What’s included in BCO-40066:
- Cover Page
- Floor Plan
- Roof Plan
- Front & Rear Elevation
- Right & Left Elevation
- Electrical Plan
- Plumbing Plan
- HVAC Plan
- Roof Framing Plan
- Foundation Plan
- Wall Section
Â
For more barndominium house plans, browse our complete collection of 4-bedroom barndominium layouts.
Need to make changes? Submit a modification request using the “Modify This Plan” button and you’ll receive a free quote within 72 hours.
What's Typically Included
What's Typically Included
THE SPECIFC DETAILS OF WHAT'S INCLUDED ON THESE PLANS IS CONTAINED IN THE PRODUCT DESCRIPTION. PLEASE SCROLL UP AND YOU WILL FIND IT UNDER "WHAT'S INCLUDED"
Our house plan sets typically have the following details:
4 Elevations – Front, Back, Both Sides
Detailed Floor Plan Drawing
Electrical Plans with placements for HVAC
Plumbing Plans with Placements
Flooring Plan
Roof Plan
Foundation Plan
For more information on what's included and examples of what your plans will look like, go here -> https://barndominiumplans.com/pages/whats-included
Please Note: We work with many different draftspeople who work in many different ways. It should be noted that their plans may contain different details. THE SPECIFC DETAILS OF WHAT'S INCLUDED ON THESE PLANS IS CONTAINED IN THE PRODUCT DESCRIPTION. PLEASE SCROLL UP AND YOU WILL FIND IT UNDER "WHAT'S INCLUDED"
What's Not Included
What's Not Included
The following items are NOT included:
Architectural or Engineering Stamp. Our plans are engineering-ready! Can take them to a local engineer in your state.
Site Plan - We can provide this if needed for $300 additional.
Materials List - handled locally when required
Energy calculations - handled locally when required
Snow load calculations - handled locally when required
Delivery
Delivery
This plan is available as a digital product or printed + shipped.
If you select digital, the plan will be delivered to you via email as a PDF file, no matter what time it is.
If you select printed + shipped, your order will ship in 24x36 format within 1 business day of your order.
We ship from the midwest in order to serve the entire country within 3-5 business days!
Return policy
Return policy
All barndominium house plan purchases are FINAL. There are no exchanges or refunds due to the digital nature of the product. Please make sure that the plan you have selected is going to fit your needs.
PDF (Single Build) $849.99
DETAILS
HEATED SQ FT
First Floor:
2,800 SF
Second Floor:None
Total Heated Sq Ft:2,800 SF
UNHEATED SQ FT
700 SF
Carport:None
4
3
1
None
70'
50'
26'-2 1/4"
Crawl Space
8:12
Stick Frame (Metal Shell also available at no add'l cost)
CEILING HEIGHTS
10'
BCO-40066 Bullchase Barndominium House Plan
Looking for a spacious layout with dual master suites? The Bullchase offers a unique multi-suite design perfect for multi-generational living or long-term guests.
About this barndominium house plan:
- 2800 heated square feet
- 70x40 layout with a large front porch running the full width of the home
- 4 bedrooms (including two full master suites)
- 3 bathrooms
- Single story
- Foyer
- Open-concept living, dining, and kitchen
- Vaulted ceilings throughout main living areas
- Spacious utility room with dedicated washer/dryer space
- Large front porch (700 sq ft) for outdoor living
- Ideal for families, shared living, or long-term guests
Â
- This single-story barndominium delivers wide-open living with a massive 23x21 living room anchored by vaulted ceilings and seamless flow into the kitchen and dining area. With 2800 sq ft of heated space, the Bullchase offers room to spread out without sacrificing charm or simplicity.
- What really sets this plan apart is the dual master suite layout, each with its own oversized bedroom, large walk-in closet, and full bathroom. Two additional bedrooms sit on the opposite wing of the home, making the layout extremely functional for extended family living.
- The full-width 70-foot front porch creates a welcoming outdoor space for entertaining or relaxing, while the interior includes a dedicated utility room, pantry, and large foyer for everyday convenience.
Â
What’s included in BCO-40066:
- Cover Page
- Floor Plan
- Roof Plan
- Front & Rear Elevation
- Right & Left Elevation
- Electrical Plan
- Plumbing Plan
- HVAC Plan
- Roof Framing Plan
- Foundation Plan
- Wall Section
Â
For more barndominium house plans, browse our complete collection of 4-bedroom barndominium layouts.
Need to make changes? Submit a modification request using the “Modify This Plan” button and you’ll receive a free quote within 72 hours.
What's Typically Included
What's Typically Included
THE SPECIFC DETAILS OF WHAT'S INCLUDED ON THESE PLANS IS CONTAINED IN THE PRODUCT DESCRIPTION. PLEASE SCROLL UP AND YOU WILL FIND IT UNDER "WHAT'S INCLUDED"
Our house plan sets typically have the following details:
4 Elevations – Front, Back, Both Sides
Detailed Floor Plan Drawing
Electrical Plans with placements for HVAC
Plumbing Plans with Placements
Flooring Plan
Roof Plan
Foundation Plan
For more information on what's included and examples of what your plans will look like, go here -> https://barndominiumplans.com/pages/whats-included
Please Note: We work with many different draftspeople who work in many different ways. It should be noted that their plans may contain different details. THE SPECIFC DETAILS OF WHAT'S INCLUDED ON THESE PLANS IS CONTAINED IN THE PRODUCT DESCRIPTION. PLEASE SCROLL UP AND YOU WILL FIND IT UNDER "WHAT'S INCLUDED"
What's Not Included
What's Not Included
The following items are NOT included:
Architectural or Engineering Stamp. Our plans are engineering-ready! Can take them to a local engineer in your state.
Site Plan - We can provide this if needed for $300 additional.
Materials List - handled locally when required
Energy calculations - handled locally when required
Snow load calculations - handled locally when required
Delivery
Delivery
This plan is available as a digital product or printed + shipped.
If you select digital, the plan will be delivered to you via email as a PDF file, no matter what time it is.
If you select printed + shipped, your order will ship in 24x36 format within 1 business day of your order.
We ship from the midwest in order to serve the entire country within 3-5 business days!
Return policy
Return policy
All barndominium house plan purchases are FINAL. There are no exchanges or refunds due to the digital nature of the product. Please make sure that the plan you have selected is going to fit your needs.

Real Reviews, Real Experiences
How to Build Your Own Barndominium & 120+ House Plans
Just getting started on your build? Get the Barndominiums Made Easy Program.
- Choosing a selection results in a full page refresh.



