Couldn't load pickup availability
Barndominium Plans
BCO-40045 Barndominium House Plan
This plan is in final review. Reserve now and be the first to receive the full blueprint. It will be delivered within 7-10 business days.
DETAILS
BCO-40045 Barndominium House Plan
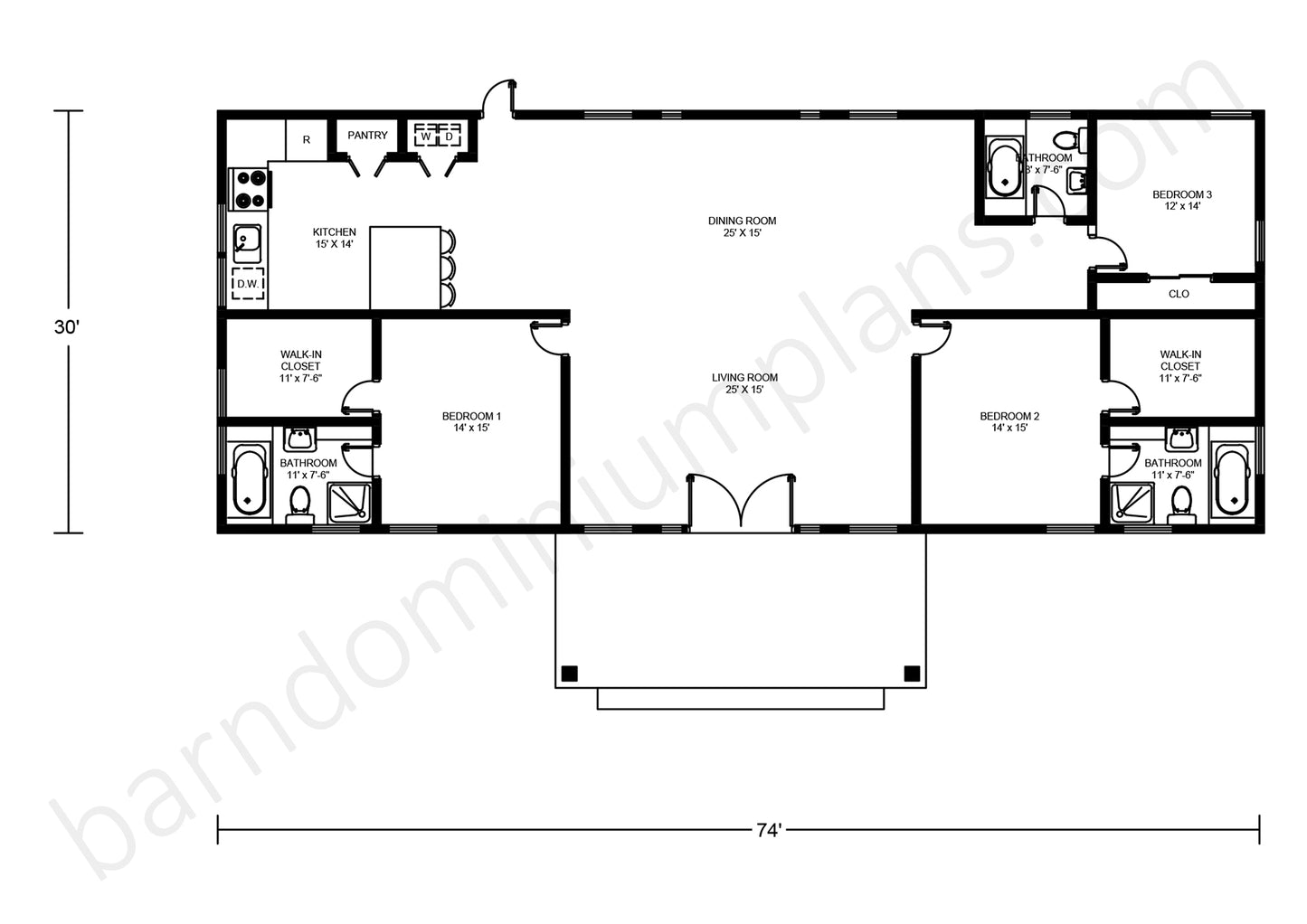
- This expansive barndominium floor plan measures 74′ in width and 30′ in depth, offering four bedrooms and four bathrooms.
- The central living area is generously sized, featuring a 25′ x 15′ dining room and a 25′ x 15′ living room, providing ample space for entertaining.
- The kitchen measures 15′ x 14′ and includes a pantry for storage.
- The master bedroom (Bedroom 1) is 14′ x 15′ and has a walk-in closet and an en-suite bathroom.
- Bedrooms 2 and 3, both 14′ x 15′ and 12′ x 14′ respectively, also feature walk-in closets and private bathrooms, offering comfortable and private accommodations for everyone.
For more barndominium floor plans, check out our complete collection of 2-bedroom barndominium floor plans.
Need to make changes? Submit a modification request using the button that says Modify This Plan (below the Add To Cart Button). We will get you a free price quote within 72 hours
Please note all square footage are estimates.
Delivery
Delivery
This plan is available as a digital product or printed + shipped.
If you select digital, the plan will be delivered to you via email as a PDF file.
If you select printed + shipped, your order will ship in 24x36 format within 1 business day of your order.
We ship from the midwest in order to serve the entire country within 3-5 business days!
Return policy
Return policy
All barndominium house plan purchases are FINAL. There are no exchanges or refunds due to the digital nature of the product. Please make sure that the plan you have selected is going to fit your needs.
PDF (Single Build) $1,349.99
DETAILS
BCO-40045 Barndominium House Plan
- This expansive barndominium floor plan measures 74′ in width and 30′ in depth, offering four bedrooms and four bathrooms.
- The central living area is generously sized, featuring a 25′ x 15′ dining room and a 25′ x 15′ living room, providing ample space for entertaining.
- The kitchen measures 15′ x 14′ and includes a pantry for storage.
- The master bedroom (Bedroom 1) is 14′ x 15′ and has a walk-in closet and an en-suite bathroom.
- Bedrooms 2 and 3, both 14′ x 15′ and 12′ x 14′ respectively, also feature walk-in closets and private bathrooms, offering comfortable and private accommodations for everyone.
For more barndominium floor plans, check out our complete collection of 2-bedroom barndominium floor plans.
Need to make changes? Submit a modification request using the button that says Modify This Plan (below the Add To Cart Button). We will get you a free price quote within 72 hours
Please note all square footage are estimates.
Delivery
Delivery
This plan is available as a digital product or printed + shipped.
If you select digital, the plan will be delivered to you via email as a PDF file.
If you select printed + shipped, your order will ship in 24x36 format within 1 business day of your order.
We ship from the midwest in order to serve the entire country within 3-5 business days!
Return policy
Return policy
All barndominium house plan purchases are FINAL. There are no exchanges or refunds due to the digital nature of the product. Please make sure that the plan you have selected is going to fit your needs.





Real Reviews, Real Experiences
How to Build Your Own Barndominium & 120+ House Plans

Just getting started on your build? Get the Barndominiums Made Easy Program.
- Choosing a selection results in a full page refresh.