Couldn't load pickup availability
Barndominium Plans
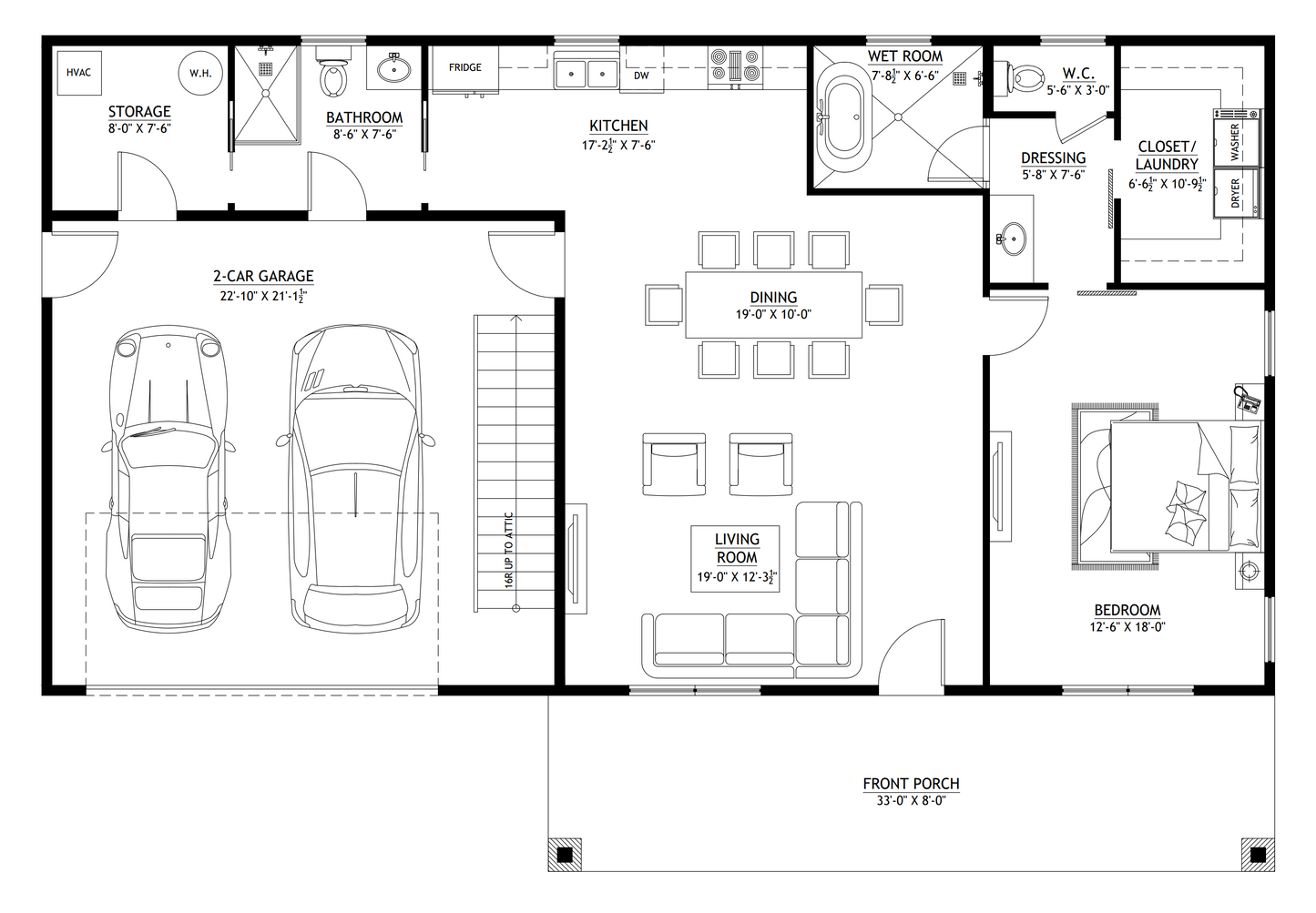
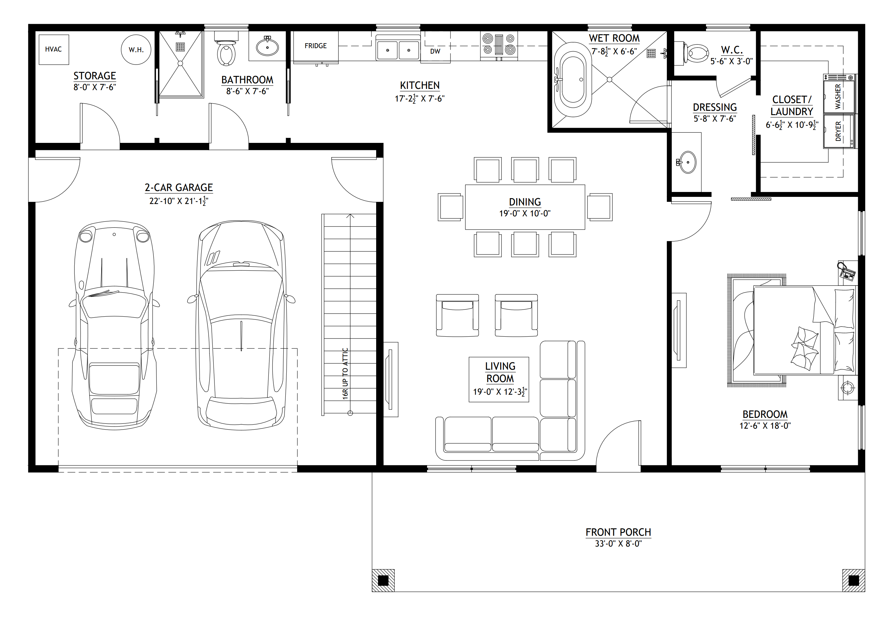
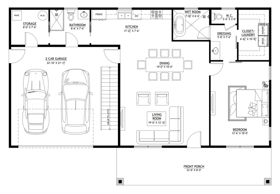
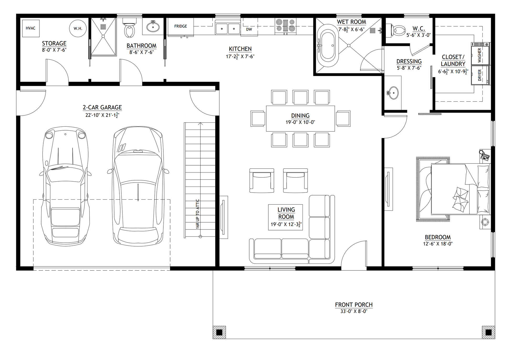
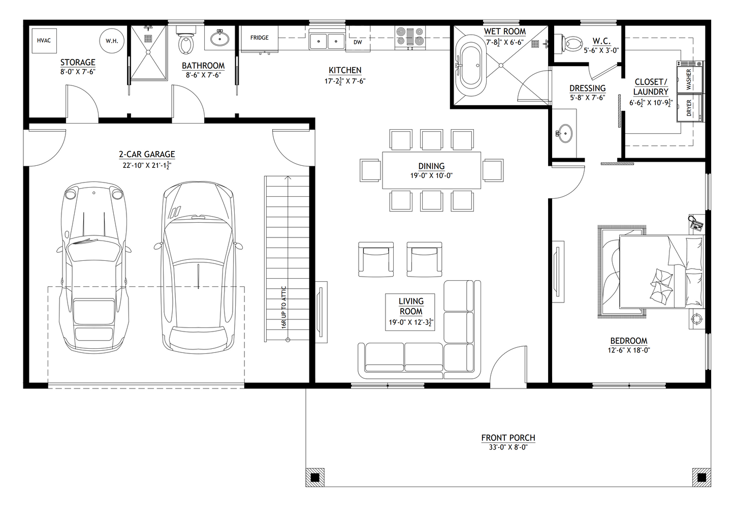
BCO-40043 Harris Barndominium House Plan
DETAILS
HEATED SQ FT
First Floor:
1,157 SF
Second Floor:None
Total Heated Sq Ft:1,157 SF
UNHEATED SQ FT
Front Porch 264 SF, Garage 523 SF = TOTAL 787 SF
Carport:None
1
2
1
523 SF
56'
38'
24'-7 1/2"
Concrete Slab
10:12
Stick-Frame
CEILING HEIGHTS
9'
BCO-40043 Harris Barndominium House Plan
About this barndominium house plan:
- 1157 Heated square feet
- 523 S Ft attached 2-car garage
- 1 bedroom
- 2 bathrooms
- Single Story
- Open Concept
- Storage
- Front porch
- Cozy yet spacious, this thoughtfully designed layout maximizes every inch of its 1,157 heated square feet—perfect for effortless living and entertaining.
- A generous 523 sq ft garage offers secure parking, extra storage, and direct access to the home—ideal for rainy days or unloading groceries with ease.
- Retreat to a serene, private bedroom designed for comfort and calm—your personal haven at the heart of the home.
- Two full bathrooms offer convenience and flexibility, whether you're hosting guests or enjoying solo downtime.
- Smartly positioned for multitasking, this secondary bath connects to key areas—perfect for quick cleanups after yard work, cooking, or coming home.
- Say goodbye to stairs and hello to seamless flow—this single-story layout is ideal for all ages and stages of life.
- Bright, airy, and welcoming—the open-concept design invites connection, creativity, and easy movement from room to room.
- Streamline your routine with a combined closet-laundry space—where organization meets efficiency in one clever corner.
- Built-in storage room throughout keeps clutter at bay and essentials within reach—because a tidy home is a happy home.
- A charming front porch sets the tone for warm welcomes and peaceful mornings—sip coffee, wave to neighbors, or simply unwind.
What's included in BCO-40043:
Cover Page
Floor Plan
Roof Plan
Front And Rear Elevation
Right And Left Elevation
Electrical Plan
Plumbing Plan
Hvac Plan
Roof Framing Plan
Foundation Plan
Foundation Detail
Interior Bearing Footing
C-Typical Column Detail
Wall Section
For more barndominium floor plans check out our complete collection of 1 bedroom barndominum floor plans.
Need to make changes? Submit a modification request using the button that says Modify This Plan (below the Add To Cart Button). We will get you a free price quote within 72 hours
Please note all square footage are estimates.
What's Typically Included
What's Typically Included
THE SPECIFC DETAILS OF WHAT'S INCLUDED ON THESE PLANS IS CONTAINED IN THE PRODUCT DESCRIPTION. PLEASE SCROLL UP AND YOU WILL FIND IT UNDER "WHAT'S INCLUDED"
Our house plan sets typically have the following details:
4 Elevations – Front, Back, Both Sides
Detailed Floor Plan Drawing
Electrical Plans with placements for HVAC
Plumbing Plans with Placements
Flooring Plan
Roof Plan
Foundation Plan
For more information on what's included and examples of what your plans will look like, go here -> https://barndominiumplans.com/pages/whats-included
Please Note: We work with many different draftspeople who work in many different ways. It should be noted that their plans may contain different details. THE SPECIFC DETAILS OF WHAT'S INCLUDED ON THESE PLANS IS CONTAINED IN THE PRODUCT DESCRIPTION. PLEASE SCROLL UP AND YOU WILL FIND IT UNDER "WHAT'S INCLUDED"
What's Not Included
What's Not Included
The following items are NOT included:
Architectural or Engineering Stamp. Our plans are engineering-ready! Can take them to a local engineer in your state.
Site Plan - We can provide this if needed for $300 additional.
Materials List - handled locally when required
Energy calculations - handled locally when required
Snow load calculations - handled locally when required
Delivery
Delivery
This plan is available as a digital product or printed + shipped.
If you select digital, the plan will be delivered to you via email as a PDF file, no matter what time it is.
If you select printed + shipped, your order will ship in 24x36 format within 1 business day of your order.
We ship from the midwest in order to serve the entire country within 3-5 business days!
Return policy
Return policy
All barndominium house plan purchases are FINAL. There are no exchanges or refunds due to the digital nature of the product. Please make sure that the plan you have selected is going to fit your needs.
PDF (Single Build) $1,349.99
DETAILS
HEATED SQ FT
First Floor:
1,157 SF
Second Floor:None
Total Heated Sq Ft:1,157 SF
UNHEATED SQ FT
Front Porch 264 SF, Garage 523 SF = TOTAL 787 SF
Carport:None
1
2
1
523 SF
56'
38'
24'-7 1/2"
Concrete Slab
10:12
Stick-Frame
CEILING HEIGHTS
9'
BCO-40043 Harris Barndominium House Plan
About this barndominium house plan:
- 1157 Heated square feet
- 523 S Ft attached 2-car garage
- 1 bedroom
- 2 bathrooms
- Single Story
- Open Concept
- Storage
- Front porch
- Cozy yet spacious, this thoughtfully designed layout maximizes every inch of its 1,157 heated square feet—perfect for effortless living and entertaining.
- A generous 523 sq ft garage offers secure parking, extra storage, and direct access to the home—ideal for rainy days or unloading groceries with ease.
- Retreat to a serene, private bedroom designed for comfort and calm—your personal haven at the heart of the home.
- Two full bathrooms offer convenience and flexibility, whether you're hosting guests or enjoying solo downtime.
- Smartly positioned for multitasking, this secondary bath connects to key areas—perfect for quick cleanups after yard work, cooking, or coming home.
- Say goodbye to stairs and hello to seamless flow—this single-story layout is ideal for all ages and stages of life.
- Bright, airy, and welcoming—the open-concept design invites connection, creativity, and easy movement from room to room.
- Streamline your routine with a combined closet-laundry space—where organization meets efficiency in one clever corner.
- Built-in storage room throughout keeps clutter at bay and essentials within reach—because a tidy home is a happy home.
- A charming front porch sets the tone for warm welcomes and peaceful mornings—sip coffee, wave to neighbors, or simply unwind.
What's included in BCO-40043:
Cover Page
Floor Plan
Roof Plan
Front And Rear Elevation
Right And Left Elevation
Electrical Plan
Plumbing Plan
Hvac Plan
Roof Framing Plan
Foundation Plan
Foundation Detail
Interior Bearing Footing
C-Typical Column Detail
Wall Section
For more barndominium floor plans check out our complete collection of 1 bedroom barndominum floor plans.
Need to make changes? Submit a modification request using the button that says Modify This Plan (below the Add To Cart Button). We will get you a free price quote within 72 hours
Please note all square footage are estimates.
What's Typically Included
What's Typically Included
THE SPECIFC DETAILS OF WHAT'S INCLUDED ON THESE PLANS IS CONTAINED IN THE PRODUCT DESCRIPTION. PLEASE SCROLL UP AND YOU WILL FIND IT UNDER "WHAT'S INCLUDED"
Our house plan sets typically have the following details:
4 Elevations – Front, Back, Both Sides
Detailed Floor Plan Drawing
Electrical Plans with placements for HVAC
Plumbing Plans with Placements
Flooring Plan
Roof Plan
Foundation Plan
For more information on what's included and examples of what your plans will look like, go here -> https://barndominiumplans.com/pages/whats-included
Please Note: We work with many different draftspeople who work in many different ways. It should be noted that their plans may contain different details. THE SPECIFC DETAILS OF WHAT'S INCLUDED ON THESE PLANS IS CONTAINED IN THE PRODUCT DESCRIPTION. PLEASE SCROLL UP AND YOU WILL FIND IT UNDER "WHAT'S INCLUDED"
What's Not Included
What's Not Included
The following items are NOT included:
Architectural or Engineering Stamp. Our plans are engineering-ready! Can take them to a local engineer in your state.
Site Plan - We can provide this if needed for $300 additional.
Materials List - handled locally when required
Energy calculations - handled locally when required
Snow load calculations - handled locally when required
Delivery
Delivery
This plan is available as a digital product or printed + shipped.
If you select digital, the plan will be delivered to you via email as a PDF file, no matter what time it is.
If you select printed + shipped, your order will ship in 24x36 format within 1 business day of your order.
We ship from the midwest in order to serve the entire country within 3-5 business days!
Return policy
Return policy
All barndominium house plan purchases are FINAL. There are no exchanges or refunds due to the digital nature of the product. Please make sure that the plan you have selected is going to fit your needs.













Real Reviews, Real Experiences
How to Build Your Own Barndominium & 120+ House Plans

Just getting started on your build? Get the Barndominiums Made Easy Program.
- Choosing a selection results in a full page refresh.