Couldn't load pickup availability
Barndominium Plans
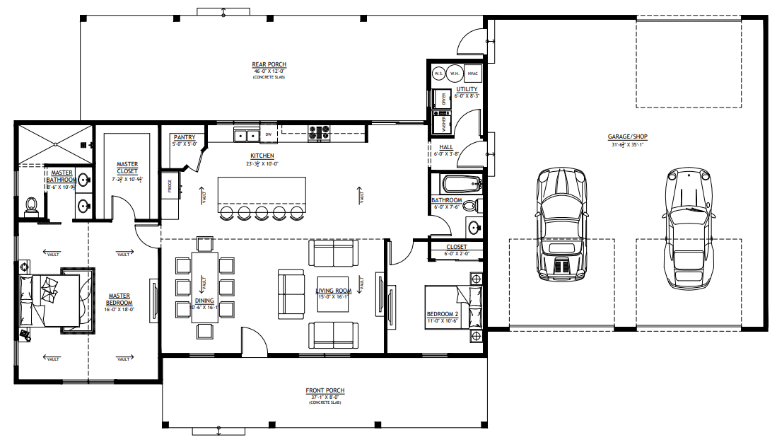
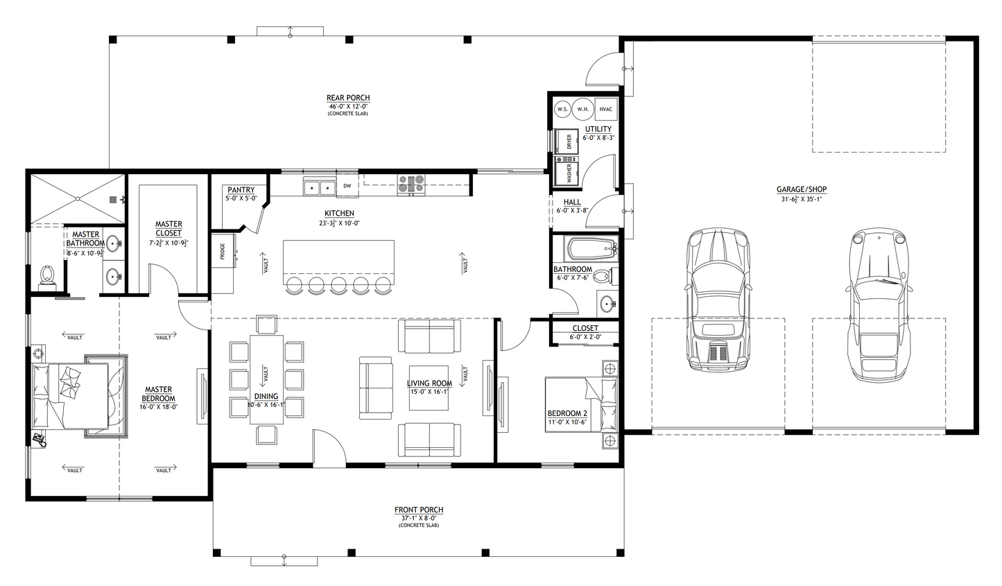
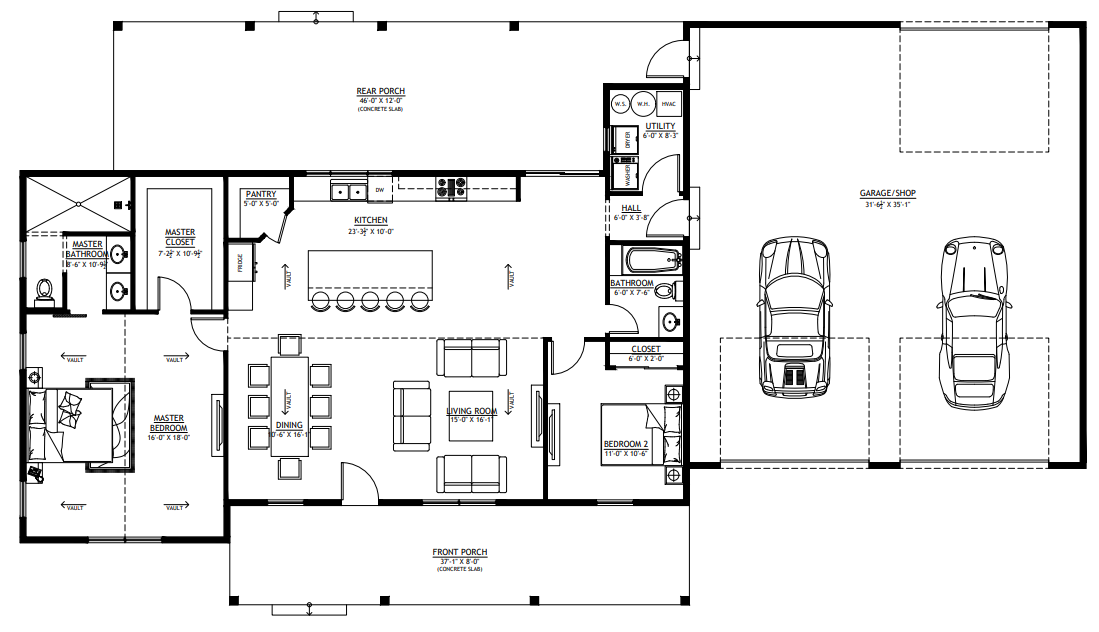
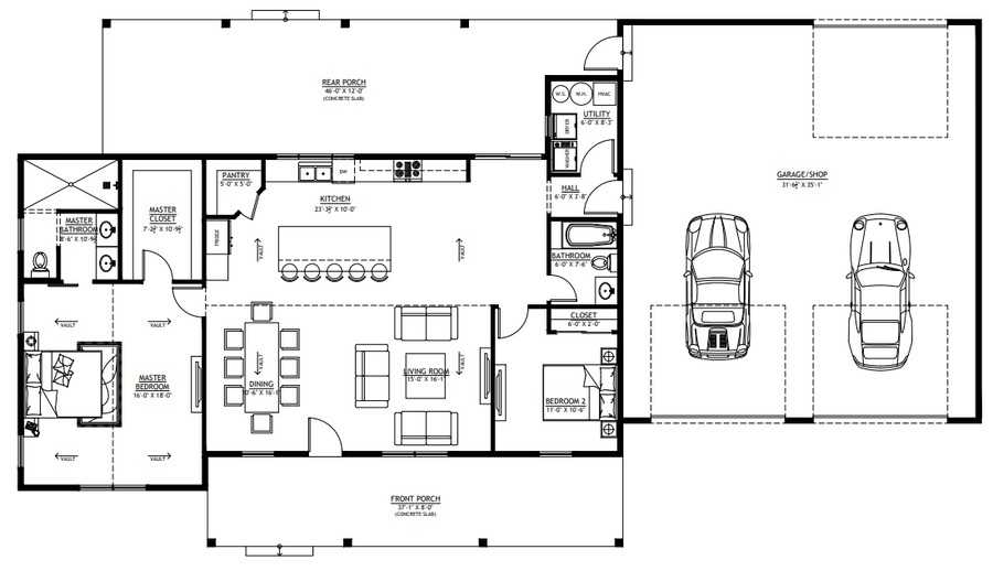
BCO-40037 Katherine Barndominium House Plan
DETAILS
HEATED SQ FT
First Floor:
1,560 SF
Second Floor:None
Total Heated Sq Ft:1,560 SF
UNHEATED SQ FT
Garage 1152 SF, Porches 804 SF = TOTAL 1,956 SF
Carport:None
2
2
1
1,152 SF
86'
47'
28'-1 1/2"
Concrete Slab
10:12
Stick-Frame
CEILING HEIGHTS
10'
BCO-40037 Katherine Barndominium House Plan
Â
About this barndominium house plan:
- 1560 Heated Sq Ft
- 2 Bedrooms
- 2 Bathrooms
- Single story
- Open concept
- Utility room
- Front & Rear porch
- 3-car attached garage
Â
- A thoughtfully optimized 1,560 square feet of heated living space offers just the right balance of coziness and comfort, ideal for easy everyday living or stylish entertaining.
- Two spacious bedrooms designed for restful retreat and personal flair—perfect for a growing family, welcoming guests, or creating a private home office sanctuary.
- With two well-appointed bathrooms, convenience meets style—featuring smart layouts that streamline morning routines and elevate evening wind-downs.
- A dedicated utility room keeps essentials tucked away, making laundry days feel orderly and efficient without disrupting the aesthetic of your space.
- Dual porches at the front and back of the home offer the best of both worlds—welcoming curb appeal and a private outdoor escape.
- The generous 3-car attached garage is a dream for auto enthusiasts, gear collectors, or anyone craving bonus space for hobbies, storage, or workshop magic.
Â
What's included in BCO-40037:
Cover Page
Floor Plan
Roof Plan
Front And Rear Elevation
Right And Left Elevation
Electrical Plan
Plumbing Plan
HVAC Plan
Roof Framing Plan
Foundation Plan
Foundation Detail
C-Typical Column Detail
Wall Section
Â
For more barndominium floor plans, check out our complete collection of 2-bedroom barndominium floor plans.
Â
Need to make changes? Submit a modification request using the button that says Modify This Plan . We will get you a free price quote within 72 hours
What's Typically Included
What's Typically Included
THE SPECIFC DETAILS OF WHAT'S INCLUDED ON THESE PLANS IS CONTAINED IN THE PRODUCT DESCRIPTION. PLEASE SCROLL UP AND YOU WILL FIND IT UNDER "WHAT'S INCLUDED"
Our house plan sets typically have the following details:
4 Elevations – Front, Back, Both Sides
Detailed Floor Plan Drawing
Electrical Plans with placements for HVAC
Plumbing Plans with Placements
Flooring Plan
Roof Plan
Foundation Plan
For more information on what's included and examples of what your plans will look like, go here -> https://barndominiumplans.com/pages/whats-included
Please Note: We work with many different draftspeople who work in many different ways. It should be noted that their plans may contain different details. THE SPECIFC DETAILS OF WHAT'S INCLUDED ON THESE PLANS IS CONTAINED IN THE PRODUCT DESCRIPTION. PLEASE SCROLL UP AND YOU WILL FIND IT UNDER "WHAT'S INCLUDED"
What's Not Included
What's Not Included
The following items are NOT included:
Architectural or Engineering Stamp. Our plans are engineering-ready! Can take them to a local engineer in your state.
Site Plan - We can provide this if needed for $300 additional.
Materials List - handled locally when required
Energy calculations - handled locally when required
Snow load calculations - handled locally when required
Delivery
Delivery
This plan is available as a digital product or printed + shipped.
If you select digital, the plan will be delivered to you via email as a PDF file, no matter what time it is.
If you select printed + shipped, your order will ship in 24x36 format within 1 business day of your order.
We ship from the midwest in order to serve the entire country within 3-5 business days!
Return policy
Return policy
All barndominium house plan purchases are FINAL. There are no exchanges or refunds due to the digital nature of the product. Please make sure that the plan you have selected is going to fit your needs.
PDF (Single Build) $849.99
DETAILS
HEATED SQ FT
First Floor:
1,560 SF
Second Floor:None
Total Heated Sq Ft:1,560 SF
UNHEATED SQ FT
Garage 1152 SF, Porches 804 SF = TOTAL 1,956 SF
Carport:None
2
2
1
1,152 SF
86'
47'
28'-1 1/2"
Concrete Slab
10:12
Stick-Frame
CEILING HEIGHTS
10'
BCO-40037 Katherine Barndominium House Plan
Â
About this barndominium house plan:
- 1560 Heated Sq Ft
- 2 Bedrooms
- 2 Bathrooms
- Single story
- Open concept
- Utility room
- Front & Rear porch
- 3-car attached garage
Â
- A thoughtfully optimized 1,560 square feet of heated living space offers just the right balance of coziness and comfort, ideal for easy everyday living or stylish entertaining.
- Two spacious bedrooms designed for restful retreat and personal flair—perfect for a growing family, welcoming guests, or creating a private home office sanctuary.
- With two well-appointed bathrooms, convenience meets style—featuring smart layouts that streamline morning routines and elevate evening wind-downs.
- A dedicated utility room keeps essentials tucked away, making laundry days feel orderly and efficient without disrupting the aesthetic of your space.
- Dual porches at the front and back of the home offer the best of both worlds—welcoming curb appeal and a private outdoor escape.
- The generous 3-car attached garage is a dream for auto enthusiasts, gear collectors, or anyone craving bonus space for hobbies, storage, or workshop magic.
Â
What's included in BCO-40037:
Cover Page
Floor Plan
Roof Plan
Front And Rear Elevation
Right And Left Elevation
Electrical Plan
Plumbing Plan
HVAC Plan
Roof Framing Plan
Foundation Plan
Foundation Detail
C-Typical Column Detail
Wall Section
Â
For more barndominium floor plans, check out our complete collection of 2-bedroom barndominium floor plans.
Â
Need to make changes? Submit a modification request using the button that says Modify This Plan . We will get you a free price quote within 72 hours
What's Typically Included
What's Typically Included
THE SPECIFC DETAILS OF WHAT'S INCLUDED ON THESE PLANS IS CONTAINED IN THE PRODUCT DESCRIPTION. PLEASE SCROLL UP AND YOU WILL FIND IT UNDER "WHAT'S INCLUDED"
Our house plan sets typically have the following details:
4 Elevations – Front, Back, Both Sides
Detailed Floor Plan Drawing
Electrical Plans with placements for HVAC
Plumbing Plans with Placements
Flooring Plan
Roof Plan
Foundation Plan
For more information on what's included and examples of what your plans will look like, go here -> https://barndominiumplans.com/pages/whats-included
Please Note: We work with many different draftspeople who work in many different ways. It should be noted that their plans may contain different details. THE SPECIFC DETAILS OF WHAT'S INCLUDED ON THESE PLANS IS CONTAINED IN THE PRODUCT DESCRIPTION. PLEASE SCROLL UP AND YOU WILL FIND IT UNDER "WHAT'S INCLUDED"
What's Not Included
What's Not Included
The following items are NOT included:
Architectural or Engineering Stamp. Our plans are engineering-ready! Can take them to a local engineer in your state.
Site Plan - We can provide this if needed for $300 additional.
Materials List - handled locally when required
Energy calculations - handled locally when required
Snow load calculations - handled locally when required
Delivery
Delivery
This plan is available as a digital product or printed + shipped.
If you select digital, the plan will be delivered to you via email as a PDF file, no matter what time it is.
If you select printed + shipped, your order will ship in 24x36 format within 1 business day of your order.
We ship from the midwest in order to serve the entire country within 3-5 business days!
Return policy
Return policy
All barndominium house plan purchases are FINAL. There are no exchanges or refunds due to the digital nature of the product. Please make sure that the plan you have selected is going to fit your needs.

Real Reviews, Real Experiences
How to Build Your Own Barndominium & 120+ House Plans
Just getting started on your build? Get the Barndominiums Made Easy Program.
- Choosing a selection results in a full page refresh.



