Couldn't load pickup availability
Barndominium Plans
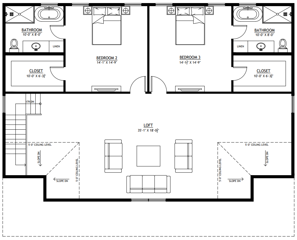
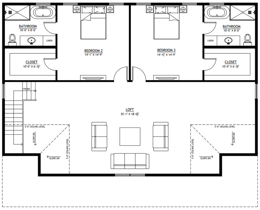
BCO-40034 Cougar Barndominium House Plan
DETAILS
HEATED SQ FT
First Floor:
1,500 SF
Second Floor:1,660 SF
Total Heated Sq Ft:3,160 SF
UNHEATED SQ FT
500 SF
Carport:None
3
4
2
None
50'
40'
27'-8"
Concrete Slab
12:12
Metal Shell
CEILING HEIGHTS
10'
BCO-40034 Cougar Barndominium House Plan
Looking for a similar plan? Check out BCO-40034-B Brandon!
About this barndominium house plan:
- 3160 Heated square feet
- 40x50 living space dimension
- 3 bedrooms
- 4 bathrooms
- 2 Story
- Loft
- Open Concept
- Mudroom/Laundry
- Front porch
- Generously sized for comfort and entertaining, this spacious layout offers 3,160 square feet of climate-controlled living.
- A wide-open 40x50 footprint creates a flexible canvas for stylish furniture arrangements and seamless flow.
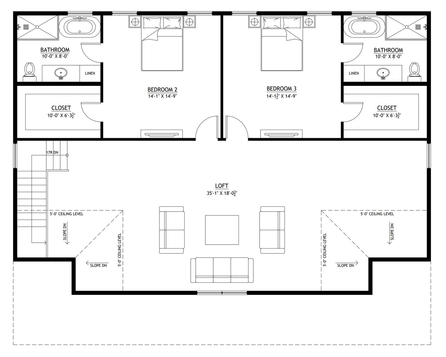
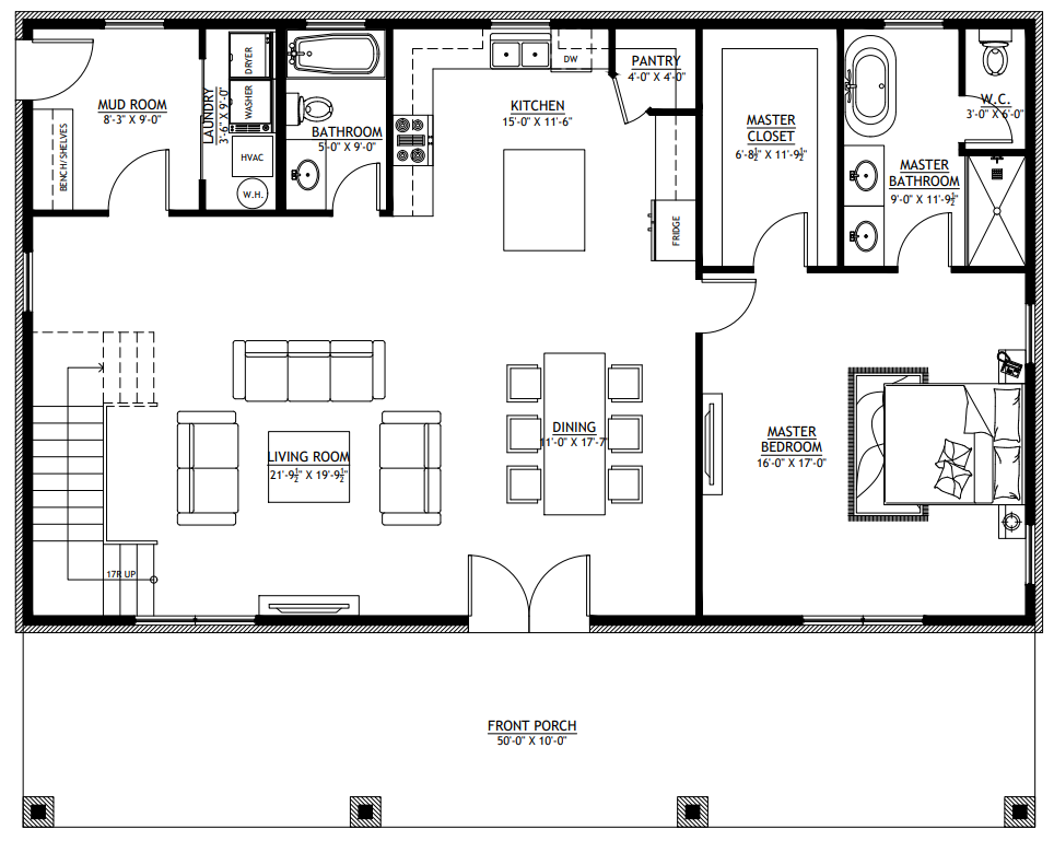
- Three well-appointed bedrooms provide restful retreats, the master bedroom on the main floor and two bedrooms on the second floor, each designed with privacy and comfort in mind.
- With four full baths, morning routines and guest stays are effortlessly smooth—no waiting, no compromise.
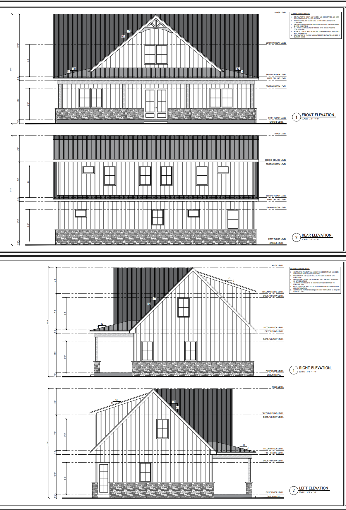
- A striking two-story design adds architectural interest and separates public and private spaces with ease.
- The open-concept layout invites natural light and connection, blending kitchen, dining, and living areas into one harmonious hub.
- A combined mudroom and laundry area keeps messes contained and chores streamlined—ideal for busy households.
- The welcoming front porch sets the tone for relaxed living, offering a charming spot to sip coffee or greet guests.
What's included in BCO-40034:
Cover Page
First Floor Plan
Second Floor Plan
Roof Plan
Front And Rear Elevation
Right And Left Elevation
First Floor Electrical Plan
Second Floor Electrical Plan
First Floor Plumbing Plan
Second Floor Plumbing Plan
First Floor Hvac Plan
Second Floor Hvac Plan
Roof Framing Plan
Foundation Plan
Foundation Detail
Interior Bearing Footing
C-Typical Column Detail
Wall Section
For more barndominium floor plans, check out our complete collection of 3-bedroom barndominium floor plans.
Need to make changes? Submit a modification request using the button that says Modify This Plan (below the Add To Cart Button). We will get you a free price quote within 72 hours
Please note all square footage are estimates.
What's Included
What's Included
Our house plan sets typically have the following details:
4 Elevations – Front, Back, Both Sides
Detailed Floor Plan Drawing
Electrical Plans with placements for HVAC
Plumbing Plans with Placements
Flooring Plan
Roof Plan
Foundation Plan
For more information on what's included and examples of what your plans will look like, go here -> https://barndominiumplans.com/pages/whats-included
Please Note: We work with many different draftspeople who work in many different ways. It should be noted that their plans may contain different details.Â
What's Not Included
What's Not Included
The following items are NOT included:
Architectural or Engineering Stamp. Our plans are engineering-ready! Can take them to a local engineer in your state.
Site Plan - We can provide this if needed for $300 additional.
Materials List - handled locally when required
Energy calculations - handled locally when required
Snow load calculations - handled locally when required
Delivery
Delivery
This plan is available as a digital product or printed + shipped.
If you select digital, the plan will be delivered to you via email as a PDF file, no matter what time it is.
If you select printed + shipped, your order will ship in 24x36 format within 1 business day of your order.
We ship from the midwest in order to serve the entire country within 3-5 business days!
Return policy
Return policy
All barndominium house plan purchases are FINAL. There are no exchanges or refunds due to the digital nature of the product. Please make sure that the plan you have selected is going to fit your needs.
PDF (Single Build) $1,349.99
DETAILS
HEATED SQ FT
First Floor:
1,500 SF
Second Floor:1,660 SF
Total Heated Sq Ft:3,160 SF
UNHEATED SQ FT
500 SF
Carport:None
3
4
2
None
50'
40'
27'-8"
Concrete Slab
12:12
Metal Shell
CEILING HEIGHTS
10'
BCO-40034 Cougar Barndominium House Plan
Looking for a similar plan? Check out BCO-40034-B Brandon!
About this barndominium house plan:
- 3160 Heated square feet
- 40x50 living space dimension
- 3 bedrooms
- 4 bathrooms
- 2 Story
- Loft
- Open Concept
- Mudroom/Laundry
- Front porch
- Generously sized for comfort and entertaining, this spacious layout offers 3,160 square feet of climate-controlled living.
- A wide-open 40x50 footprint creates a flexible canvas for stylish furniture arrangements and seamless flow.
- Three well-appointed bedrooms provide restful retreats, the master bedroom on the main floor and two bedrooms on the second floor, each designed with privacy and comfort in mind.
- With four full baths, morning routines and guest stays are effortlessly smooth—no waiting, no compromise.
- A striking two-story design adds architectural interest and separates public and private spaces with ease.
- The open-concept layout invites natural light and connection, blending kitchen, dining, and living areas into one harmonious hub.
- A combined mudroom and laundry area keeps messes contained and chores streamlined—ideal for busy households.
- The welcoming front porch sets the tone for relaxed living, offering a charming spot to sip coffee or greet guests.
What's included in BCO-40034:
Cover Page
First Floor Plan
Second Floor Plan
Roof Plan
Front And Rear Elevation
Right And Left Elevation
First Floor Electrical Plan
Second Floor Electrical Plan
First Floor Plumbing Plan
Second Floor Plumbing Plan
First Floor Hvac Plan
Second Floor Hvac Plan
Roof Framing Plan
Foundation Plan
Foundation Detail
Interior Bearing Footing
C-Typical Column Detail
Wall Section
For more barndominium floor plans, check out our complete collection of 3-bedroom barndominium floor plans.
Need to make changes? Submit a modification request using the button that says Modify This Plan (below the Add To Cart Button). We will get you a free price quote within 72 hours
Please note all square footage are estimates.
What's Included
What's Included
Our house plan sets typically have the following details:
4 Elevations – Front, Back, Both Sides
Detailed Floor Plan Drawing
Electrical Plans with placements for HVAC
Plumbing Plans with Placements
Flooring Plan
Roof Plan
Foundation Plan
For more information on what's included and examples of what your plans will look like, go here -> https://barndominiumplans.com/pages/whats-included
Please Note: We work with many different draftspeople who work in many different ways. It should be noted that their plans may contain different details.Â
What's Not Included
What's Not Included
The following items are NOT included:
Architectural or Engineering Stamp. Our plans are engineering-ready! Can take them to a local engineer in your state.
Site Plan - We can provide this if needed for $300 additional.
Materials List - handled locally when required
Energy calculations - handled locally when required
Snow load calculations - handled locally when required
Delivery
Delivery
This plan is available as a digital product or printed + shipped.
If you select digital, the plan will be delivered to you via email as a PDF file, no matter what time it is.
If you select printed + shipped, your order will ship in 24x36 format within 1 business day of your order.
We ship from the midwest in order to serve the entire country within 3-5 business days!
Return policy
Return policy
All barndominium house plan purchases are FINAL. There are no exchanges or refunds due to the digital nature of the product. Please make sure that the plan you have selected is going to fit your needs.

















Real Reviews, Real Experiences
How to Build Your Own Barndominium & 120+ House Plans

Just getting started on your build? Get the Barndominiums Made Easy Program.
- Choosing a selection results in a full page refresh.