Couldn't load pickup availability
Barndominium Plans
BCO-40028 Barndominium House Plan
This plan is in final review. Reserve now and be the first to receive the full blueprint. It will be delivered within 7-10 business days.
DETAILS
BCO-40028 Barndominium House Plan
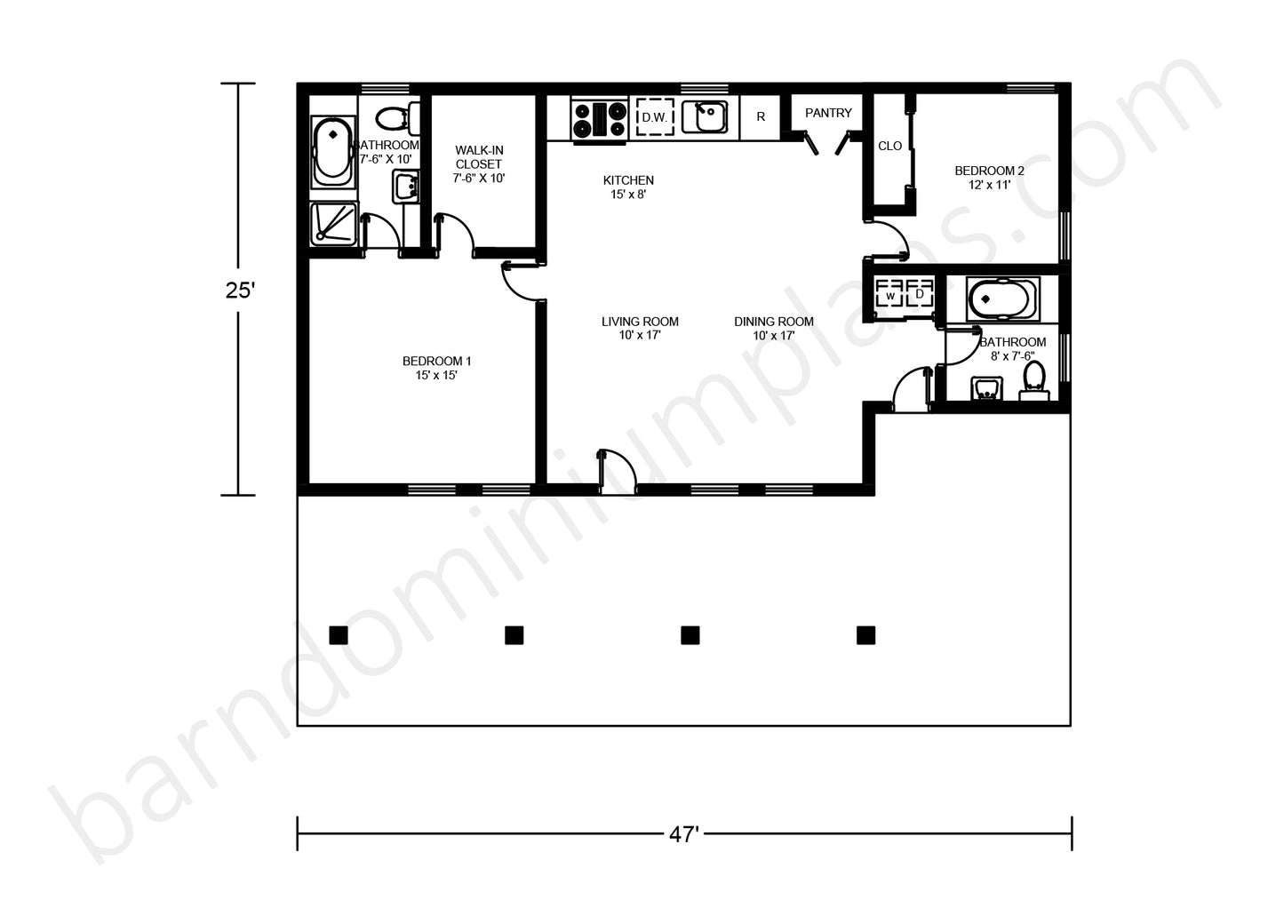
- This floor plan presents a 47-foot by 25-foot barndominium design with a focus on efficient space utilization.
- It features two bedrooms, including a 15′ x 15′ master, each with its own walk-in closet, and two bathrooms for comfortable living.
- The central living area, comprising a 10′ x 17′ living room and a 10′ x 17′ dining room, creates a shared space for relaxation and meals.
- A 15′ x 8′ kitchen, positioned centrally, ensures easy access from both living areas.
- The layout optimizes space and functionality, making it ideal for a compact yet comfortable living arrangement.
For more barndominium floor plans, check out our complete collection of 2-bedroom barndominium floor plans.
Need to make changes? Submit a modification request using the button that says Modify This Plan (below the Add To Cart Button). We will get you a free price quote within 72 hours
Please note all square footage are estimates.
Delivery
Delivery
This plan is available as a digital product or printed + shipped.
If you select digital, the plan will be delivered to you via email as a PDF file.
If you select printed + shipped, your order will ship in 24x36 format within 1 business day of your order.
We ship from the midwest in order to serve the entire country within 3-5 business days!
Return policy
Return policy
All barndominium house plan purchases are FINAL. There are no exchanges or refunds due to the digital nature of the product. Please make sure that the plan you have selected is going to fit your needs.
PDF (Single Build) $1,349.99
DETAILS
BCO-40028 Barndominium House Plan
- This floor plan presents a 47-foot by 25-foot barndominium design with a focus on efficient space utilization.
- It features two bedrooms, including a 15′ x 15′ master, each with its own walk-in closet, and two bathrooms for comfortable living.
- The central living area, comprising a 10′ x 17′ living room and a 10′ x 17′ dining room, creates a shared space for relaxation and meals.
- A 15′ x 8′ kitchen, positioned centrally, ensures easy access from both living areas.
- The layout optimizes space and functionality, making it ideal for a compact yet comfortable living arrangement.
For more barndominium floor plans, check out our complete collection of 2-bedroom barndominium floor plans.
Need to make changes? Submit a modification request using the button that says Modify This Plan (below the Add To Cart Button). We will get you a free price quote within 72 hours
Please note all square footage are estimates.
Delivery
Delivery
This plan is available as a digital product or printed + shipped.
If you select digital, the plan will be delivered to you via email as a PDF file.
If you select printed + shipped, your order will ship in 24x36 format within 1 business day of your order.
We ship from the midwest in order to serve the entire country within 3-5 business days!
Return policy
Return policy
All barndominium house plan purchases are FINAL. There are no exchanges or refunds due to the digital nature of the product. Please make sure that the plan you have selected is going to fit your needs.





Real Reviews, Real Experiences
How to Build Your Own Barndominium & 120+ House Plans

Just getting started on your build? Get the Barndominiums Made Easy Program.
- Choosing a selection results in a full page refresh.