Couldn't load pickup availability
Barndominium Plans
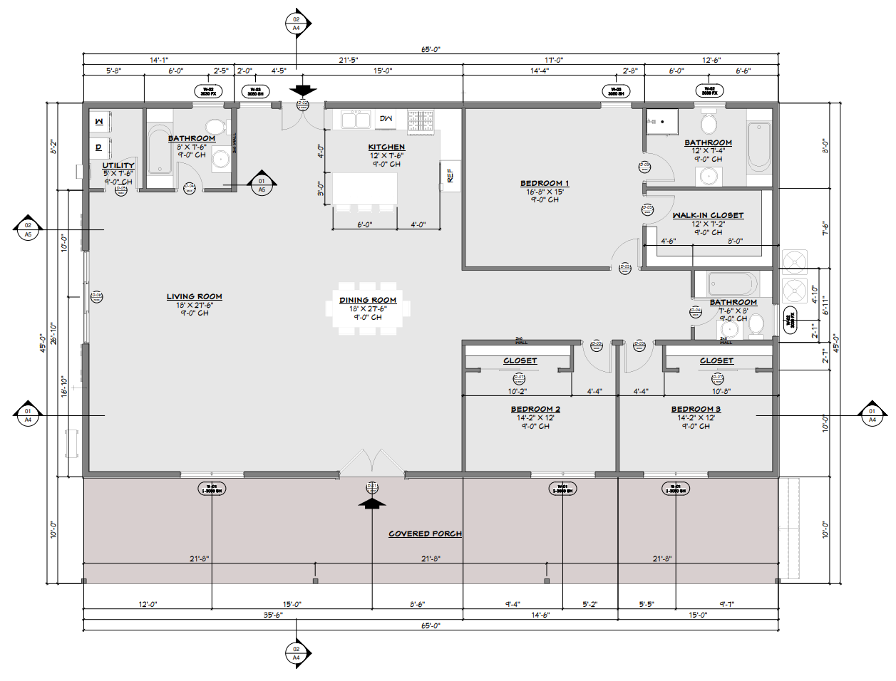
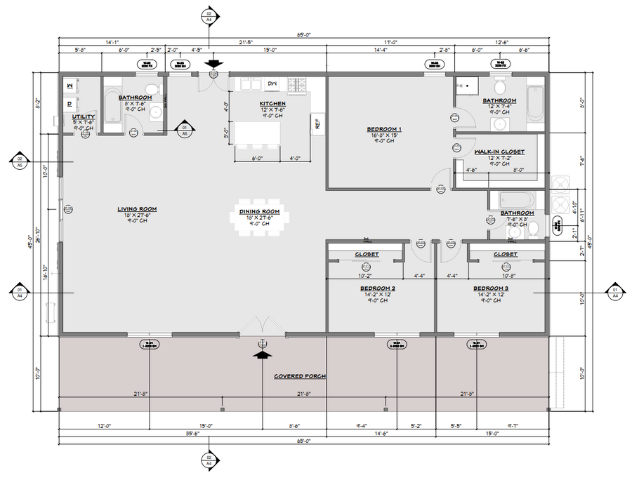
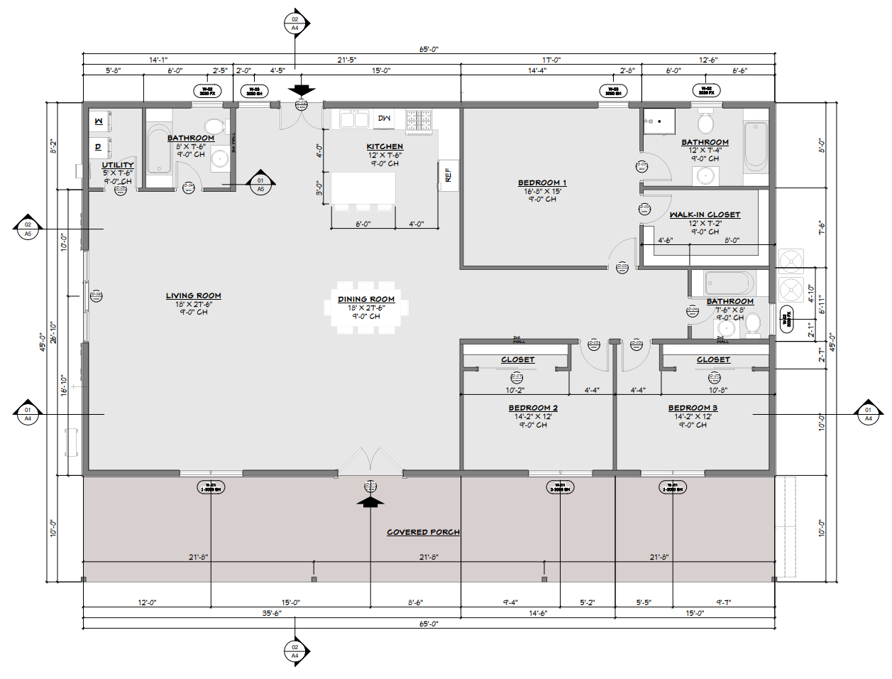
BCO-40007 Sandra Barndominium House Plan
DETAILS
HEATED SQ FT
First Floor:
2,275 SF
Second Floor:None
Total Heated Sq Ft:2,275 SF
UNHEATED SQ FT
650 SF
Carport:None
3
3
1
None
45'
65'
16'
Concrete Slab
6:12
Stick-Frame
CEILING HEIGHTS
9'
BCO-40007 Sandra Barndominium House Plan
About this barndominium house plan:
- 2275 Heated square feet
- 35x65 living space dimension
- 3 bedrooms
- 3 bathrooms
- Single Story
- Open Concept
- Front porch
- Utility room
- A well-balanced 2,275 square feet of heated living space delivers comfort without excess—perfectly scaled for easy maintenance and everyday enjoyment.
- With a streamlined 35x65 footprint, this home maximizes every inch—ideal for narrow lots or urban settings where smart design meets spatial efficiency.
- Three inviting bedrooms offer restful retreats for family, guests, or flexible use—each crafted with privacy and comfort in mind.
- Three full bathrooms ensure convenience and harmony, with stylish finishes and thoughtful layouts that support both daily routines and guest hospitality.
- All on one level, this single-story design offers effortless accessibility and flow—ideal for aging in place, young families, or anyone who values simplicity.
- The open-concept layout creates a sense of spaciousness and connection, blending kitchen, dining, and living areas into one cohesive, light-filled environment.
- A welcoming front porch sets the tone for relaxed living—perfect for morning coffee, friendly hellos, or adding curb appeal with seasonal décor.
- A dedicated utility room keeps laundry and household tasks tucked away, offering functional storage and workspace without disrupting the home's aesthetic.
What's included in BCO-40007:
Cover Page
Floor Plan
Roof Plan
Front And Rear Elevation
Right And Left Elevation
Electrical Plan
Plumbing Plan
Hvac Plan
Roof Framing Plan
Foundation Plan
Foundation Detail
C-Typical Column Detail
Wall Section
For more barndominium floor plans, check out our complete collection of 3-bedroom barndominium floor plans.
Need to make changes? Submit a modification request using the button that says Modify This Plan (below the Add To Cart Button). We will get you a free price quote within 72 hours
Please note all square footage are estimates.
What's Included
What's Included
Our house plan sets typically have the following details:
4 Elevations – Front, Back, Both Sides
Detailed Floor Plan Drawing
Electrical Plans with placements for HVAC
Plumbing Plans with Placements
Flooring Plan
Roof Plan
Foundation Plan
For more information on what's included and examples of what your plans will look like, go here -> https://barndominiumplans.com/pages/whats-included
Please Note: We work with many different draftspeople who work in many different ways. It should be noted that their plans may contain different details.
What's Not Included
What's Not Included
The following items are NOT included:
Architectural or Engineering Stamp. Our plans are engineering-ready! Can take them to a local engineer in your state.
Site Plan - We can provide this if needed for $300 additional.
Materials List - handled locally when required
Energy calculations - handled locally when required
Snow load calculations - handled locally when required
Delivery
Delivery
This plan is available as a digital product or printed + shipped.
If you select digital, the plan will be delivered to you via email as a PDF file, no matter what time it is.
If you select printed + shipped, your order will ship in 24x36 format within 1 business day of your order.
We ship from the midwest in order to serve the entire country within 3-5 business days!
Return policy
Return policy
All barndominium house plan purchases are FINAL. There are no exchanges or refunds due to the digital nature of the product. Please make sure that the plan you have selected is going to fit your needs.
PDF (Single Build) $849.99
DETAILS
HEATED SQ FT
First Floor:
2,275 SF
Second Floor:None
Total Heated Sq Ft:2,275 SF
UNHEATED SQ FT
650 SF
Carport:None
3
3
1
None
45'
65'
16'
Concrete Slab
6:12
Stick-Frame
CEILING HEIGHTS
9'
BCO-40007 Sandra Barndominium House Plan
About this barndominium house plan:
- 2275 Heated square feet
- 35x65 living space dimension
- 3 bedrooms
- 3 bathrooms
- Single Story
- Open Concept
- Front porch
- Utility room
- A well-balanced 2,275 square feet of heated living space delivers comfort without excess—perfectly scaled for easy maintenance and everyday enjoyment.
- With a streamlined 35x65 footprint, this home maximizes every inch—ideal for narrow lots or urban settings where smart design meets spatial efficiency.
- Three inviting bedrooms offer restful retreats for family, guests, or flexible use—each crafted with privacy and comfort in mind.
- Three full bathrooms ensure convenience and harmony, with stylish finishes and thoughtful layouts that support both daily routines and guest hospitality.
- All on one level, this single-story design offers effortless accessibility and flow—ideal for aging in place, young families, or anyone who values simplicity.
- The open-concept layout creates a sense of spaciousness and connection, blending kitchen, dining, and living areas into one cohesive, light-filled environment.
- A welcoming front porch sets the tone for relaxed living—perfect for morning coffee, friendly hellos, or adding curb appeal with seasonal décor.
- A dedicated utility room keeps laundry and household tasks tucked away, offering functional storage and workspace without disrupting the home's aesthetic.
What's included in BCO-40007:
Cover Page
Floor Plan
Roof Plan
Front And Rear Elevation
Right And Left Elevation
Electrical Plan
Plumbing Plan
Hvac Plan
Roof Framing Plan
Foundation Plan
Foundation Detail
C-Typical Column Detail
Wall Section
For more barndominium floor plans, check out our complete collection of 3-bedroom barndominium floor plans.
Need to make changes? Submit a modification request using the button that says Modify This Plan (below the Add To Cart Button). We will get you a free price quote within 72 hours
Please note all square footage are estimates.
What's Included
What's Included
Our house plan sets typically have the following details:
4 Elevations – Front, Back, Both Sides
Detailed Floor Plan Drawing
Electrical Plans with placements for HVAC
Plumbing Plans with Placements
Flooring Plan
Roof Plan
Foundation Plan
For more information on what's included and examples of what your plans will look like, go here -> https://barndominiumplans.com/pages/whats-included
Please Note: We work with many different draftspeople who work in many different ways. It should be noted that their plans may contain different details.
What's Not Included
What's Not Included
The following items are NOT included:
Architectural or Engineering Stamp. Our plans are engineering-ready! Can take them to a local engineer in your state.
Site Plan - We can provide this if needed for $300 additional.
Materials List - handled locally when required
Energy calculations - handled locally when required
Snow load calculations - handled locally when required
Delivery
Delivery
This plan is available as a digital product or printed + shipped.
If you select digital, the plan will be delivered to you via email as a PDF file, no matter what time it is.
If you select printed + shipped, your order will ship in 24x36 format within 1 business day of your order.
We ship from the midwest in order to serve the entire country within 3-5 business days!
Return policy
Return policy
All barndominium house plan purchases are FINAL. There are no exchanges or refunds due to the digital nature of the product. Please make sure that the plan you have selected is going to fit your needs.
















Real Reviews, Real Experiences
How to Build Your Own Barndominium & 120+ House Plans

Just getting started on your build? Get the Barndominiums Made Easy Program.
- Choosing a selection results in a full page refresh.