Couldn't load pickup availability
Barndominium Plans
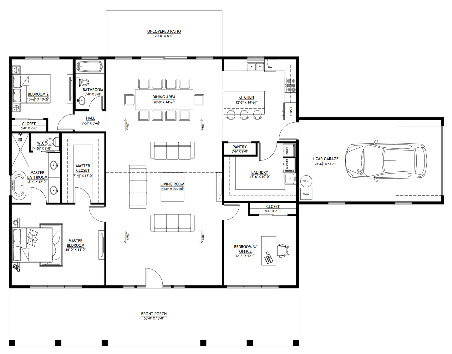
BCO-40001-G Grandview Barndominium House Plan
DETAILS
HEATED SQ FT
First Floor:
2,000 SF
Second Floor:None
Total Heated Sq Ft:2,000 SF
UNHEATED SQ FT
Porch 500 SF, Garage 375 SF = TOTAL 875 SF
Carport:None
3
2
1
375 SF
75'
50'
25'-1 1/2"
Concrete Slab
8:12
Stick-Frame
CEILING HEIGHTS
10'
BCO-40001-G Grandview Barndominium House Plan
Discover a similar floor plan here - BCO-40001
About this barndominium house plan:
- 2,000 Heated Square Feet
- 40x50 living space dimension
- 3 Bedrooms
- 2 Bathrooms
- Single-story layout
- Open-concept living and dining area
- Vaulted ceilings throughout
- Expansive 50-foot front porch
- Dedicated laundry room and pantry
- Spacious master suite with walk-in closet
- 375 Sq ft garage
-
This beautifully designed home offers 2,000 square feet of efficient and comfortable living space, ideal for those who love open and functional floor plans. The three well-proportioned bedrooms ensure ample space for family or guests, each designed to offer privacy and tranquility.
-
With two full bathrooms, this home provides a seamless balance of convenience and style, featuring modern fixtures and thoughtful layouts for everyday use. The single-story design ensures accessibility and ease of movement, making it a practical choice for any stage of life.
-
The open-concept living and dining area is designed for both relaxation and entertaining, complemented by vaulted ceilings that add a sense of grandeur and openness. The 50-foot front porch enhances the home’s curb appeal while providing a perfect outdoor retreat for relaxation and social gatherings.
-
Practicality is a priority, with a well-appointed laundry room and a dedicated pantry offering ample storage solutions. The spacious master suite includes a walk-in closet and an en-suite bathroom, creating a private oasis within the home.
- Small in size, mighty in function—this 375-square-foot wonder is where wheels rest easy, gear finds a home, and weekend tinkering gets its spotlight. Consider it your car’s cozy retreat with room to wrench and roam.
What's included in BCO-40001-G:
Cover Page
Floor Plan
Roof Plan
Front And Rear Elevation
Right And Left Elevation
Electrical Plan
Plumbing Plan
Hvac Plan
Roof Framing Plan
Foundation Plan
Foundation Detail
C-Typical Column Detail
Wall Section
For more barndominium and modern house plans, explore our complete collection of 3-bedroom home plans.
Need modifications? Email our modification department for a free price quote within 72 hours.
Please note: All square footage measurements are estimates.
What's Typically Included
What's Typically Included
THE SPECIFC DETAILS OF WHAT'S INCLUDED ON THESE PLANS IS CONTAINED IN THE PRODUCT DESCRIPTION. PLEASE SCROLL UP AND YOU WILL FIND IT UNDER "WHAT'S INCLUDED"
Our house plan sets typically have the following details:
4 Elevations – Front, Back, Both Sides
Detailed Floor Plan Drawing
Electrical Plans with placements for HVAC
Plumbing Plans with Placements
Flooring Plan
Roof Plan
Foundation Plan
For more information on what's included and examples of what your plans will look like, go here -> https://barndominiumplans.com/pages/whats-included
Please Note: We work with many different draftspeople who work in many different ways. It should be noted that their plans may contain different details. THE SPECIFC DETAILS OF WHAT'S INCLUDED ON THESE PLANS IS CONTAINED IN THE PRODUCT DESCRIPTION. PLEASE SCROLL UP AND YOU WILL FIND IT UNDER "WHAT'S INCLUDED"
What's Not Included
What's Not Included
The following items are NOT included:
Architectural or Engineering Stamp. Our plans are engineering-ready! Can take them to a local engineer in your state.
Site Plan - We can provide this if needed for $300 additional.
Materials List - handled locally when required
Energy calculations - handled locally when required
Snow load calculations - handled locally when required
Delivery
Delivery
This plan is available as a digital product or printed + shipped.
If you select digital, the plan will be delivered to you via email as a PDF file, no matter what time it is.
If you select printed + shipped, your order will ship in 24x36 format within 1 business day of your order.
We ship from the midwest in order to serve the entire country within 3-5 business days!
Return policy
Return policy
All barndominium house plan purchases are FINAL. There are no exchanges or refunds due to the digital nature of the product. Please make sure that the plan you have selected is going to fit your needs.
PDF (Single Build) $849.99
DETAILS
HEATED SQ FT
First Floor:
2,000 SF
Second Floor:None
Total Heated Sq Ft:2,000 SF
UNHEATED SQ FT
Porch 500 SF, Garage 375 SF = TOTAL 875 SF
Carport:None
3
2
1
375 SF
75'
50'
25'-1 1/2"
Concrete Slab
8:12
Stick-Frame
CEILING HEIGHTS
10'
BCO-40001-G Grandview Barndominium House Plan
Discover a similar floor plan here - BCO-40001
About this barndominium house plan:
- 2,000 Heated Square Feet
- 40x50 living space dimension
- 3 Bedrooms
- 2 Bathrooms
- Single-story layout
- Open-concept living and dining area
- Vaulted ceilings throughout
- Expansive 50-foot front porch
- Dedicated laundry room and pantry
- Spacious master suite with walk-in closet
- 375 Sq ft garage
-
This beautifully designed home offers 2,000 square feet of efficient and comfortable living space, ideal for those who love open and functional floor plans. The three well-proportioned bedrooms ensure ample space for family or guests, each designed to offer privacy and tranquility.
-
With two full bathrooms, this home provides a seamless balance of convenience and style, featuring modern fixtures and thoughtful layouts for everyday use. The single-story design ensures accessibility and ease of movement, making it a practical choice for any stage of life.
-
The open-concept living and dining area is designed for both relaxation and entertaining, complemented by vaulted ceilings that add a sense of grandeur and openness. The 50-foot front porch enhances the home’s curb appeal while providing a perfect outdoor retreat for relaxation and social gatherings.
-
Practicality is a priority, with a well-appointed laundry room and a dedicated pantry offering ample storage solutions. The spacious master suite includes a walk-in closet and an en-suite bathroom, creating a private oasis within the home.
- Small in size, mighty in function—this 375-square-foot wonder is where wheels rest easy, gear finds a home, and weekend tinkering gets its spotlight. Consider it your car’s cozy retreat with room to wrench and roam.
What's included in BCO-40001-G:
Cover Page
Floor Plan
Roof Plan
Front And Rear Elevation
Right And Left Elevation
Electrical Plan
Plumbing Plan
Hvac Plan
Roof Framing Plan
Foundation Plan
Foundation Detail
C-Typical Column Detail
Wall Section
For more barndominium and modern house plans, explore our complete collection of 3-bedroom home plans.
Need modifications? Email our modification department for a free price quote within 72 hours.
Please note: All square footage measurements are estimates.
What's Typically Included
What's Typically Included
THE SPECIFC DETAILS OF WHAT'S INCLUDED ON THESE PLANS IS CONTAINED IN THE PRODUCT DESCRIPTION. PLEASE SCROLL UP AND YOU WILL FIND IT UNDER "WHAT'S INCLUDED"
Our house plan sets typically have the following details:
4 Elevations – Front, Back, Both Sides
Detailed Floor Plan Drawing
Electrical Plans with placements for HVAC
Plumbing Plans with Placements
Flooring Plan
Roof Plan
Foundation Plan
For more information on what's included and examples of what your plans will look like, go here -> https://barndominiumplans.com/pages/whats-included
Please Note: We work with many different draftspeople who work in many different ways. It should be noted that their plans may contain different details. THE SPECIFC DETAILS OF WHAT'S INCLUDED ON THESE PLANS IS CONTAINED IN THE PRODUCT DESCRIPTION. PLEASE SCROLL UP AND YOU WILL FIND IT UNDER "WHAT'S INCLUDED"
What's Not Included
What's Not Included
The following items are NOT included:
Architectural or Engineering Stamp. Our plans are engineering-ready! Can take them to a local engineer in your state.
Site Plan - We can provide this if needed for $300 additional.
Materials List - handled locally when required
Energy calculations - handled locally when required
Snow load calculations - handled locally when required
Delivery
Delivery
This plan is available as a digital product or printed + shipped.
If you select digital, the plan will be delivered to you via email as a PDF file, no matter what time it is.
If you select printed + shipped, your order will ship in 24x36 format within 1 business day of your order.
We ship from the midwest in order to serve the entire country within 3-5 business days!
Return policy
Return policy
All barndominium house plan purchases are FINAL. There are no exchanges or refunds due to the digital nature of the product. Please make sure that the plan you have selected is going to fit your needs.





















Real Reviews, Real Experiences
How to Build Your Own Barndominium & 120+ House Plans

Just getting started on your build? Get the Barndominiums Made Easy Program.
- Choosing a selection results in a full page refresh.