Couldn't load pickup availability
Barndominium Plans
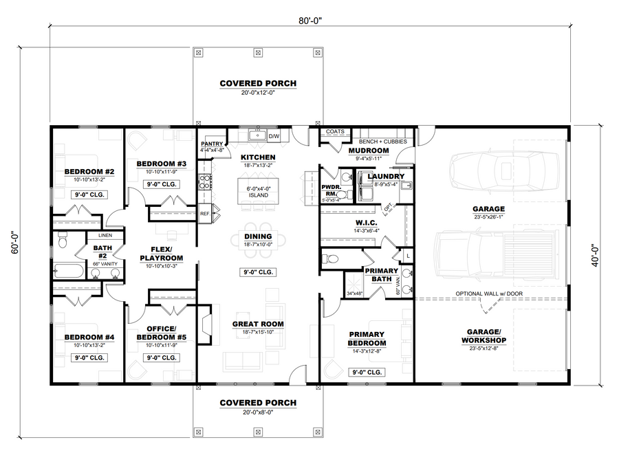
AK-4003 Stonebrook Barndominium House Plan
DETAILS
HEATED SQ FT
First Floor:
2,240 SF
Second Floor:None
Total Heated Sq Ft:2,240 SF
UNHEATED SQ FT
Garage 640 SF, Porches 400 SF, Workshop 320 SF = TOTAL 1,360 SF
Carport:None
5
2
1
640 SF
80'
60'
19'-9"
Crawl Space
6:12
Stick-Frame
CEILING HEIGHTS
9'
AK-4003 Stonebrook Barndominium House Plan
About this barndominium house plan:
- 2240 Heated square feet
- 40x56 living space dimension
- 5 Bedrooms
- 2.1 Bathrooms
- Single-story
- Open concept
- Den/Playroom
- Mudroom
- Laundry Access from Master
- Front & rear porch
- 2-car, 640 SF attached garage/workshop
- A comfortably sized 2,240 square feet of heated space offers the perfect blend of spaciousness and coziness, ideal for relaxed modern living.
- Versatile and generous, five well-proportioned bedrooms cater to family, guests, or creative uses like a home office or studio.
- Two full baths plus a half bath ensure functionality and comfort, providing room for everyone to refresh and recharge with ease.
- All living areas are gracefully spread across a single, seamless level—a timeless layout that supports accessibility and ease of movement.
- The heart of the home boasts an open-concept design, where kitchen, dining, and living areas blend beautifully for connection and light.
- This adaptable space is ideal for quiet study sessions, lively playdates, or cozy media nights—whatever suits your rhythm.
- Tucked conveniently near entrances, the mudroom offers a practical drop zone for shoes, bags, and coats, keeping messes neatly contained.
- Direct laundry access from the master suite adds a touch of thoughtful convenience that makes daily routines feel effortless.
- Enjoy the best of both worlds with a welcoming front porch for neighborly charm and a rear porch ideal for relaxed outdoor entertaining.
- Spanning 640 square feet, the attached 2-car garage comfortably shelters vehicles with room to spare for outdoor gear or seasonal storage. And for those seeking even more capacity, the adjacent workshop offers the flexibility to convert into a third garage bay—perfect for hobbyists, collectors, or anyone in need of a full 3-car setup.
What's included in AK-4003:
Cover sheet with General Notes, Area Tabulation, Index, Drawing Symbol Key, Rendering, + Materials Legend
Main Level Floor Plan + Wall Type Legend
Upper Level Floor Plan + Wall Type Legend
Roof Plan + General Roof Plan Notes
Front + Right Exterior Elevations, General Elevation Notes
Rear + Left Exterior Elevations, General Elevations Notes
Building Section + Interior Kitchen Elevations
Electrical Lighting Plans, Electrical Legend, + Electrical Notes
Foundation Plan, Foundation Plan Notes, + Wall Type Legend
Foundation Details
For more barndominium floor plans, check out our complete collection of 5-bedroom barndominium floor plans.
Need to make changes? Submit a modification request using the button that says Modify This Plan (below the Add To Cart Button). We will get you a free price quote within 72 hours
Please note all square footage are estimates.
What's Included
What's Included
Our house plan sets typically have the following details:
4 Elevations – Front, Back, Both Sides
Detailed Floor Plan Drawing
Electrical Plans with placements for HVAC
Plumbing Plans with Placements
Flooring Plan
Roof Plan
Foundation Plan
For more information on what's included and examples of what your plans will look like, go here -> https://barndominiumplans.com/pages/whats-included
Please Note: We work with many different draftspeople who work in many different ways. It should be noted that their plans may contain different details.Â
What's Not Included
What's Not Included
The following items are NOT included:
Architectural or Engineering Stamp. Our plans are engineering-ready! Can take them to a local engineer in your state.
Site Plan - We can provide this if needed for $300 additional.
Materials List - handled locally when required
Energy calculations - handled locally when required
Snow load calculations - handled locally when required
Delivery
Delivery
This plan is available as a digital product or printed + shipped.
If you select digital, the plan will be delivered to you via email as a PDF file, no matter what time it is.
If you select printed + shipped, your order will ship in 24x36 format within 1 business day of your order.
We ship from the midwest in order to serve the entire country within 3-5 business days!
Return policy
Return policy
All barndominium house plan purchases are FINAL. There are no exchanges or refunds due to the digital nature of the product. Please make sure that the plan you have selected is going to fit your needs.
PDF (Single Build) $1,795.00
DETAILS
HEATED SQ FT
First Floor:
2,240 SF
Second Floor:None
Total Heated Sq Ft:2,240 SF
UNHEATED SQ FT
Garage 640 SF, Porches 400 SF, Workshop 320 SF = TOTAL 1,360 SF
Carport:None
5
2
1
640 SF
80'
60'
19'-9"
Crawl Space
6:12
Stick-Frame
CEILING HEIGHTS
9'
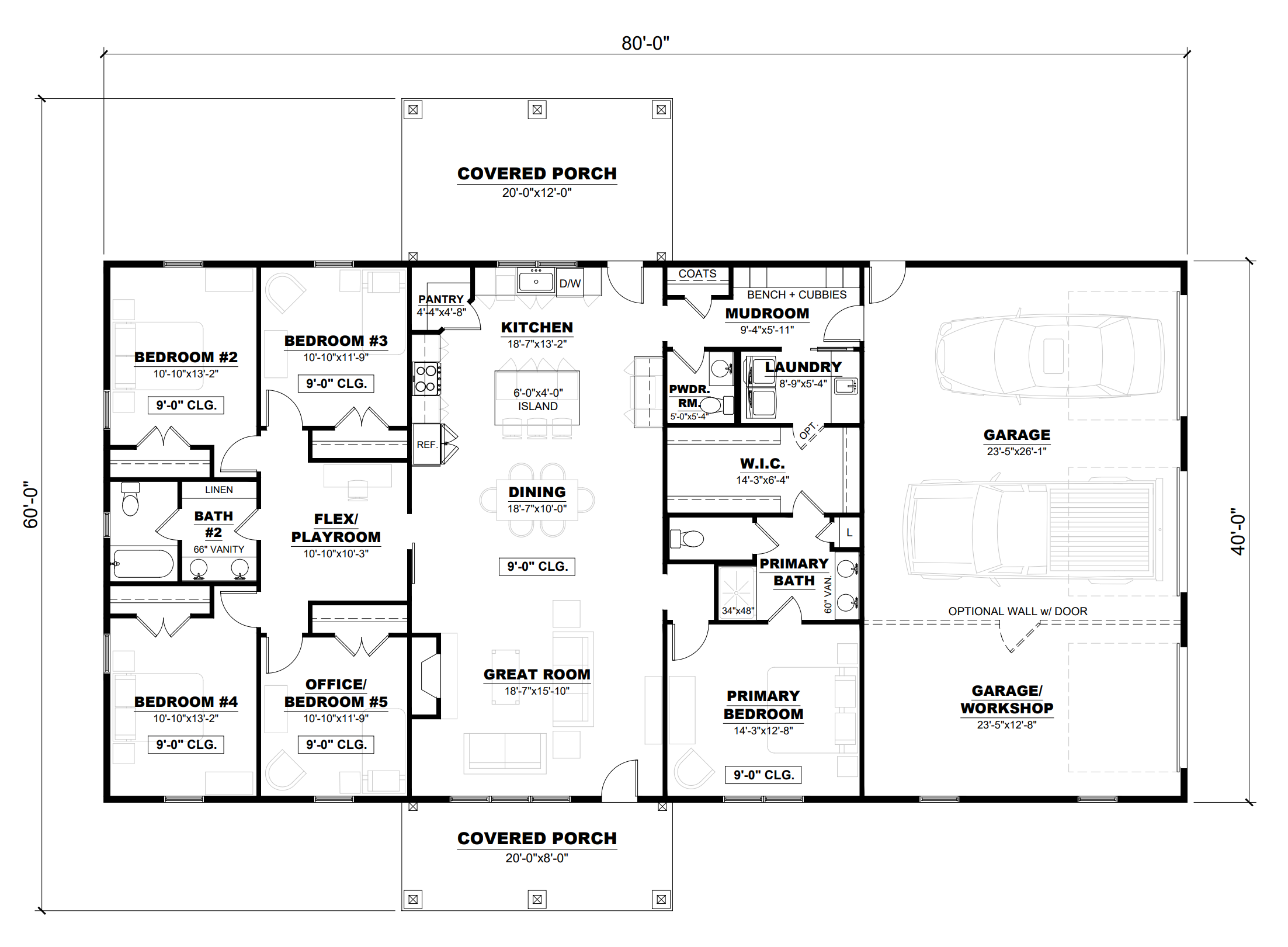
AK-4003 Stonebrook Barndominium House Plan
About this barndominium house plan:
- 2240 Heated square feet
- 40x56 living space dimension
- 5 Bedrooms
- 2.1 Bathrooms
- Single-story
- Open concept
- Den/Playroom
- Mudroom
- Laundry Access from Master
- Front & rear porch
- 2-car, 640 SF attached garage/workshop
- A comfortably sized 2,240 square feet of heated space offers the perfect blend of spaciousness and coziness, ideal for relaxed modern living.
- Versatile and generous, five well-proportioned bedrooms cater to family, guests, or creative uses like a home office or studio.
- Two full baths plus a half bath ensure functionality and comfort, providing room for everyone to refresh and recharge with ease.
- All living areas are gracefully spread across a single, seamless level—a timeless layout that supports accessibility and ease of movement.
- The heart of the home boasts an open-concept design, where kitchen, dining, and living areas blend beautifully for connection and light.
- This adaptable space is ideal for quiet study sessions, lively playdates, or cozy media nights—whatever suits your rhythm.
- Tucked conveniently near entrances, the mudroom offers a practical drop zone for shoes, bags, and coats, keeping messes neatly contained.
- Direct laundry access from the master suite adds a touch of thoughtful convenience that makes daily routines feel effortless.
- Enjoy the best of both worlds with a welcoming front porch for neighborly charm and a rear porch ideal for relaxed outdoor entertaining.
- Spanning 640 square feet, the attached 2-car garage comfortably shelters vehicles with room to spare for outdoor gear or seasonal storage. And for those seeking even more capacity, the adjacent workshop offers the flexibility to convert into a third garage bay—perfect for hobbyists, collectors, or anyone in need of a full 3-car setup.
What's included in AK-4003:
Cover sheet with General Notes, Area Tabulation, Index, Drawing Symbol Key, Rendering, + Materials Legend
Main Level Floor Plan + Wall Type Legend
Upper Level Floor Plan + Wall Type Legend
Roof Plan + General Roof Plan Notes
Front + Right Exterior Elevations, General Elevation Notes
Rear + Left Exterior Elevations, General Elevations Notes
Building Section + Interior Kitchen Elevations
Electrical Lighting Plans, Electrical Legend, + Electrical Notes
Foundation Plan, Foundation Plan Notes, + Wall Type Legend
Foundation Details
For more barndominium floor plans, check out our complete collection of 5-bedroom barndominium floor plans.
Need to make changes? Submit a modification request using the button that says Modify This Plan (below the Add To Cart Button). We will get you a free price quote within 72 hours
Please note all square footage are estimates.
What's Included
What's Included
Our house plan sets typically have the following details:
4 Elevations – Front, Back, Both Sides
Detailed Floor Plan Drawing
Electrical Plans with placements for HVAC
Plumbing Plans with Placements
Flooring Plan
Roof Plan
Foundation Plan
For more information on what's included and examples of what your plans will look like, go here -> https://barndominiumplans.com/pages/whats-included
Please Note: We work with many different draftspeople who work in many different ways. It should be noted that their plans may contain different details.Â
What's Not Included
What's Not Included
The following items are NOT included:
Architectural or Engineering Stamp. Our plans are engineering-ready! Can take them to a local engineer in your state.
Site Plan - We can provide this if needed for $300 additional.
Materials List - handled locally when required
Energy calculations - handled locally when required
Snow load calculations - handled locally when required
Delivery
Delivery
This plan is available as a digital product or printed + shipped.
If you select digital, the plan will be delivered to you via email as a PDF file, no matter what time it is.
If you select printed + shipped, your order will ship in 24x36 format within 1 business day of your order.
We ship from the midwest in order to serve the entire country within 3-5 business days!
Return policy
Return policy
All barndominium house plan purchases are FINAL. There are no exchanges or refunds due to the digital nature of the product. Please make sure that the plan you have selected is going to fit your needs.











Real Reviews, Real Experiences
How to Build Your Own Barndominium & 120+ House Plans

Just getting started on your build? Get the Barndominiums Made Easy Program.
- Choosing a selection results in a full page refresh.