Couldn't load pickup availability
Barndominium Plans
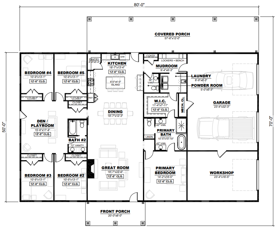
AK-4001 Ironwood Barndominium House Plan
DETAILS
HEATED SQ FT
First Floor:
2,800 SF
Second Floor:None
Total Heated Sq Ft:2,800 SF
UNHEATED SQ FT
Garage 783 SF, Porches 850 SF, Workshop 410 SF = TOTAL 2,043 SF
Carport:None
5
2
1
783 SF
80'
62'
19'-2"
Crawl Space
3:12
Stick-Frame
CEILING HEIGHTS
12'
AK-4001 Ironwood Barndominium House Plan
About this barndominium house plan:
- 2800 Heated square feet
- 50x56 living space dimension
- 5 Bedrooms
- 2.1 Bathrooms
- Single-story
- Open concept
- Den/Playroom
- Mudroom
- Laundry Access from Master
- Workshop
- Front & rear porch
- 2-car, 783 SF attached garage
- A generous canvas of comfort and design, this 2,800-square-foot home feels expansive yet intimate—perfectly tailored for those who appreciate room to breathe without compromising on warmth and cohesion.
- Five well-proportioned bedrooms—each with 12-foot ceilings—invite personalization and purpose. Whether for restful retreats, creative corners, or lively kid zones, every room holds its own charm while harmonizing beautifully with the overall flow.
- Effortlessly elegant, the 2.1 bathrooms strike a balance between privacy and practicality. The primary bath offers indulgence with a spacious 72-inch vanity, while the powder room keeps everyday convenience stylishly tucked within reach.
- Thoughtfully laid out on a single level, this home epitomizes the ease of open-concept living. With seamless transitions from the kitchen to the expansive great room and dining area, every space invites connection—and celebration.
- Flex your imagination in the den/playroom, a cozy yet versatile haven. Use it as a media lounge, kids’ kingdom, or refined study—its 12-foot ceiling and central location ensure it’s never just a side thought.
- Say goodbye to laundry day logistics. With discreet access from the primary suite through the walk-in closet, functionality has never felt so elegant—or convenient.
- The workshop off the garage is a dream for DIYers and tinkerers alike. Whether you're restoring vintage finds or building something bold, this space is your sanctuary for hands-on creativity.
- Framed by a stately 20'x8' front porch and an expansive 57'6" rear covered porch, this home invites you to live both indoors and out. Morning coffees, sunset dinners, and everything in between find their place in these gracious outdoor retreats.
- Not just a place to park—this expansive 783-square-foot garage doubles as a functional extension of the home thoughtfully positioned for easy indoor access and day-to-day practicality.
What's included in AK-4001:
Cover sheet with General Notes, Area Tabulation, Index, Drawing Symbol Key, Rendering, + Materials Legend
Main Level Floor Plan + Wall Type Legend
Upper Level Floor Plan + Wall Type Legend
Roof Plan + General Roof Plan Notes
Front + Right Exterior Elevations, General Elevation Notes
Rear + Left Exterior Elevations, General Elevations Notes
Building Section + Interior Kitchen Elevations
Electrical Lighting Plans, Electrical Legend, + Electrical Notes
Foundation Plan, Foundation Plan Notes, + Wall Type Legend
Foundation Details
For more barndominium floor plans, check out our complete collection of 5-bedroom barndominium floor plans.
Need to make changes? Submit a modification request using the button that says Modify This Plan (below the Add To Cart Button). We will get you a free price quote within 72 hours
Please note all square footage are estimates.
What's Included
What's Included
Our house plan sets typically have the following details:
4 Elevations – Front, Back, Both Sides
Detailed Floor Plan Drawing
Electrical Plans with placements for HVAC
Plumbing Plans with Placements
Flooring Plan
Roof Plan
Foundation Plan
For more information on what's included and examples of what your plans will look like, go here -> https://barndominiumplans.com/pages/whats-included
Please Note: We work with many different draftspeople who work in many different ways. It should be noted that their plans may contain different details.Â
What's Not Included
What's Not Included
The following items are NOT included:
Architectural or Engineering Stamp. Our plans are engineering-ready! Can take them to a local engineer in your state.
Site Plan - We can provide this if needed for $300 additional.
Materials List - handled locally when required
Energy calculations - handled locally when required
Snow load calculations - handled locally when required
Delivery
Delivery
This plan is available as a digital product or printed + shipped.
If you select digital, the plan will be delivered to you via email as a PDF file, no matter what time it is.
If you select printed + shipped, your order will ship in 24x36 format within 1 business day of your order.
We ship from the midwest in order to serve the entire country within 3-5 business days!
Return policy
Return policy
All barndominium house plan purchases are FINAL. There are no exchanges or refunds due to the digital nature of the product. Please make sure that the plan you have selected is going to fit your needs.
PDF (Single Build) $1,895.00
DETAILS
HEATED SQ FT
First Floor:
2,800 SF
Second Floor:None
Total Heated Sq Ft:2,800 SF
UNHEATED SQ FT
Garage 783 SF, Porches 850 SF, Workshop 410 SF = TOTAL 2,043 SF
Carport:None
5
2
1
783 SF
80'
62'
19'-2"
Crawl Space
3:12
Stick-Frame
CEILING HEIGHTS
12'
AK-4001 Ironwood Barndominium House Plan
About this barndominium house plan:
- 2800 Heated square feet
- 50x56 living space dimension
- 5 Bedrooms
- 2.1 Bathrooms
- Single-story
- Open concept
- Den/Playroom
- Mudroom
- Laundry Access from Master
- Workshop
- Front & rear porch
- 2-car, 783 SF attached garage
- A generous canvas of comfort and design, this 2,800-square-foot home feels expansive yet intimate—perfectly tailored for those who appreciate room to breathe without compromising on warmth and cohesion.
- Five well-proportioned bedrooms—each with 12-foot ceilings—invite personalization and purpose. Whether for restful retreats, creative corners, or lively kid zones, every room holds its own charm while harmonizing beautifully with the overall flow.
- Effortlessly elegant, the 2.1 bathrooms strike a balance between privacy and practicality. The primary bath offers indulgence with a spacious 72-inch vanity, while the powder room keeps everyday convenience stylishly tucked within reach.
- Thoughtfully laid out on a single level, this home epitomizes the ease of open-concept living. With seamless transitions from the kitchen to the expansive great room and dining area, every space invites connection—and celebration.
- Flex your imagination in the den/playroom, a cozy yet versatile haven. Use it as a media lounge, kids’ kingdom, or refined study—its 12-foot ceiling and central location ensure it’s never just a side thought.
- Say goodbye to laundry day logistics. With discreet access from the primary suite through the walk-in closet, functionality has never felt so elegant—or convenient.
- The workshop off the garage is a dream for DIYers and tinkerers alike. Whether you're restoring vintage finds or building something bold, this space is your sanctuary for hands-on creativity.
- Framed by a stately 20'x8' front porch and an expansive 57'6" rear covered porch, this home invites you to live both indoors and out. Morning coffees, sunset dinners, and everything in between find their place in these gracious outdoor retreats.
- Not just a place to park—this expansive 783-square-foot garage doubles as a functional extension of the home thoughtfully positioned for easy indoor access and day-to-day practicality.
What's included in AK-4001:
Cover sheet with General Notes, Area Tabulation, Index, Drawing Symbol Key, Rendering, + Materials Legend
Main Level Floor Plan + Wall Type Legend
Upper Level Floor Plan + Wall Type Legend
Roof Plan + General Roof Plan Notes
Front + Right Exterior Elevations, General Elevation Notes
Rear + Left Exterior Elevations, General Elevations Notes
Building Section + Interior Kitchen Elevations
Electrical Lighting Plans, Electrical Legend, + Electrical Notes
Foundation Plan, Foundation Plan Notes, + Wall Type Legend
Foundation Details
For more barndominium floor plans, check out our complete collection of 5-bedroom barndominium floor plans.
Need to make changes? Submit a modification request using the button that says Modify This Plan (below the Add To Cart Button). We will get you a free price quote within 72 hours
Please note all square footage are estimates.
What's Included
What's Included
Our house plan sets typically have the following details:
4 Elevations – Front, Back, Both Sides
Detailed Floor Plan Drawing
Electrical Plans with placements for HVAC
Plumbing Plans with Placements
Flooring Plan
Roof Plan
Foundation Plan
For more information on what's included and examples of what your plans will look like, go here -> https://barndominiumplans.com/pages/whats-included
Please Note: We work with many different draftspeople who work in many different ways. It should be noted that their plans may contain different details.Â
What's Not Included
What's Not Included
The following items are NOT included:
Architectural or Engineering Stamp. Our plans are engineering-ready! Can take them to a local engineer in your state.
Site Plan - We can provide this if needed for $300 additional.
Materials List - handled locally when required
Energy calculations - handled locally when required
Snow load calculations - handled locally when required
Delivery
Delivery
This plan is available as a digital product or printed + shipped.
If you select digital, the plan will be delivered to you via email as a PDF file, no matter what time it is.
If you select printed + shipped, your order will ship in 24x36 format within 1 business day of your order.
We ship from the midwest in order to serve the entire country within 3-5 business days!
Return policy
Return policy
All barndominium house plan purchases are FINAL. There are no exchanges or refunds due to the digital nature of the product. Please make sure that the plan you have selected is going to fit your needs.













Real Reviews, Real Experiences
How to Build Your Own Barndominium & 120+ House Plans

Just getting started on your build? Get the Barndominiums Made Easy Program.
- Choosing a selection results in a full page refresh.