Couldn't load pickup availability
Barndominium Plans
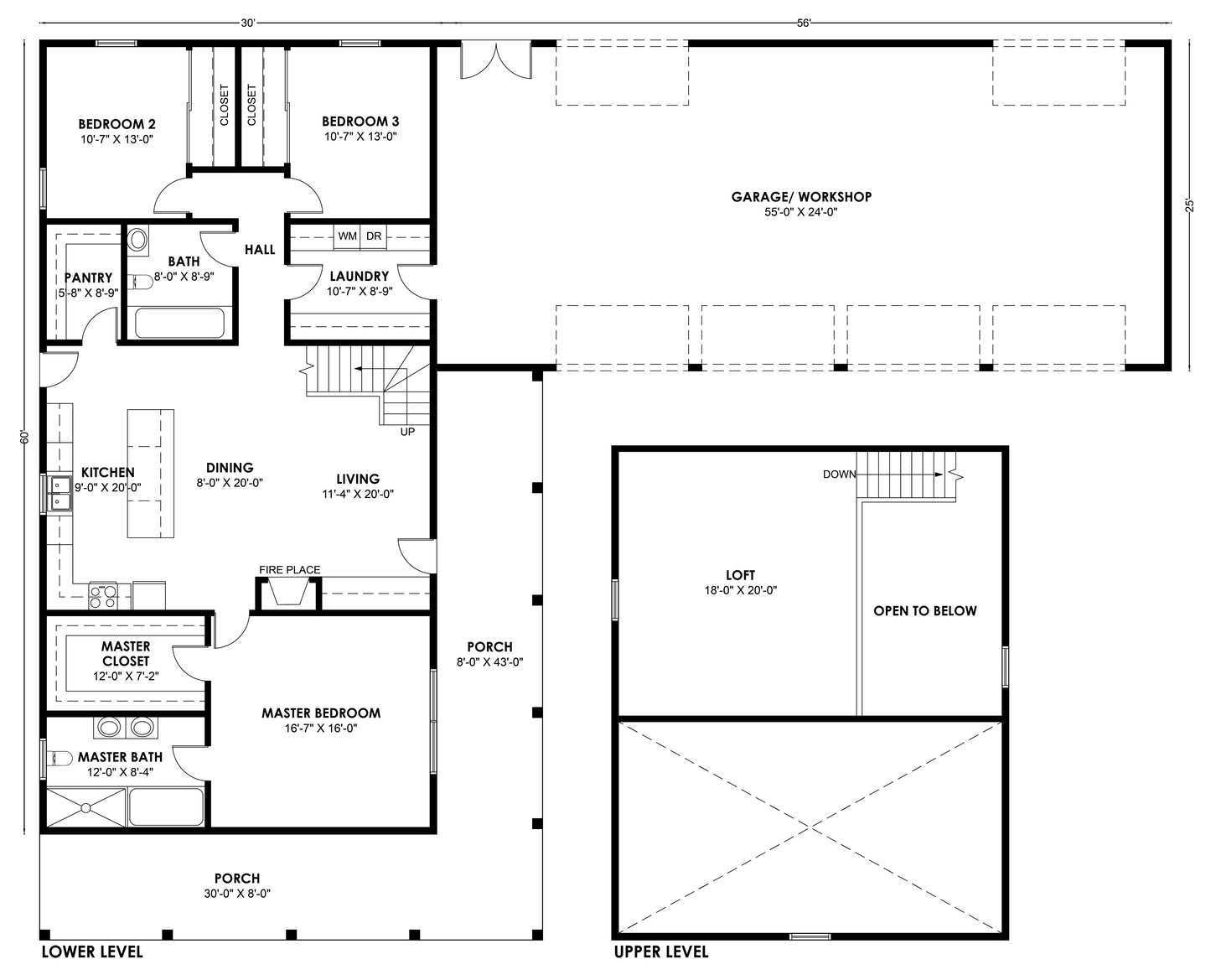
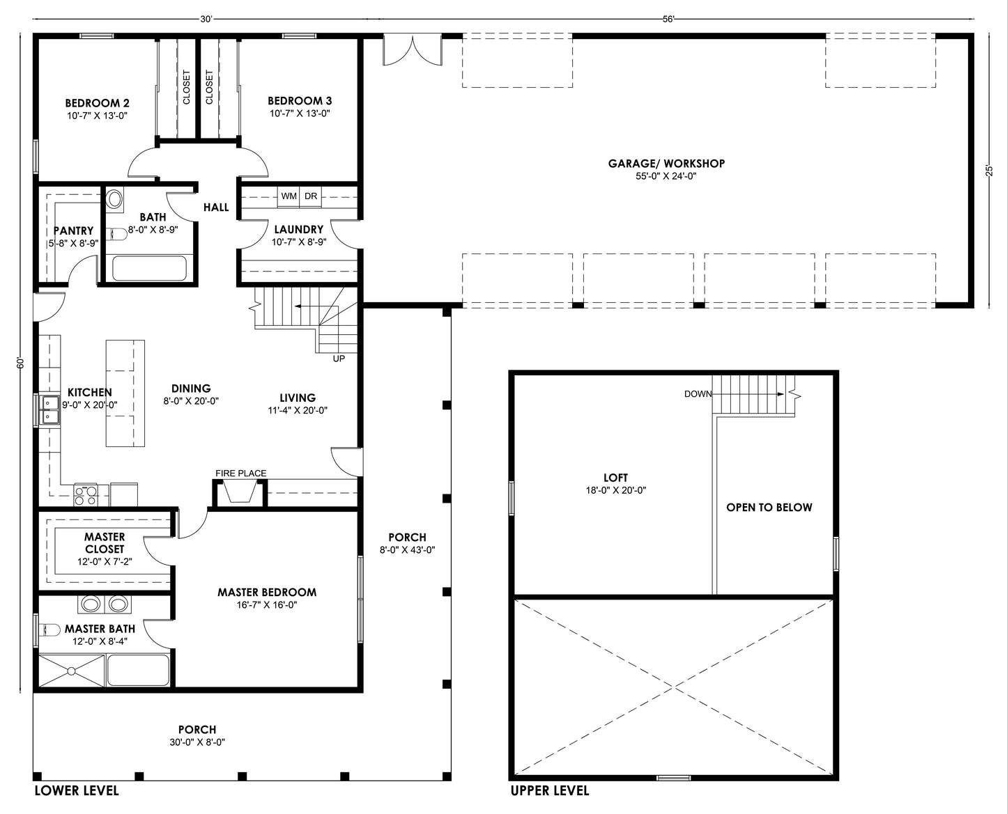
BCO-40176 Barndominium House Plan
DETAILS
BCO-40176 Barndominium House Plan
About this barndominium house plan:
-
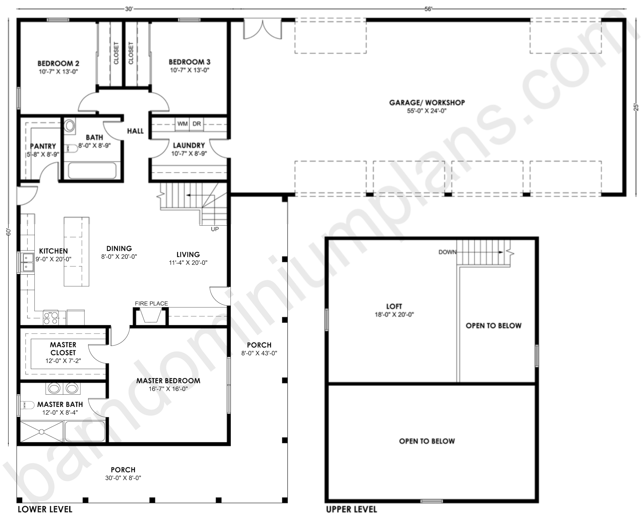
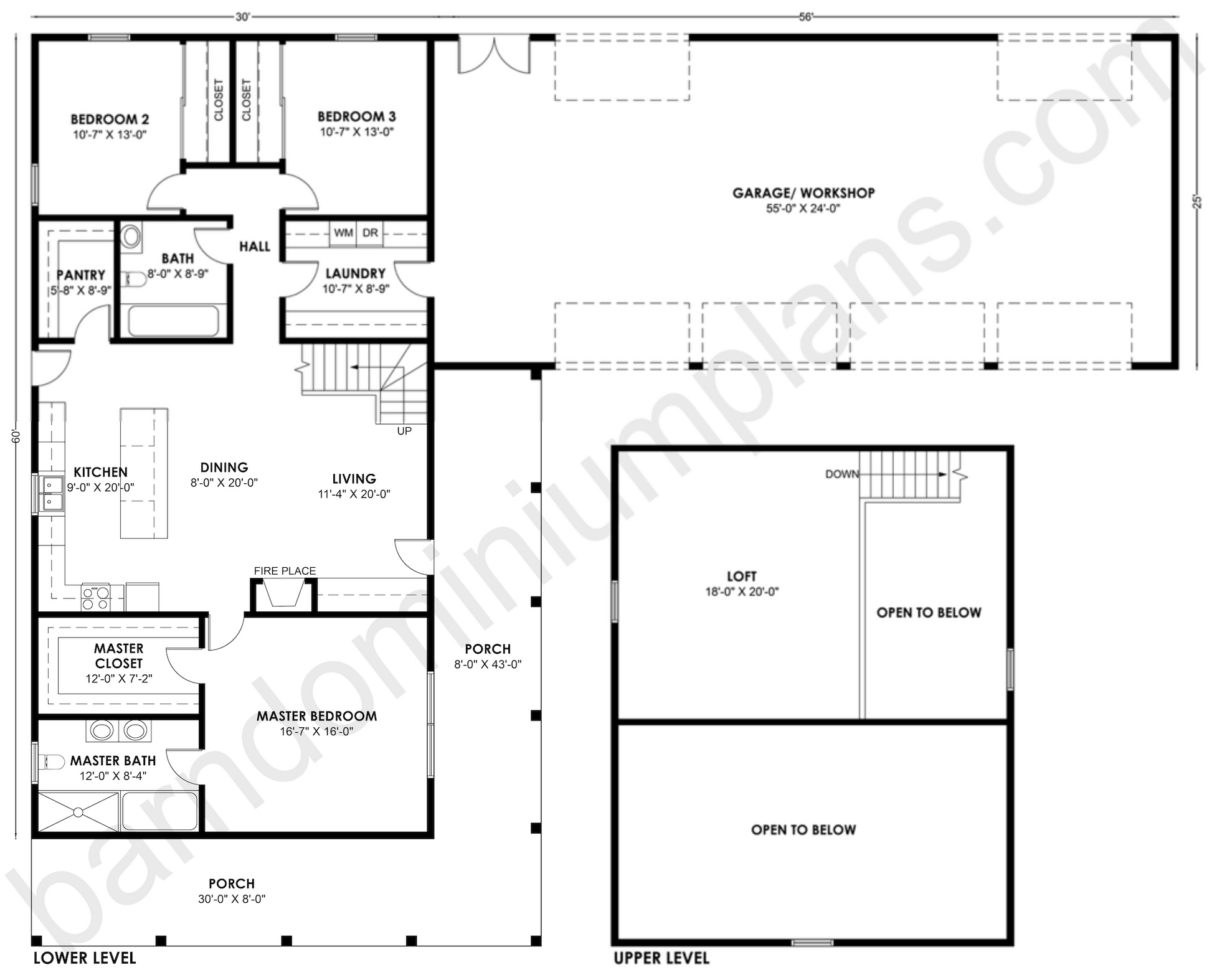
This plan features a large 16'-7" x 16'-0" master bedroom on the lower level, complete with a private master bath and a 12'-0" x 8'-4" walk-in closet.
-
The open-concept living area includes a kitchen, dining, and living space that measures approximately 28'-4" in total width.
-
Two additional bedrooms, both measuring 10'-7" x 13'-0", are located on the lower level and share a centrally located hallway bath.
-
The upper level adds significant flexible space with an 18'-0" x 20'-0" loft that overlooks the living area below.
-
Outdoor and utility spaces are plentiful, including a 30'-0" x 8'-0" front porch and a dedicated laundry room.
For more barndominium floor plans, check out our complete collection of 2-bedroom barndominium floor plans.
Need to make changes? Submit a modification request using the button that says Modify This Plan . We will get you a free price quote within 72 hours
What's Included In These Plans
What's Included In These Plans
Our house plan sets have the following details:
4 Elevations – Front, Back, Both Sides
Detailed Floor Plan Drawing
Electrical Plans
Plumbing Plans
Wall Section
Roof Plan
Roof Framing Plan
Foundation Plan
For more information on what's included and examples of what your plans will look like, go here -> https://barndominiumplans.com/pages/whats-included
What's Not Included
What's Not Included
The following items are NOT included:
Architectural or Engineering Stamp - handled locally if required. We can help you find a structural engineer locally
Site Plan - handled locally when required
Energy calculations - handled locally when required
Snow load calculations - handled locally when required
Delivery
Delivery
This plan is available as a digital product or printed + shipped.
If you select digital, the plan will be delivered to you via email as a PDF file.
If you select printed + shipped, your order will ship in 24x36 format within 1 business day of your order.
We ship from the midwest in order to serve the entire country within 3-5 business days!
Return policy
Return policy
All barndominium house plan purchases are FINAL. There are no exchanges or refunds due to the digital nature of the product. Please make sure that the plan you have selected is going to fit your needs.
PDF (Single Build) $1,349.99
DETAILS
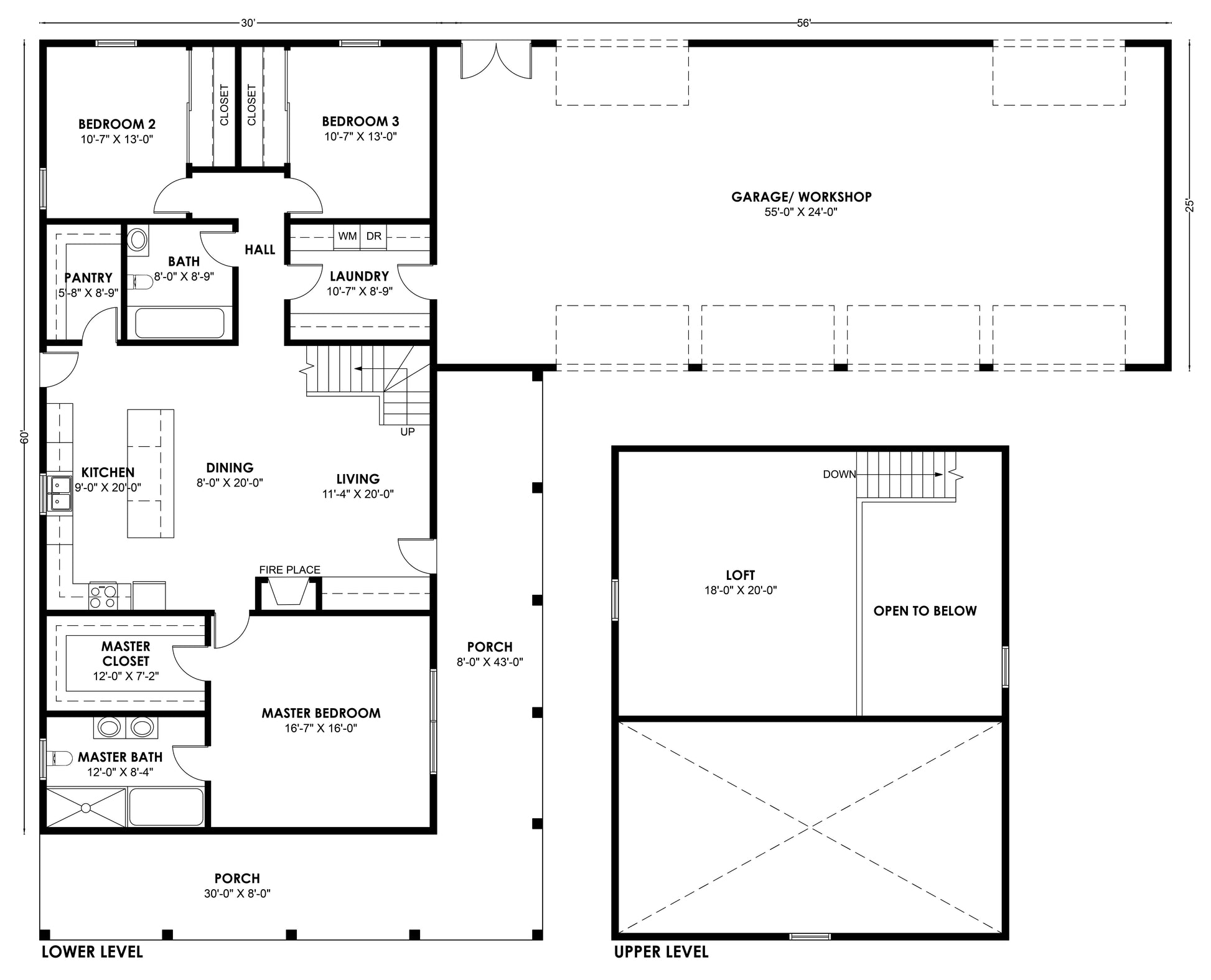
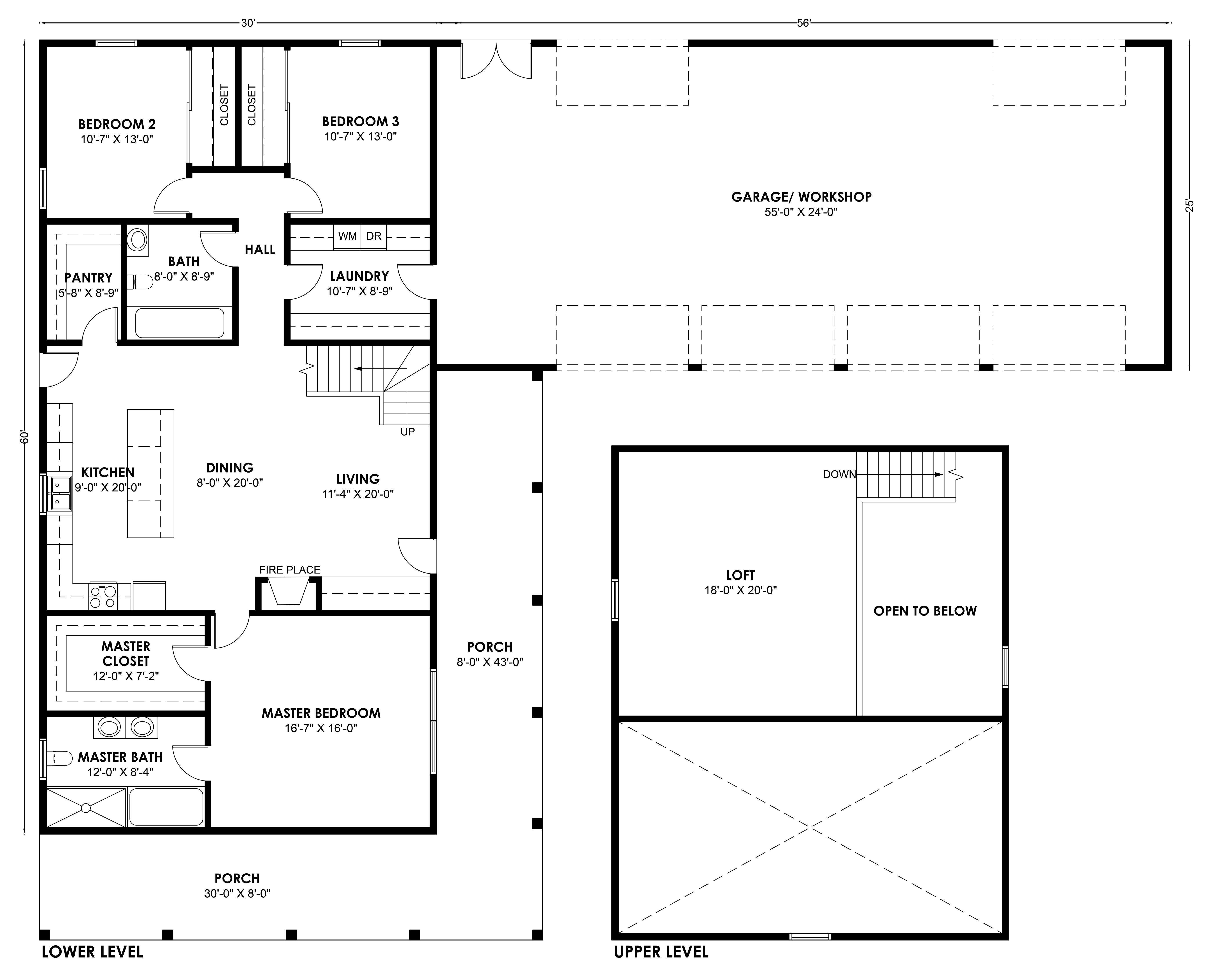
BCO-40176 Barndominium House Plan
About this barndominium house plan:
-
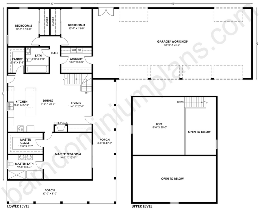
This plan features a large 16'-7" x 16'-0" master bedroom on the lower level, complete with a private master bath and a 12'-0" x 8'-4" walk-in closet.
-
The open-concept living area includes a kitchen, dining, and living space that measures approximately 28'-4" in total width.
-
Two additional bedrooms, both measuring 10'-7" x 13'-0", are located on the lower level and share a centrally located hallway bath.
-
The upper level adds significant flexible space with an 18'-0" x 20'-0" loft that overlooks the living area below.
-
Outdoor and utility spaces are plentiful, including a 30'-0" x 8'-0" front porch and a dedicated laundry room.
For more barndominium floor plans, check out our complete collection of 2-bedroom barndominium floor plans.
Need to make changes? Submit a modification request using the button that says Modify This Plan . We will get you a free price quote within 72 hours
What's Included In These Plans
What's Included In These Plans
Our house plan sets have the following details:
4 Elevations – Front, Back, Both Sides
Detailed Floor Plan Drawing
Electrical Plans
Plumbing Plans
Wall Section
Roof Plan
Roof Framing Plan
Foundation Plan
For more information on what's included and examples of what your plans will look like, go here -> https://barndominiumplans.com/pages/whats-included
What's Not Included
What's Not Included
The following items are NOT included:
Architectural or Engineering Stamp - handled locally if required. We can help you find a structural engineer locally
Site Plan - handled locally when required
Energy calculations - handled locally when required
Snow load calculations - handled locally when required
Delivery
Delivery
This plan is available as a digital product or printed + shipped.
If you select digital, the plan will be delivered to you via email as a PDF file.
If you select printed + shipped, your order will ship in 24x36 format within 1 business day of your order.
We ship from the midwest in order to serve the entire country within 3-5 business days!
Return policy
Return policy
All barndominium house plan purchases are FINAL. There are no exchanges or refunds due to the digital nature of the product. Please make sure that the plan you have selected is going to fit your needs.

Real Reviews, Real Experiences
How to Build Your Own Barndominium & 120+ House Plans
Just getting started on your build? Get the Barndominiums Made Easy Program.
- Choosing a selection results in a full page refresh.



