Couldn't load pickup availability
Barndominium Plans
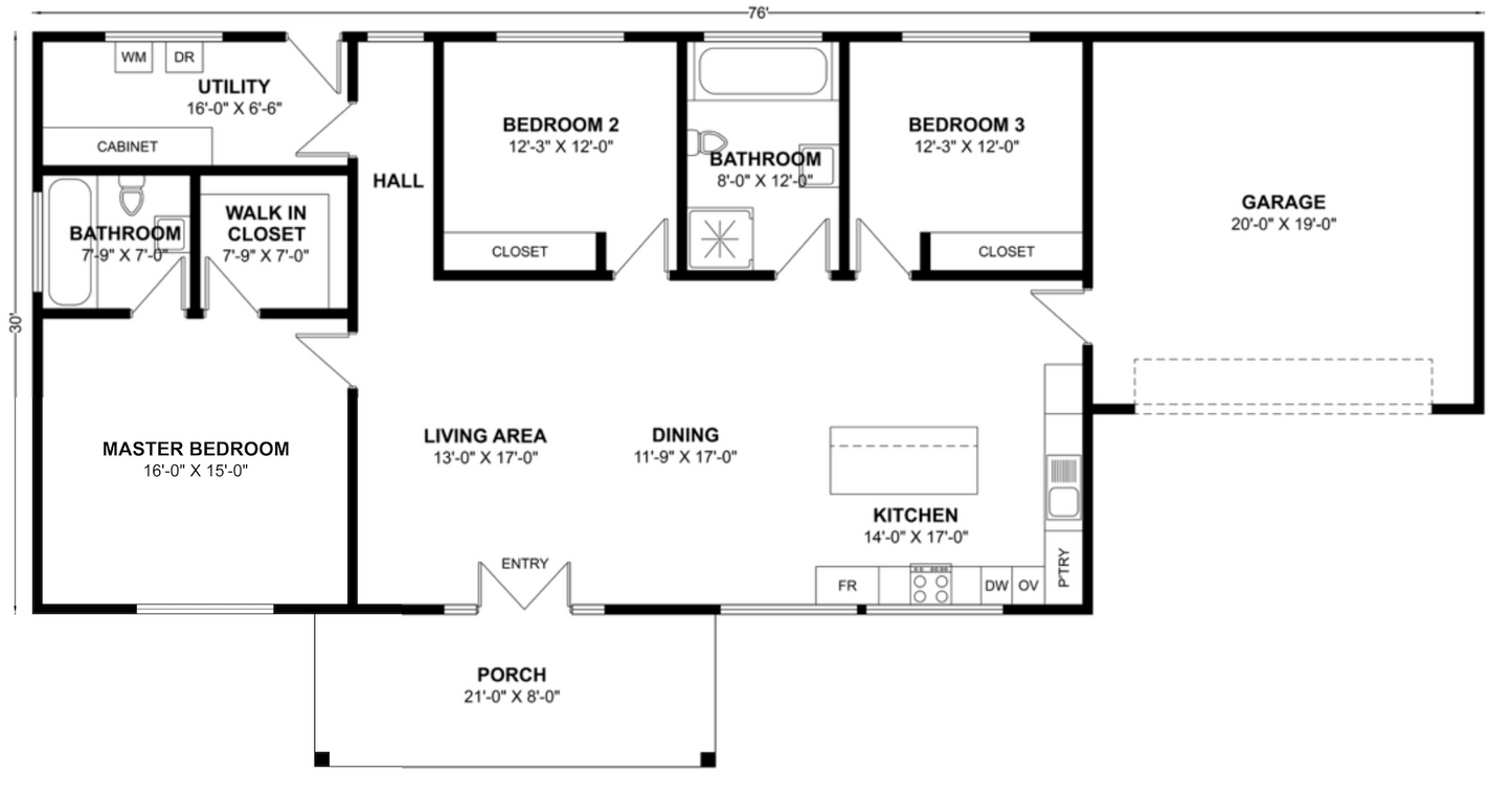
BCO-40093 Barndominium House Plan
DETAILS
BCO-40093 Barndominium House Plan
- This 2,100 square foot floor plan offers a spacious and functional layout, providing a perfect blend of style and efficiency within a 70' x 30' footprint.
-
The home features a private master bedroom (16' x 15') with an attached bathroom (7'-9" x 7'-3") and a spacious walk-in closet (7'-9" x 7'-0"), offering a serene retreat.
-
The two additional bedrooms (12'-3" x 12' and 12'-3" x 12') with a shared bathroom (8' x 12') nearby provide ideal accommodations for guests or family.
-
The heart of the home is the open living area (13' x 17') and dining space (11'-9" x 17') which flows into a functional kitchen (14' x 17'), perfect for entertaining.
-
The design also includes a large utility room (16' x 6'-6"), a pantry, a 20' x 19' garage, and a welcoming 21' x 8' porch, making this plan a perfect blend of style, function, and storage.
For more barndominium floor plans, check out our complete collection of 2-bedroom barndominium floor plans.
Need to make changes? Submit a modification request using the button that says Modify This Plan . We will get you a free price quote within 72 hours
What's Included In These Plans
What's Included In These Plans
Our house plan sets have the following details:
4 Elevations – Front, Back, Both Sides
Detailed Floor Plan Drawing
Electrical Plans
Plumbing Plans
Wall Section
Roof Plan
Roof Framing Plan
Foundation Plan
For more information on what's included and examples of what your plans will look like, go here -> https://barndominiumplans.com/pages/whats-included
What's Not Included
What's Not Included
The following items are NOT included:
Architectural or Engineering Stamp - handled locally if required. We can help you find a structural engineer locally
Site Plan - handled locally when required
Energy calculations - handled locally when required
Snow load calculations - handled locally when required
Delivery
Delivery
This plan is available as a digital product or printed + shipped.
If you select digital, the plan will be delivered to you via email as a PDF file.
If you select printed + shipped, your order will ship in 24x36 format within 1 business day of your order.
We ship from the midwest in order to serve the entire country within 3-5 business days!
Return policy
Return policy
All barndominium house plan purchases are FINAL. There are no exchanges or refunds due to the digital nature of the product. Please make sure that the plan you have selected is going to fit your needs.
PDF (Single Build) $1,349.99
DETAILS
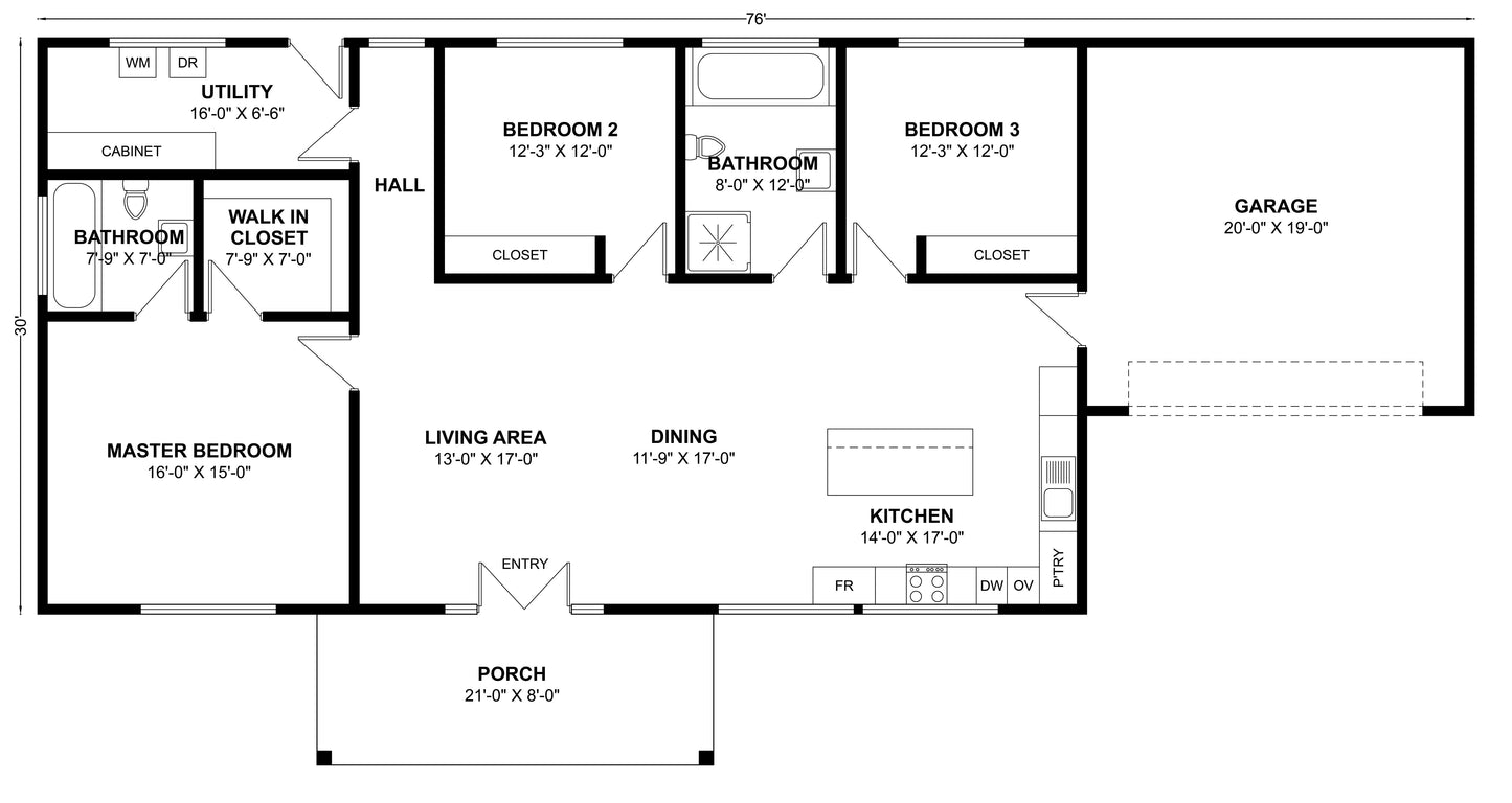
BCO-40093 Barndominium House Plan
- This 2,100 square foot floor plan offers a spacious and functional layout, providing a perfect blend of style and efficiency within a 70' x 30' footprint.
-
The home features a private master bedroom (16' x 15') with an attached bathroom (7'-9" x 7'-3") and a spacious walk-in closet (7'-9" x 7'-0"), offering a serene retreat.
-
The two additional bedrooms (12'-3" x 12' and 12'-3" x 12') with a shared bathroom (8' x 12') nearby provide ideal accommodations for guests or family.
-
The heart of the home is the open living area (13' x 17') and dining space (11'-9" x 17') which flows into a functional kitchen (14' x 17'), perfect for entertaining.
-
The design also includes a large utility room (16' x 6'-6"), a pantry, a 20' x 19' garage, and a welcoming 21' x 8' porch, making this plan a perfect blend of style, function, and storage.
For more barndominium floor plans, check out our complete collection of 2-bedroom barndominium floor plans.
Need to make changes? Submit a modification request using the button that says Modify This Plan . We will get you a free price quote within 72 hours
What's Included In These Plans
What's Included In These Plans
Our house plan sets have the following details:
4 Elevations – Front, Back, Both Sides
Detailed Floor Plan Drawing
Electrical Plans
Plumbing Plans
Wall Section
Roof Plan
Roof Framing Plan
Foundation Plan
For more information on what's included and examples of what your plans will look like, go here -> https://barndominiumplans.com/pages/whats-included
What's Not Included
What's Not Included
The following items are NOT included:
Architectural or Engineering Stamp - handled locally if required. We can help you find a structural engineer locally
Site Plan - handled locally when required
Energy calculations - handled locally when required
Snow load calculations - handled locally when required
Delivery
Delivery
This plan is available as a digital product or printed + shipped.
If you select digital, the plan will be delivered to you via email as a PDF file.
If you select printed + shipped, your order will ship in 24x36 format within 1 business day of your order.
We ship from the midwest in order to serve the entire country within 3-5 business days!
Return policy
Return policy
All barndominium house plan purchases are FINAL. There are no exchanges or refunds due to the digital nature of the product. Please make sure that the plan you have selected is going to fit your needs.

Real Reviews, Real Experiences
How to Build Your Own Barndominium & 120+ House Plans
Just getting started on your build? Get the Barndominiums Made Easy Program.
- Choosing a selection results in a full page refresh.



