Couldn't load pickup availability
Barndominium Plans
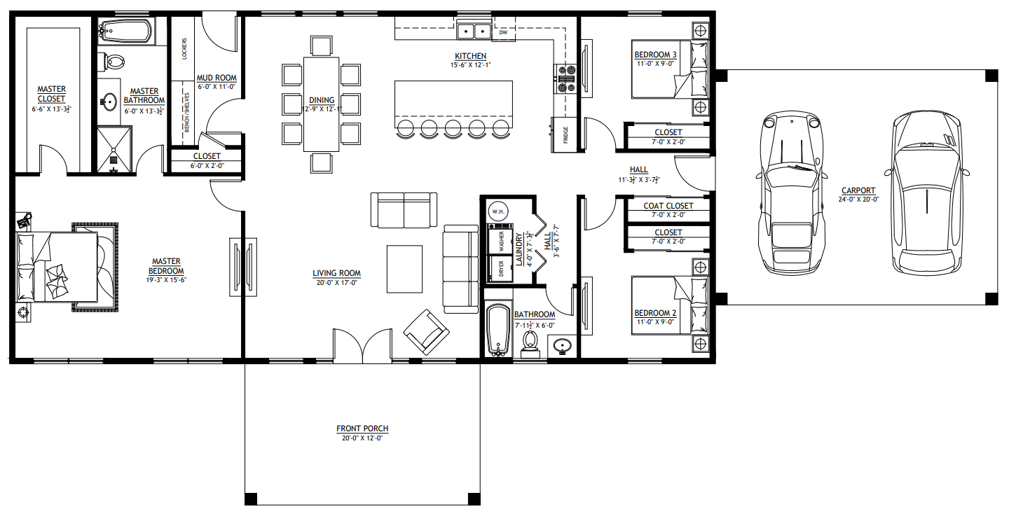
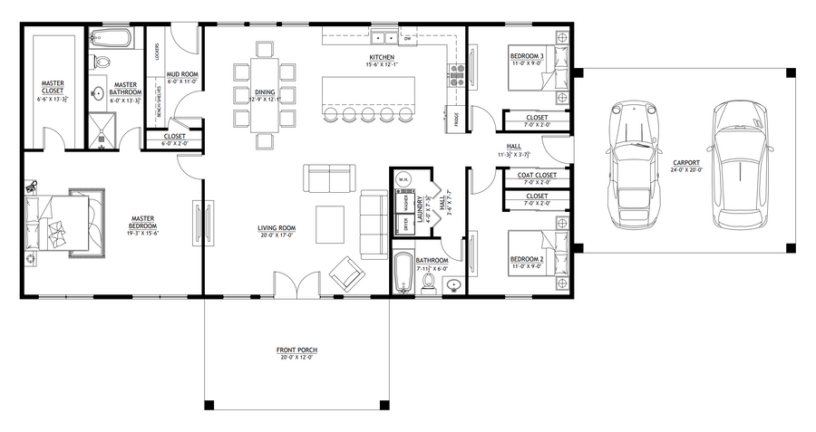
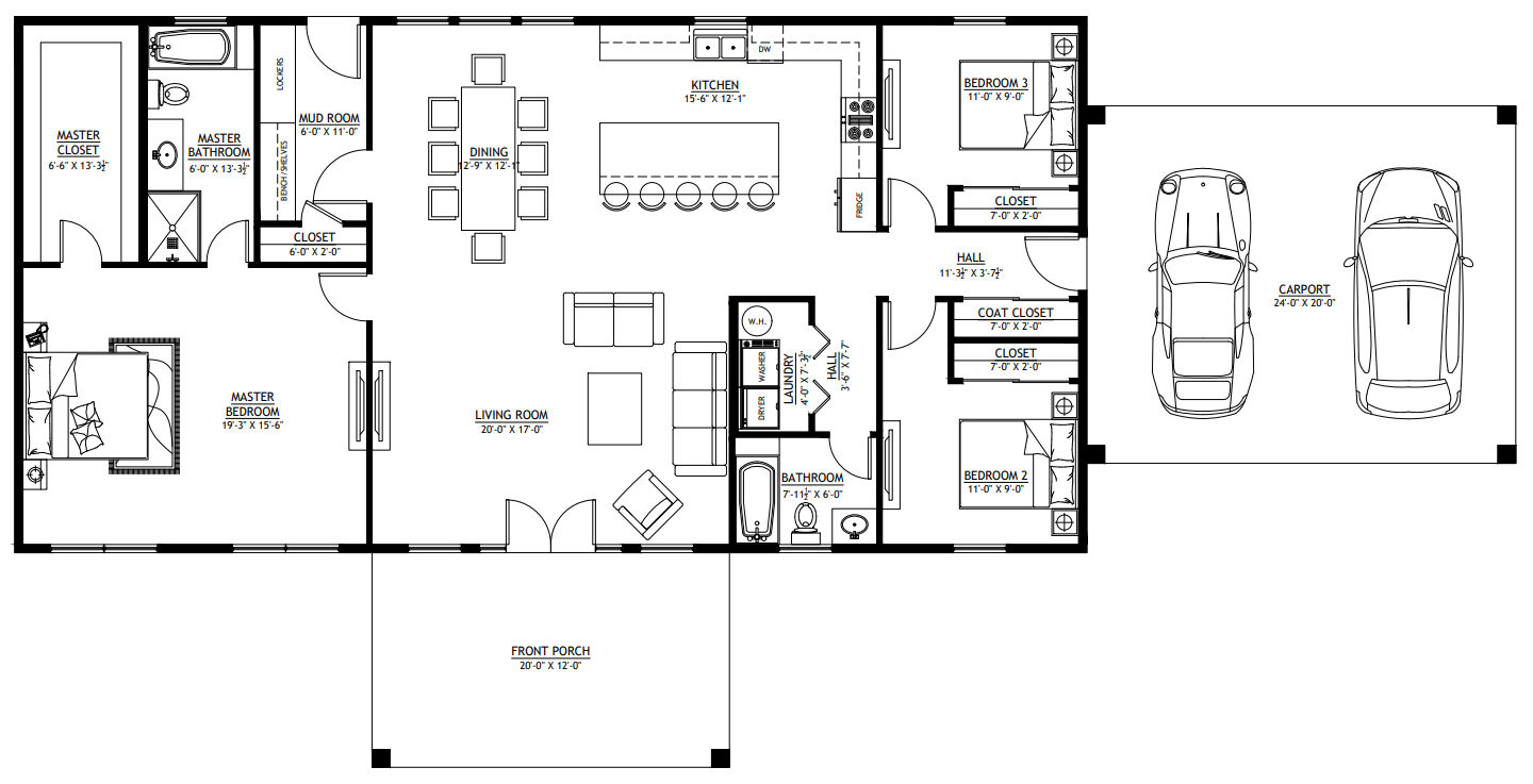
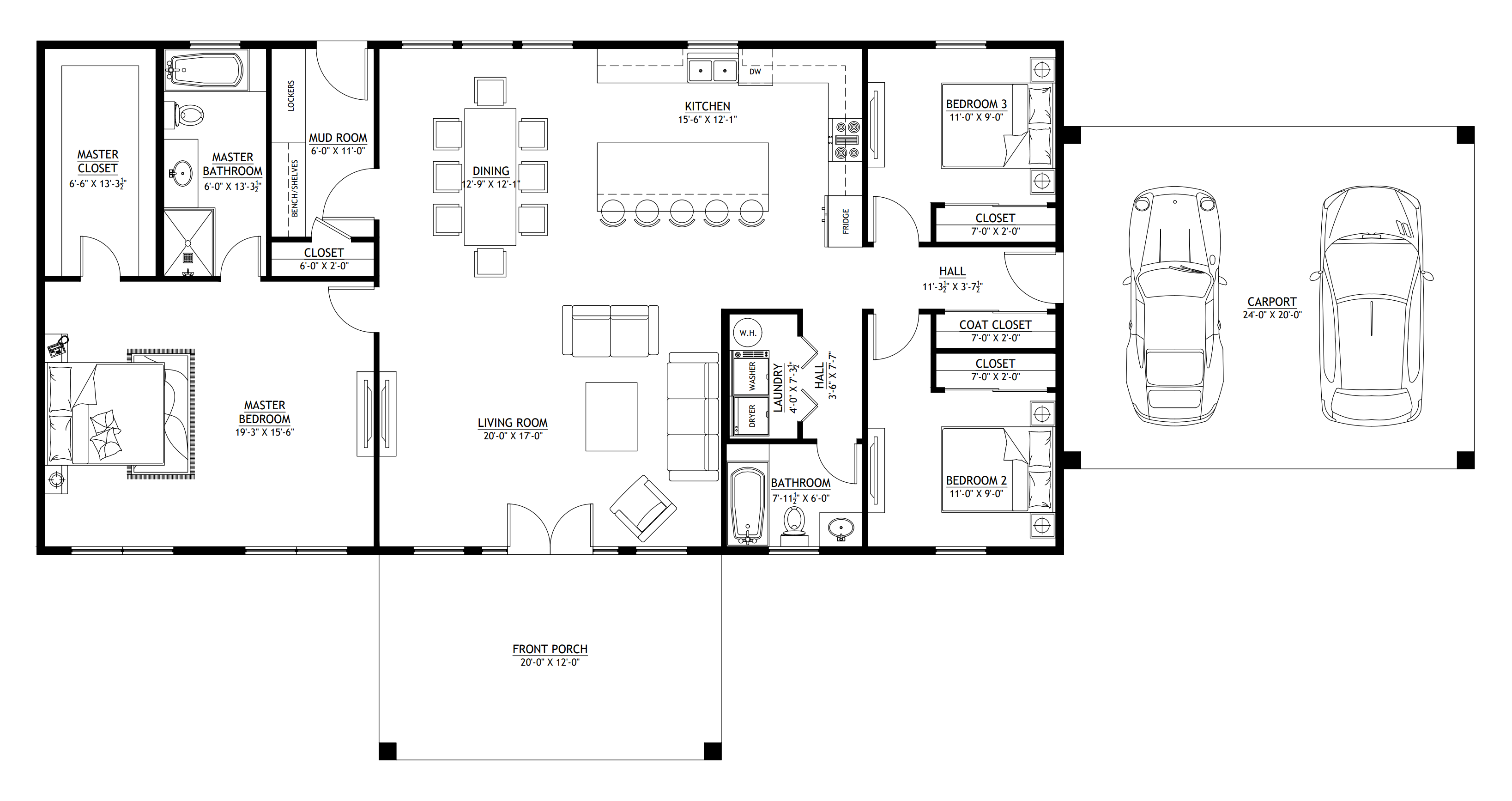
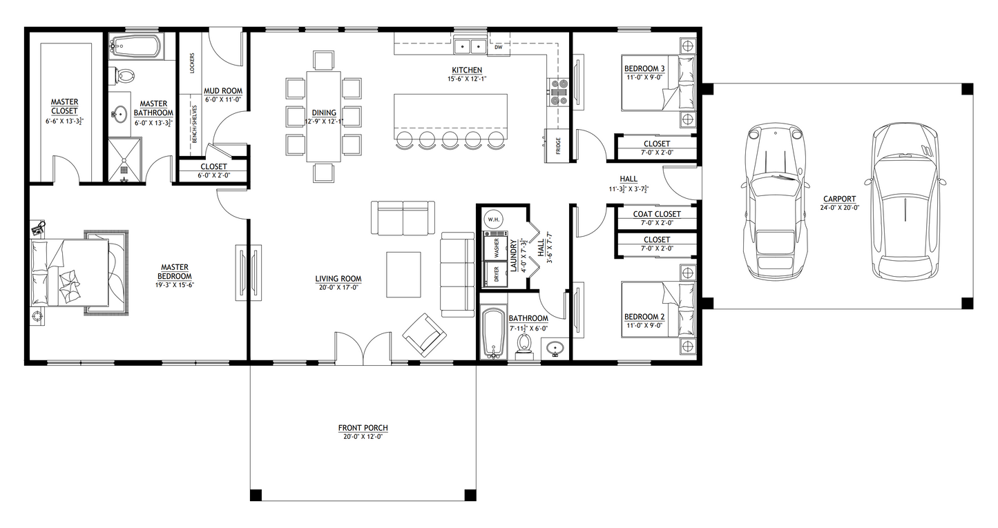
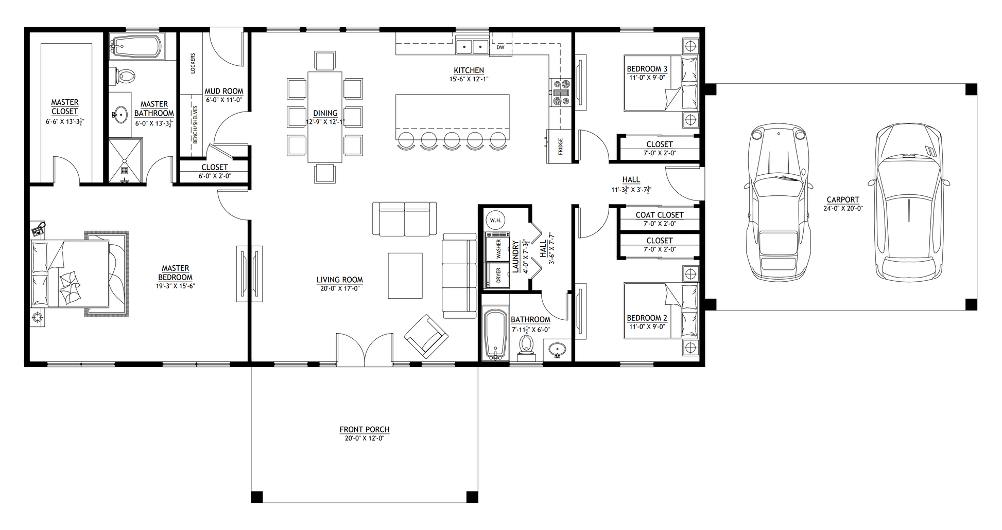
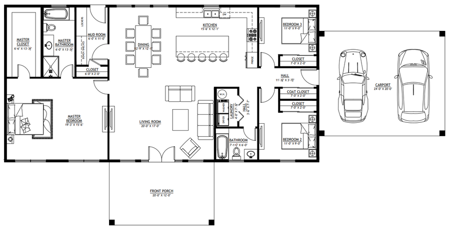
BCO-40046 Ray Barndominium House Plan
DETAILS
HEATED SQ FT
First Floor:
1,800 SF
Second Floor:None
Total Heated Sq Ft:1,800 SF
UNHEATED SQ FT
Carport 480 SF, Porch 240 SF = TOTAL 720 SF
Carport:480 SF
3
2
1
None
84'
42'
21'-9 1/2"
Concrete Slab
8:12
Stick-Frame (Also have Metal Shell Plan at No Additional Cost)
CEILING HEIGHTS
10'
BCO-40046 Ray Barndominium House Plan
About this barndominium house plan:
- 1800 Heated square feet
- 30x60 living space dimension
- 3 bedrooms
- 2 bathrooms
- Single Story
- Open Concept
- Front porch
- Mudroom
- Carport (2-car)
- Utility room
- A well-balanced footprint offering spacious comfort without excess—perfect for relaxed living, entertaining, and efficient flow.
- Three thoughtfully designed bedrooms offer flexibility for families, guests, or creative workspaces—each with room to breathe and personalize.
- Two full bathrooms ensure convenience and privacy, with layouts that support both daily routines and moments of retreat.
- All living areas are arranged on one accessible level, enhancing ease of movement and creating a seamless indoor experience.
- The heart of the home features a fluid layout that connects kitchen, dining, and living spaces—encouraging connection and natural flow.
- A welcoming front porch adds curb appeal and a cozy outdoor nook—perfect for morning coffee, evening chats, or seasonal décor.
- A practical transition space that keeps the home tidy and organized—ideal for stashing shoes, coats, and everyday essentials.
- Covered parking for two vehicles offers protection from the elements and easy access to the home, with room for storage or gear.
What's included in BCO-40046:
Cover Page
Floor Plan
Roof Plan
Front And Rear Elevation
Right And Left Elevation
Electrical Plan
Plumbing Plan
HVAC Plan
Roof Framing Plan
Foundation Plan
Foundation Detail
C-Typical Column Detail
Wall Section
For more barndominium floor plans, check out our complete collection of 2-bedroom barndominium floor plans.
Need to make changes? Submit a modification request using the button that says Modify This Plan (below the Add To Cart Button). We will get you a free price quote within 72 hours
Please note all square footage are estimates.
What's Included
What's Included
Our house plan sets typically have the following details:
4 Elevations – Front, Back, Both Sides
Detailed Floor Plan Drawing
Electrical Plans with placements for HVAC
Plumbing Plans with Placements
Flooring Plan
Roof Plan
Foundation Plan
For more information on what's included and examples of what your plans will look like, go here -> https://barndominiumplans.com/pages/whats-included
Please Note: We work with many different draftspeople who work in many different ways. It should be noted that their plans may contain different details.
What's Not Included
What's Not Included
The following items are NOT included:
Architectural or Engineering Stamp. Our plans are engineering-ready! Can take them to a local engineer in your state.
Site Plan - We can provide this if needed for $300 additional.
Materials List - handled locally when required
Energy calculations - handled locally when required
Snow load calculations - handled locally when required
Delivery
Delivery
This plan is available as a digital product or printed + shipped.
If you select digital, the plan will be delivered to you via email as a PDF file, no matter what time it is.
If you select printed + shipped, your order will ship in 24x36 format within 1 business day of your order.
We ship from the midwest in order to serve the entire country within 3-5 business days!
Return policy
Return policy
All barndominium house plan purchases are FINAL. There are no exchanges or refunds due to the digital nature of the product. Please make sure that the plan you have selected is going to fit your needs.
PDF (Single Build) $849.99
DETAILS
HEATED SQ FT
First Floor:
1,800 SF
Second Floor:None
Total Heated Sq Ft:1,800 SF
UNHEATED SQ FT
Carport 480 SF, Porch 240 SF = TOTAL 720 SF
Carport:480 SF
3
2
1
None
84'
42'
21'-9 1/2"
Concrete Slab
8:12
Stick-Frame (Also have Metal Shell Plan at No Additional Cost)
CEILING HEIGHTS
10'
BCO-40046 Ray Barndominium House Plan
About this barndominium house plan:
- 1800 Heated square feet
- 30x60 living space dimension
- 3 bedrooms
- 2 bathrooms
- Single Story
- Open Concept
- Front porch
- Mudroom
- Carport (2-car)
- Utility room
- A well-balanced footprint offering spacious comfort without excess—perfect for relaxed living, entertaining, and efficient flow.
- Three thoughtfully designed bedrooms offer flexibility for families, guests, or creative workspaces—each with room to breathe and personalize.
- Two full bathrooms ensure convenience and privacy, with layouts that support both daily routines and moments of retreat.
- All living areas are arranged on one accessible level, enhancing ease of movement and creating a seamless indoor experience.
- The heart of the home features a fluid layout that connects kitchen, dining, and living spaces—encouraging connection and natural flow.
- A welcoming front porch adds curb appeal and a cozy outdoor nook—perfect for morning coffee, evening chats, or seasonal décor.
- A practical transition space that keeps the home tidy and organized—ideal for stashing shoes, coats, and everyday essentials.
- Covered parking for two vehicles offers protection from the elements and easy access to the home, with room for storage or gear.
What's included in BCO-40046:
Cover Page
Floor Plan
Roof Plan
Front And Rear Elevation
Right And Left Elevation
Electrical Plan
Plumbing Plan
HVAC Plan
Roof Framing Plan
Foundation Plan
Foundation Detail
C-Typical Column Detail
Wall Section
For more barndominium floor plans, check out our complete collection of 2-bedroom barndominium floor plans.
Need to make changes? Submit a modification request using the button that says Modify This Plan (below the Add To Cart Button). We will get you a free price quote within 72 hours
Please note all square footage are estimates.
What's Included
What's Included
Our house plan sets typically have the following details:
4 Elevations – Front, Back, Both Sides
Detailed Floor Plan Drawing
Electrical Plans with placements for HVAC
Plumbing Plans with Placements
Flooring Plan
Roof Plan
Foundation Plan
For more information on what's included and examples of what your plans will look like, go here -> https://barndominiumplans.com/pages/whats-included
Please Note: We work with many different draftspeople who work in many different ways. It should be noted that their plans may contain different details.
What's Not Included
What's Not Included
The following items are NOT included:
Architectural or Engineering Stamp. Our plans are engineering-ready! Can take them to a local engineer in your state.
Site Plan - We can provide this if needed for $300 additional.
Materials List - handled locally when required
Energy calculations - handled locally when required
Snow load calculations - handled locally when required
Delivery
Delivery
This plan is available as a digital product or printed + shipped.
If you select digital, the plan will be delivered to you via email as a PDF file, no matter what time it is.
If you select printed + shipped, your order will ship in 24x36 format within 1 business day of your order.
We ship from the midwest in order to serve the entire country within 3-5 business days!
Return policy
Return policy
All barndominium house plan purchases are FINAL. There are no exchanges or refunds due to the digital nature of the product. Please make sure that the plan you have selected is going to fit your needs.















Real Reviews, Real Experiences
How to Build Your Own Barndominium & 120+ House Plans

Just getting started on your build? Get the Barndominiums Made Easy Program.
- Choosing a selection results in a full page refresh.