Couldn't load pickup availability
Barndominium Plans
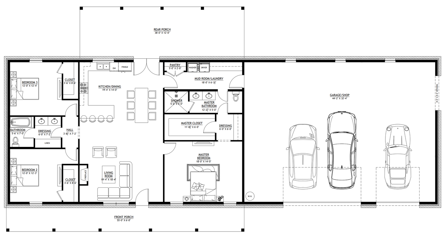
PL-62001 Greenbrush Barndominium House Plan
DETAILS
HEATED SQ FT
First Floor:
1815 SF
Second Floor:None
Total Heated Sq Ft:1815 SF
UNHEATED SQ FT
2295 SF
Carport:None
3
2
1
1485 SF
100'
53'
24'-9"
Concrete Slab
4:12
Metal Shell
CEILING HEIGHTS
12'9"
PL-62001 Greenbrush Barndominium House Plan
Looking for this plan, but a bit bigger? Discover a similar floor plan here that's 2000 sq ft.
- 1815 Heated square feet
- 33x55 living space dimension
- 3 Car attached garage
- 3 bedrooms
- 2 bathrooms
- 1 Story
- Utility Room
- Open Concept
- The Greenbrush barndominium floor plan is 1815. heated square feet and features 3 bedrooms and 2 bathrooms with an attached 3-car garage.
- As you enter the home you are greeted by an open-concept living space and a nice-sized kitchen perfect for entertaining and gathering as a family. You will love that the kitchen and dining area flow seamlessly from the living room, creating a warm and inviting atmosphere.
- The master bedroom features an ensuite bathroom and walk-in closet.
- The 2 secondary bedrooms are larger than the standard secondary bedrooms both with closets. There is a shared bathroom in between both bedrooms.
- The utility room is an added bonus to the home. It has access to both the master bath and the attached garage, making it easy to keep your home clean and tidy.
- The front and back porches offer a cozy spot to relax and take in the views of your surroundings.
What's included in PL-62001:
Cover Sheet
Detailed Floor Plan Dimensions
Four Elevations - Front, Back, Left Side, Right Side
Electrical Plan
Plumbing Plan
HVAC Plan
Roof Framing Plan
Foundation Plan
Wall Section
For more barndominium floor plans, check out our complete collection of 3 bedroom barndominium floor plans.
Need to make changes? Submit a modification request using the button that says Modify This Plan (below the Add To Cart Button). We will get you a free price quote within 72 hours
Please note all square footage are estimates.
What's Included
What's Included
Our house plan sets typically have the following details:
4 Elevations – Front, Back, Both Sides
Detailed Floor Plan Drawing
Electrical Plans with placements for HVAC
Plumbing Plans with Placements
Flooring Plan
Roof Plan
Foundation Plan
For more information on what's included and examples of what your plans will look like, go here -> https://barndominiumplans.com/pages/whats-included
Please Note: We work with many different draftspeople who work in many different ways. It should be noted that their plans may contain different details.Â
What's Not Included
What's Not Included
The following items are NOT included:
Architectural or Engineering Stamp. Our plans are engineering-ready! Can take them to a local engineer in your state.
Site Plan - We can provide this if needed for $300 additional.
Materials List - handled locally when required
Energy calculations - handled locally when required
Snow load calculations - handled locally when required
Delivery
Delivery
This plan is available as a digital product or printed + shipped.
If you select digital, the plan will be delivered to you via email as a PDF file, no matter what time it is.
If you select printed + shipped, your order will ship in 24x36 format within 1 business day of your order.
We ship from the midwest in order to serve the entire country within 3-5 business days!
Return policy
Return policy
All barndominium house plan purchases are FINAL. There are no exchanges or refunds due to the digital nature of the product. Please make sure that the plan you have selected is going to fit your needs.
PDF (Single Build) $849.99
DETAILS
HEATED SQ FT
First Floor:
1815 SF
Second Floor:None
Total Heated Sq Ft:1815 SF
UNHEATED SQ FT
2295 SF
Carport:None
3
2
1
1485 SF
100'
53'
24'-9"
Concrete Slab
4:12
Metal Shell
CEILING HEIGHTS
12'9"
PL-62001 Greenbrush Barndominium House Plan
Looking for this plan, but a bit bigger? Discover a similar floor plan here that's 2000 sq ft.
- 1815 Heated square feet
- 33x55 living space dimension
- 3 Car attached garage
- 3 bedrooms
- 2 bathrooms
- 1 Story
- Utility Room
- Open Concept
- The Greenbrush barndominium floor plan is 1815. heated square feet and features 3 bedrooms and 2 bathrooms with an attached 3-car garage.
- As you enter the home you are greeted by an open-concept living space and a nice-sized kitchen perfect for entertaining and gathering as a family. You will love that the kitchen and dining area flow seamlessly from the living room, creating a warm and inviting atmosphere.
- The master bedroom features an ensuite bathroom and walk-in closet.
- The 2 secondary bedrooms are larger than the standard secondary bedrooms both with closets. There is a shared bathroom in between both bedrooms.
- The utility room is an added bonus to the home. It has access to both the master bath and the attached garage, making it easy to keep your home clean and tidy.
- The front and back porches offer a cozy spot to relax and take in the views of your surroundings.
What's included in PL-62001:
Cover Sheet
Detailed Floor Plan Dimensions
Four Elevations - Front, Back, Left Side, Right Side
Electrical Plan
Plumbing Plan
HVAC Plan
Roof Framing Plan
Foundation Plan
Wall Section
For more barndominium floor plans, check out our complete collection of 3 bedroom barndominium floor plans.
Need to make changes? Submit a modification request using the button that says Modify This Plan (below the Add To Cart Button). We will get you a free price quote within 72 hours
Please note all square footage are estimates.
What's Included
What's Included
Our house plan sets typically have the following details:
4 Elevations – Front, Back, Both Sides
Detailed Floor Plan Drawing
Electrical Plans with placements for HVAC
Plumbing Plans with Placements
Flooring Plan
Roof Plan
Foundation Plan
For more information on what's included and examples of what your plans will look like, go here -> https://barndominiumplans.com/pages/whats-included
Please Note: We work with many different draftspeople who work in many different ways. It should be noted that their plans may contain different details.Â
What's Not Included
What's Not Included
The following items are NOT included:
Architectural or Engineering Stamp. Our plans are engineering-ready! Can take them to a local engineer in your state.
Site Plan - We can provide this if needed for $300 additional.
Materials List - handled locally when required
Energy calculations - handled locally when required
Snow load calculations - handled locally when required
Delivery
Delivery
This plan is available as a digital product or printed + shipped.
If you select digital, the plan will be delivered to you via email as a PDF file, no matter what time it is.
If you select printed + shipped, your order will ship in 24x36 format within 1 business day of your order.
We ship from the midwest in order to serve the entire country within 3-5 business days!
Return policy
Return policy
All barndominium house plan purchases are FINAL. There are no exchanges or refunds due to the digital nature of the product. Please make sure that the plan you have selected is going to fit your needs.












Real Reviews, Real Experiences
How to Build Your Own Barndominium & 120+ House Plans

Just getting started on your build? Get the Barndominiums Made Easy Program.
- Choosing a selection results in a full page refresh.