Couldn't load pickup availability
Barndominium Plans
BCO-40042 Barndominium House Plan
DETAILS
HEATED SQ FT
First Floor:
1,728 SF
Second Floor:None
Total Heated Sq Ft:1,728 SF
UNHEATED SQ FT
234 SF
Carport:None
2
2
1
None
55'
38'
17'-3"
Concrete Slab
06:12
Stick-Frame
CEILING HEIGHTS
8'
BCO-40042 Barndominium House Plan
About this barndominium house plan:
- 1728 Heated Sq Ft
- 2 Bedrooms
- 2 Bathrooms
- Single story
- Open concept
- Utility room
- Front porch
- A spacious 1,728 square feet of pure comfort—perfectly scaled for easy living without sacrificing style.
- Two inviting bedrooms, tailor-made for quiet retreats and cozy mornings.
- Enjoy the convenience of two well-appointed bathrooms—never compromise on comfort or privacy.
- Effortless living on one level—say goodbye to stairs and hello to seamless flow.
- Let your lifestyle breathe—this airy layout blends kitchen, dining, and living spaces for maximum connection.
- Practical meets polished—a tucked-away utility room keeps clutter out of sight and function at your fingertips.
What's included in BCO-40042:
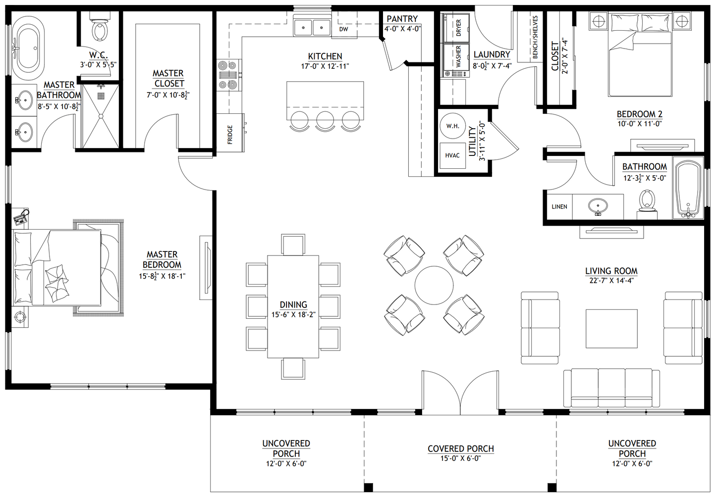
Cover Page Floor Plan
Roof Plan
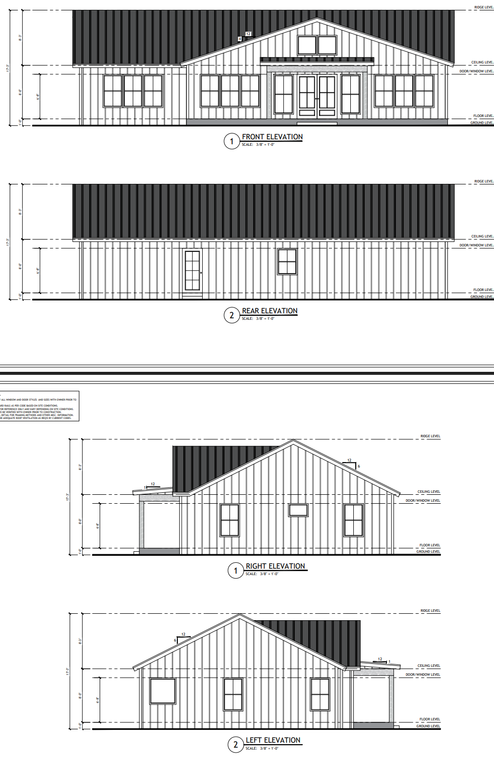
Front And Rear Elevation
Right And Left Elevation
Electrical Plan
Plumbing Plan
Hvac Plan
Roof Framing
Plan Foundation Plan
Foundation Detail
Interior Bearing Footing
C-Typical Column Detail
Wall Section
For more barndominium floor plans, check out our complete collection of 2-bedroom barndominium floor plans.
Need to make changes? Submit a modification request using the button that says Modify This Plan . We will get you a free price quote within 72 hours
What's Typically Included
What's Typically Included
THE SPECIFC DETAILS OF WHAT'S INCLUDED ON THESE PLANS IS CONTAINED IN THE PRODUCT DESCRIPTION. PLEASE SCROLL UP AND YOU WILL FIND IT UNDER "WHAT'S INCLUDED"
Our house plan sets typically have the following details:
4 Elevations – Front, Back, Both Sides
Detailed Floor Plan Drawing
Electrical Plans with placements for HVAC
Plumbing Plans with Placements
Flooring Plan
Roof Plan
Foundation Plan
For more information on what's included and examples of what your plans will look like, go here -> https://barndominiumplans.com/pages/whats-included
Please Note: We work with many different draftspeople who work in many different ways. It should be noted that their plans may contain different details. THE SPECIFC DETAILS OF WHAT'S INCLUDED ON THESE PLANS IS CONTAINED IN THE PRODUCT DESCRIPTION. PLEASE SCROLL UP AND YOU WILL FIND IT UNDER "WHAT'S INCLUDED"
What's Not Included
What's Not Included
The following items are NOT included:
Architectural or Engineering Stamp. Our plans are engineering-ready! Can take them to a local engineer in your state.
Site Plan - We can provide this if needed for $300 additional.
Materials List - handled locally when required
Energy calculations - handled locally when required
Snow load calculations - handled locally when required
Delivery
Delivery
This plan is available as a digital product or printed + shipped.
If you select digital, the plan will be delivered to you via email as a PDF file, no matter what time it is.
If you select printed + shipped, your order will ship in 24x36 format within 1 business day of your order.
We ship from the midwest in order to serve the entire country within 3-5 business days!
Return policy
Return policy
All barndominium house plan purchases are FINAL. There are no exchanges or refunds due to the digital nature of the product. Please make sure that the plan you have selected is going to fit your needs.
PDF (Single Build) $1,349.99
DETAILS
HEATED SQ FT
First Floor:
1,728 SF
Second Floor:None
Total Heated Sq Ft:1,728 SF
UNHEATED SQ FT
234 SF
Carport:None
2
2
1
None
55'
38'
17'-3"
Concrete Slab
06:12
Stick-Frame
CEILING HEIGHTS
8'
BCO-40042 Barndominium House Plan
About this barndominium house plan:
- 1728 Heated Sq Ft
- 2 Bedrooms
- 2 Bathrooms
- Single story
- Open concept
- Utility room
- Front porch
- A spacious 1,728 square feet of pure comfort—perfectly scaled for easy living without sacrificing style.
- Two inviting bedrooms, tailor-made for quiet retreats and cozy mornings.
- Enjoy the convenience of two well-appointed bathrooms—never compromise on comfort or privacy.
- Effortless living on one level—say goodbye to stairs and hello to seamless flow.
- Let your lifestyle breathe—this airy layout blends kitchen, dining, and living spaces for maximum connection.
- Practical meets polished—a tucked-away utility room keeps clutter out of sight and function at your fingertips.
What's included in BCO-40042:
Cover Page Floor Plan
Roof Plan
Front And Rear Elevation
Right And Left Elevation
Electrical Plan
Plumbing Plan
Hvac Plan
Roof Framing
Plan Foundation Plan
Foundation Detail
Interior Bearing Footing
C-Typical Column Detail
Wall Section
For more barndominium floor plans, check out our complete collection of 2-bedroom barndominium floor plans.
Need to make changes? Submit a modification request using the button that says Modify This Plan . We will get you a free price quote within 72 hours
What's Typically Included
What's Typically Included
THE SPECIFC DETAILS OF WHAT'S INCLUDED ON THESE PLANS IS CONTAINED IN THE PRODUCT DESCRIPTION. PLEASE SCROLL UP AND YOU WILL FIND IT UNDER "WHAT'S INCLUDED"
Our house plan sets typically have the following details:
4 Elevations – Front, Back, Both Sides
Detailed Floor Plan Drawing
Electrical Plans with placements for HVAC
Plumbing Plans with Placements
Flooring Plan
Roof Plan
Foundation Plan
For more information on what's included and examples of what your plans will look like, go here -> https://barndominiumplans.com/pages/whats-included
Please Note: We work with many different draftspeople who work in many different ways. It should be noted that their plans may contain different details. THE SPECIFC DETAILS OF WHAT'S INCLUDED ON THESE PLANS IS CONTAINED IN THE PRODUCT DESCRIPTION. PLEASE SCROLL UP AND YOU WILL FIND IT UNDER "WHAT'S INCLUDED"
What's Not Included
What's Not Included
The following items are NOT included:
Architectural or Engineering Stamp. Our plans are engineering-ready! Can take them to a local engineer in your state.
Site Plan - We can provide this if needed for $300 additional.
Materials List - handled locally when required
Energy calculations - handled locally when required
Snow load calculations - handled locally when required
Delivery
Delivery
This plan is available as a digital product or printed + shipped.
If you select digital, the plan will be delivered to you via email as a PDF file, no matter what time it is.
If you select printed + shipped, your order will ship in 24x36 format within 1 business day of your order.
We ship from the midwest in order to serve the entire country within 3-5 business days!
Return policy
Return policy
All barndominium house plan purchases are FINAL. There are no exchanges or refunds due to the digital nature of the product. Please make sure that the plan you have selected is going to fit your needs.























Real Reviews, Real Experiences
How to Build Your Own Barndominium & 120+ House Plans

Just getting started on your build? Get the Barndominiums Made Easy Program.
- Choosing a selection results in a full page refresh.