Couldn't load pickup availability
Barndominium Plans
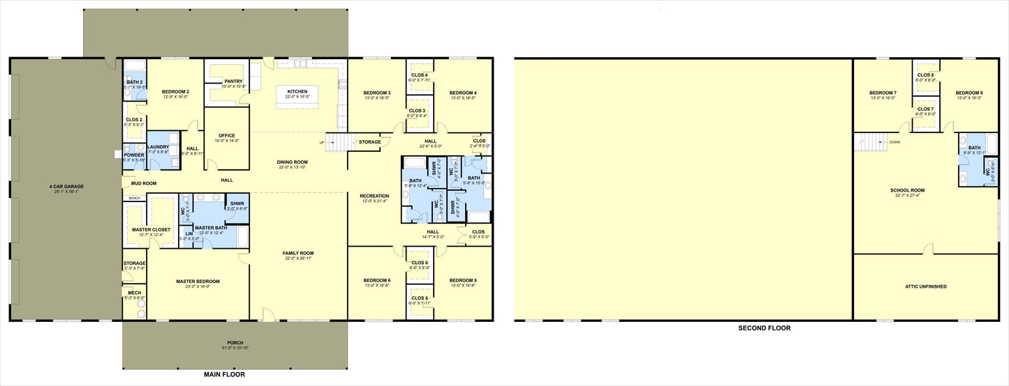
PL-60707 Meadowview Barndominium House Plan
DETAILS
HEATED SQ FT
First Floor:
5004 SF
Second Floor:1503 SF
Total Heated Sq Ft:6507 SF
UNHEATED SQ FT
Porch: 1216 SF Garage: 1638 SF Total Unheated: 2854 SF
Carport:None
8
5
2
1638 SF
110'
60'
30'-5 15/16"
Concrete Slab
6:12
Stick Frame
CEILING HEIGHTS
9'
PL-60707 Meadowview Barndominium House Plan
- 6507 Heated square feet
- 60x85 living space dimension
- 1638 square feet attached 4 car garage
- 8 bedrooms
- 5.1 bathrooms
- 2 Story
- Loft
- Mudroom
- Recreation Room
- Office
- School Room
- Open Concept
- 4-car Garage
- The Meadowview Barndominium house plan is 6500 heated square feet and features 8 bedrooms, 5 full bathrooms, and 1 half bathroom. Attached to the home, is a 4-car garage that is 1638 square feet.
- The Meadowview barndominium house plan is perfect for a large family as it provides versatility and plenty of space for all the needs of your family.
- The open concept area provides plenty of room for entertaining and gatehring as a family.
- The kitchen is large and spacious with plenty of counter space throughout the kitchen. The island creates even more space for prepping and serving. With a large walk-in pantry there is plenty of room for storing food and appliances to keep the kitchen looking clean and tidy.
- The master suite is large and spacious with a nice size bedroom, a large bathroom, and a closet big enough to hold all your clothes.
- Throughout the rest of the home, you will find 7 more nice-sized bedrooms (5 down stairs and 2 upstairs) all with their own closets within the room. One of the secondary bedrooms has an ensuite bathroom making it a perfect room for guests or older kids who would like a little more privacy.
- As you enter from the 4-car garage you will find a half bathroom right off the mudroom making it convenient for working or playing outside.
- The office is perfect for working from home without feeling completely separated from the family.
- As you venture up the stairs you will find the 2 additional bedrooms, a bathroom, and 2 school rooms perfect for homework or creating a homeschool classroom perfect for the kids.
- You will also love the unfinished attic that you could convert to more storage within the home.
- With a front and back porch, it invites you to take in the views from every angle while the kids play or for you to just relax.
What's included in PL-60707:
Cover Sheet
Detailed Floor Plan Dimensions
Four Elevations - Front, Back, Left Side, Right Side
Electrical Plan
Plumbing Plan
HVAC Plan
Roof Framing Plan
Foundation Plan
Wall Section
For more barndominium floor plans, check out our complete collection of 8 bedroom barndominium floor plans.
Need to make changes? Submit a modification request using the button that says Modify This Plan (below the Add To Cart Button). We will get you a free price quote within 72 hours
Please note all square footage are estimates.
What's Included
What's Included
Our house plan sets typically have the following details:
4 Elevations – Front, Back, Both Sides
Detailed Floor Plan Drawing
Electrical Plans with placements for HVAC
Plumbing Plans with Placements
Flooring Plan
Roof Plan
Foundation Plan
For more information on what's included and examples of what your plans will look like, go here -> https://barndominiumplans.com/pages/whats-included
Please Note: We work with many different draftspeople who work in many different ways. It should be noted that their plans may contain different details.Â
What's Not Included
What's Not Included
The following items are NOT included:
Architectural or Engineering Stamp. Our plans are engineering-ready! Can take them to a local engineer in your state.
Site Plan - We can provide this if needed for $300 additional.
Materials List - handled locally when required
Energy calculations - handled locally when required
Snow load calculations - handled locally when required
Delivery
Delivery
This plan is available as a digital product or printed + shipped.
If you select digital, the plan will be delivered to you via email as a PDF file, no matter what time it is.
If you select printed + shipped, your order will ship in 24x36 format within 1 business day of your order.
We ship from the midwest in order to serve the entire country within 3-5 business days!
Return policy
Return policy
All barndominium house plan purchases are FINAL. There are no exchanges or refunds due to the digital nature of the product. Please make sure that the plan you have selected is going to fit your needs.
PDF (Single Build) $1,749.99
DETAILS
HEATED SQ FT
First Floor:
5004 SF
Second Floor:1503 SF
Total Heated Sq Ft:6507 SF
UNHEATED SQ FT
Porch: 1216 SF Garage: 1638 SF Total Unheated: 2854 SF
Carport:None
8
5
2
1638 SF
110'
60'
30'-5 15/16"
Concrete Slab
6:12
Stick Frame
CEILING HEIGHTS
9'
PL-60707 Meadowview Barndominium House Plan
- 6507 Heated square feet
- 60x85 living space dimension
- 1638 square feet attached 4 car garage
- 8 bedrooms
- 5.1 bathrooms
- 2 Story
- Loft
- Mudroom
- Recreation Room
- Office
- School Room
- Open Concept
- 4-car Garage
- The Meadowview Barndominium house plan is 6500 heated square feet and features 8 bedrooms, 5 full bathrooms, and 1 half bathroom. Attached to the home, is a 4-car garage that is 1638 square feet.
- The Meadowview barndominium house plan is perfect for a large family as it provides versatility and plenty of space for all the needs of your family.
- The open concept area provides plenty of room for entertaining and gatehring as a family.
- The kitchen is large and spacious with plenty of counter space throughout the kitchen. The island creates even more space for prepping and serving. With a large walk-in pantry there is plenty of room for storing food and appliances to keep the kitchen looking clean and tidy.
- The master suite is large and spacious with a nice size bedroom, a large bathroom, and a closet big enough to hold all your clothes.
- Throughout the rest of the home, you will find 7 more nice-sized bedrooms (5 down stairs and 2 upstairs) all with their own closets within the room. One of the secondary bedrooms has an ensuite bathroom making it a perfect room for guests or older kids who would like a little more privacy.
- As you enter from the 4-car garage you will find a half bathroom right off the mudroom making it convenient for working or playing outside.
- The office is perfect for working from home without feeling completely separated from the family.
- As you venture up the stairs you will find the 2 additional bedrooms, a bathroom, and 2 school rooms perfect for homework or creating a homeschool classroom perfect for the kids.
- You will also love the unfinished attic that you could convert to more storage within the home.
- With a front and back porch, it invites you to take in the views from every angle while the kids play or for you to just relax.
What's included in PL-60707:
Cover Sheet
Detailed Floor Plan Dimensions
Four Elevations - Front, Back, Left Side, Right Side
Electrical Plan
Plumbing Plan
HVAC Plan
Roof Framing Plan
Foundation Plan
Wall Section
For more barndominium floor plans, check out our complete collection of 8 bedroom barndominium floor plans.
Need to make changes? Submit a modification request using the button that says Modify This Plan (below the Add To Cart Button). We will get you a free price quote within 72 hours
Please note all square footage are estimates.
What's Included
What's Included
Our house plan sets typically have the following details:
4 Elevations – Front, Back, Both Sides
Detailed Floor Plan Drawing
Electrical Plans with placements for HVAC
Plumbing Plans with Placements
Flooring Plan
Roof Plan
Foundation Plan
For more information on what's included and examples of what your plans will look like, go here -> https://barndominiumplans.com/pages/whats-included
Please Note: We work with many different draftspeople who work in many different ways. It should be noted that their plans may contain different details.Â
What's Not Included
What's Not Included
The following items are NOT included:
Architectural or Engineering Stamp. Our plans are engineering-ready! Can take them to a local engineer in your state.
Site Plan - We can provide this if needed for $300 additional.
Materials List - handled locally when required
Energy calculations - handled locally when required
Snow load calculations - handled locally when required
Delivery
Delivery
This plan is available as a digital product or printed + shipped.
If you select digital, the plan will be delivered to you via email as a PDF file, no matter what time it is.
If you select printed + shipped, your order will ship in 24x36 format within 1 business day of your order.
We ship from the midwest in order to serve the entire country within 3-5 business days!
Return policy
Return policy
All barndominium house plan purchases are FINAL. There are no exchanges or refunds due to the digital nature of the product. Please make sure that the plan you have selected is going to fit your needs.





Real Reviews, Real Experiences
How to Build Your Own Barndominium & 120+ House Plans

Just getting started on your build? Get the Barndominiums Made Easy Program.
- Choosing a selection results in a full page refresh.