Couldn't load pickup availability
Barndominium Plans
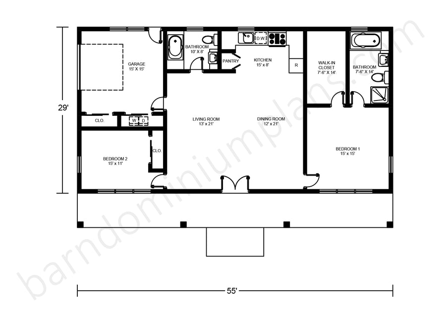
BCO-40032 Barndominium House Plan
This plan is in final review. Reserve now and be the first to receive the full blueprint. It will be delivered within 7-10 business days.
DETAILS
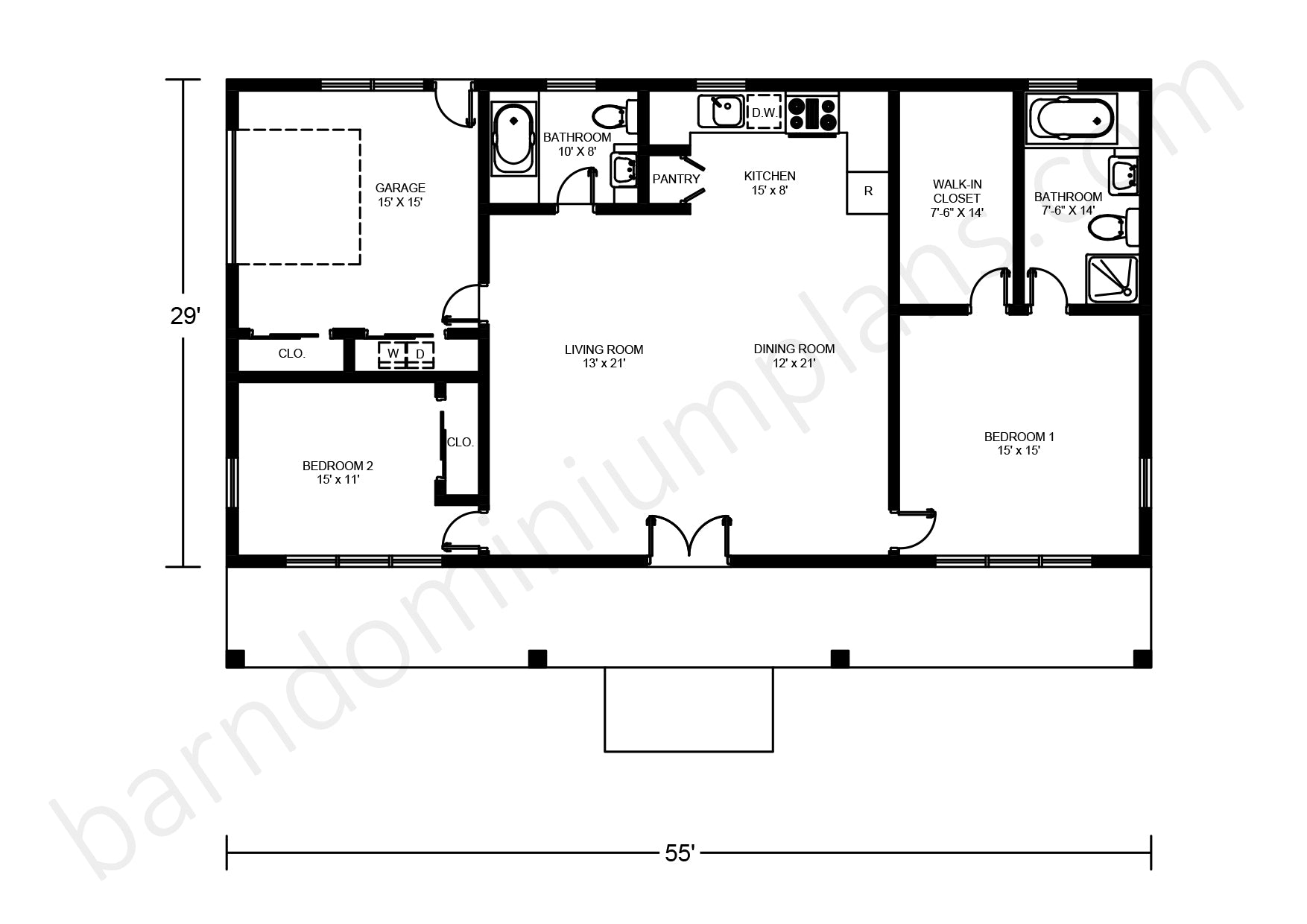
BCO-40032 Barndominium House Plan
- This charming barndominium-style home features a spacious and functional layout, measuring 55 feet in width and 29 feet in depth.
- The open-concept living and dining areas (13′ x 21′ and 12′ x 21′, respectively) create an inviting space for entertaining, while the adjacent kitchen (15′ x 8′) includes a pantry for additional storage.
- The home offers two comfortable bedrooms: a master suite (15′ x 15′) with a walk-in closet (7’6″ x 14′) and an en-suite bathroom (7’6″ x 14′), plus a second bedroom (15′ x 11′) with convenient closet space.
- A second bathroom (10′ x 8′) and a laundry area are strategically placed for accessibility.
- Completing the design is a 15′ x 15′ garage and a welcoming front porch, making this home a perfect blend of style and practicality.
For more barndominium floor plans, check out our complete collection of 2-bedroom barndominium floor plans.
Need to make changes? Submit a modification request using the button that says Modify This Plan . We will get you a free price quote within 72 hours
Delivery
Delivery
This plan is available as a digital product or printed + shipped.
If you select digital, the plan will be delivered to you via email as a PDF file.
If you select printed + shipped, your order will ship in 24x36 format within 1 business day of your order.
We ship from the midwest in order to serve the entire country within 3-5 business days!
Return policy
Return policy
All barndominium house plan purchases are FINAL. There are no exchanges or refunds due to the digital nature of the product. Please make sure that the plan you have selected is going to fit your needs.
PDF (Single Build) $1,349.99
DETAILS
BCO-40032 Barndominium House Plan
- This charming barndominium-style home features a spacious and functional layout, measuring 55 feet in width and 29 feet in depth.
- The open-concept living and dining areas (13′ x 21′ and 12′ x 21′, respectively) create an inviting space for entertaining, while the adjacent kitchen (15′ x 8′) includes a pantry for additional storage.
- The home offers two comfortable bedrooms: a master suite (15′ x 15′) with a walk-in closet (7’6″ x 14′) and an en-suite bathroom (7’6″ x 14′), plus a second bedroom (15′ x 11′) with convenient closet space.
- A second bathroom (10′ x 8′) and a laundry area are strategically placed for accessibility.
- Completing the design is a 15′ x 15′ garage and a welcoming front porch, making this home a perfect blend of style and practicality.
For more barndominium floor plans, check out our complete collection of 2-bedroom barndominium floor plans.
Need to make changes? Submit a modification request using the button that says Modify This Plan . We will get you a free price quote within 72 hours
Delivery
Delivery
This plan is available as a digital product or printed + shipped.
If you select digital, the plan will be delivered to you via email as a PDF file.
If you select printed + shipped, your order will ship in 24x36 format within 1 business day of your order.
We ship from the midwest in order to serve the entire country within 3-5 business days!
Return policy
Return policy
All barndominium house plan purchases are FINAL. There are no exchanges or refunds due to the digital nature of the product. Please make sure that the plan you have selected is going to fit your needs.

Real Reviews, Real Experiences
How to Build Your Own Barndominium & 120+ House Plans
Just getting started on your build? Get the Barndominiums Made Easy Program.
- Choosing a selection results in a full page refresh.



